Retour
Disponibilité Immédiate
À Louer Bureaux 600 m² divisibles à partir de 300 m² PARIS (75010)
Ajouter au comparateur
Vous souhaitez faciliter votre recherche ?
Créez un compte
Présentation du bien
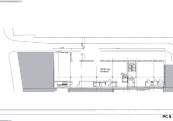
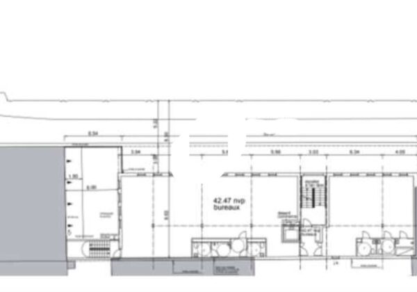
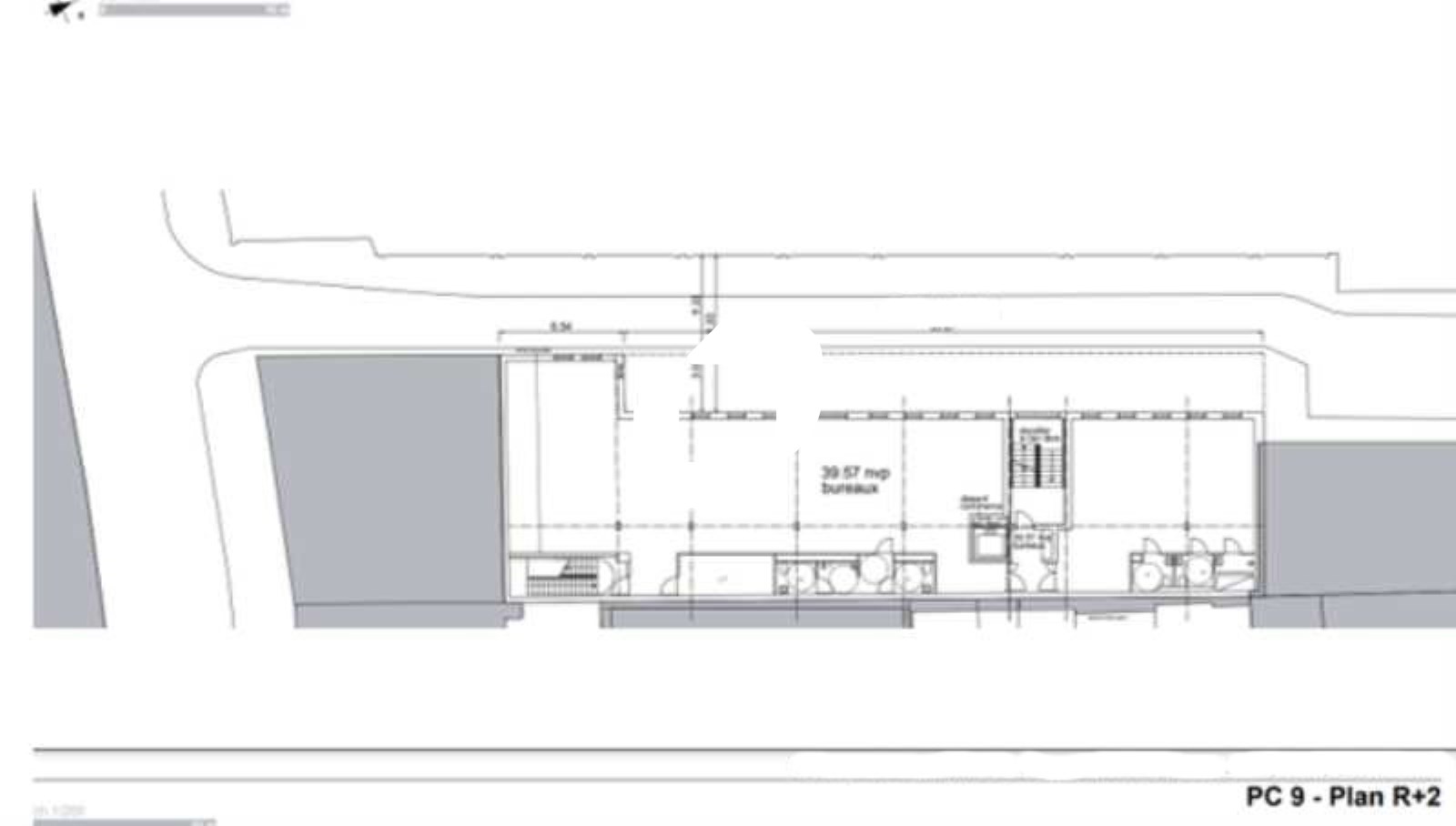
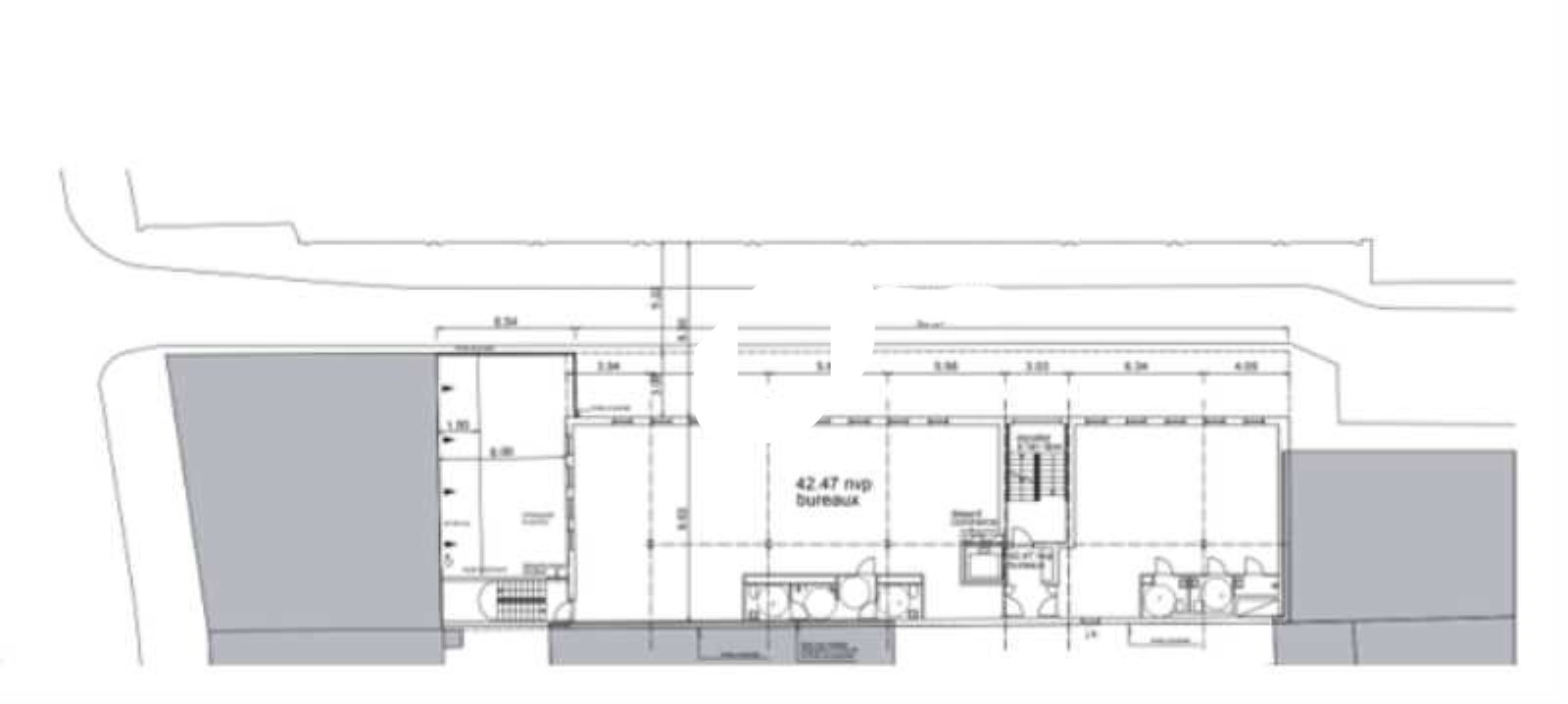
Immprove vous propose des bureaux en R+1 et R+2 divisibles à partir de 300m². Programme livré en BEFA début 2026. Très bien placé à proximité de la place de la République, plusieurs cellules disponibles en totalité ou par lot.
Loyer R+1 185 000€
Loyer R+2 185 000€
Loyer total : 370 000€
Surface totale
Nature
Divisibilité
Etat des locaux
600 m²
Bureaux
Oui à partir de 300 m²
Restructuré
Prix & Conditions
Loyer :
617 € /m²/an (HT/HC)
15 400 € /mois (HT/HC)
184 800 € /an (HT/HC)
Divisibles à partir de 300 m²
Dépôt de garantie :
3 mois de loyer HT HC
Conditions location :
Loi Carrez et affectation juridique en cours de détermination
. Frais d’actes : à prévoir
. Frais d’état des lieux : à prévoir
. Frais d’actes : à prévoir
. Frais d’état des lieux : à prévoir
Prestations & équipements du bien
Les espaces de travail
Programme neuf
Le confort au quotidien
Climatisation
Autres
Surface divisible à partir de 300m²
Environnement animé et commerçant
Large possibilité d'aménagement
Loi Carrez et affectation juridique en cours de détermination
. Frais d’actes : à prévoir
. Frais d’état des lieux : à prévoir
Répartition & surfaces des espaces
Tableau des divisibilités
| Type | Étage | Surface | Loyer (€/m²/an HT HC) |
Charges (€/m²/an HT HC) |
|---|---|---|---|---|
| Bureaux | 1er étage | 300 m² | 616.67 | Prix sur demande |
| Bureaux | 2ème étage | 300 m² | 616.67 | Prix sur demande |
Performance énergétique du bien (DPE)


Informations non contractuelles
Localisation & accès
Transports en commun à proximité
Gare de l'Est
SNCF gare de Paris-Est
91
56
N02
20
38
N14
Adresses
approximatives
Adresses
précises
Nos nouveaux biens qui pourraient vous intéresser
Bureaux - 362.35m²
PARIS (75016)
PARIS (75016)
Prix sur demande
Disponibilité : 1 mois après accord
Surface : 362.35 m²
Bureaux - 253m²
PARIS (75008)
PARIS (75008)
15 812.50€/mois HT HC
Disponibilité : 1er juillet 2026
Surface : 253 m²
Les entrepreneurs ayant consulté cette offre ont aussi consulté celles ci
Bureaux - 348.02m²
BIEVRES (91570)
BIEVRES (91570)
3 480.00€/mois HT HC
Disponibilité : 1er juillet 2026
Surface : 348.02 m²
Bureaux - 288.28m²
BIEVRES (91570)
BIEVRES (91570)
2 880.00€/mois HT HC
Disponibilité : 1er juillet 2026
Surface : 288.28 m²
Bureaux et Activités - 4 645.22m² Divisibles à partir de 249.90 m²
VILLIERS SUR MARNE (94350)
VILLIERS SUR MARNE (94350)
54 180.00€/mois HT HC
Disponibilité : Immédiate
Surface : divisibles à partir de 249.90 m²
Bureaux - 447m²
MOUSSY LE NEUF (77230)
MOUSSY LE NEUF (77230)
4 097.50€/mois HT HC
Disponibilité : Immédiate
Surface : 447 m²