Retour
Bureaux - 125m²
Bureaux - 125m²
à Louer
RUE DE LANCRY PARIS (75010)
DESCRIPTION
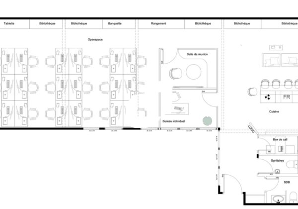
Situé à proximité immédiate de la Place de la République IMMPROVE vous propose dans un immeuble standing, cette surface Plug & Play d'environ 125 m² pouvant accueillir 19 postes. Les locaux sont livrés rénovés, décorés et meublés. Contrats flexibles de 12/24/36 mois.
En savoir plus
. Interphone. Fibre optique
Locaux lumineux aménagés en :
. Accueil
. Espace ouvert
. 2 Salles de réunions
. Espace détente
. Belle hauteur sous plafond
. Prises RJ45
. Alarme
. Climatisation réversible
. Local technique
. Cuisine
. Sanitaires privatifs
Le loyer comprend , mobilier, équipements, électricité, climatisation, chauffage, ménage et services.
Consommations énergétiques


Informations non contractuelles
632 € /m²/an (HT/HC)
non divisibles
6 583 € /mois (HT/HC)
non divisibles
79 000 € /an (HT/HC)
non divisibles
Tableau des divisibilités
| Type | Étage | Surface | Loyer (€/m²/an HT HC) |
Charges (€/m²/an HT HC) |
|---|---|---|---|---|
| Bureaux | 1er étage | 125 m² | 632.00 | Prix sur demande |
Caractéristiques
Le loyer est une somme forfaitaire incluant toutes les charges et la fiscalité
- Surface 125 m²
- Etat des locaux Bon état
- CoWorking postes 19
- Interphone oui
Adresses
approximatives
Adresses
précises
Nos nouveaux biens qui pourraient vous intéresser
Bureaux - 277m² Divisibles à partir de 136 m²
à Louer
PARIS (75010)
Voir le bien
9 695.00€/mois HT HC
Les entrepreneurs ayant consulté cette offre ont aussi consulté celles ci
Les services Immprove
Une gamme complète de services qui facilitent vos démarches et destinée à satisfaire vos attentes