Retour
Disponibilité Après accord
À Louer Bureaux 260.40 m² PARIS (75013)
Ajouter au comparateur
Vous souhaitez faciliter votre recherche ?
Créez un compte
Présentation du bien
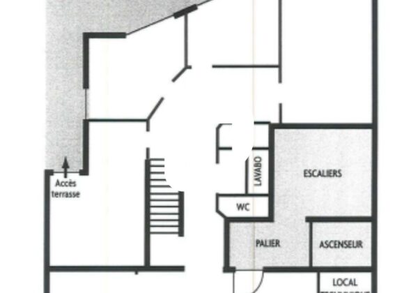
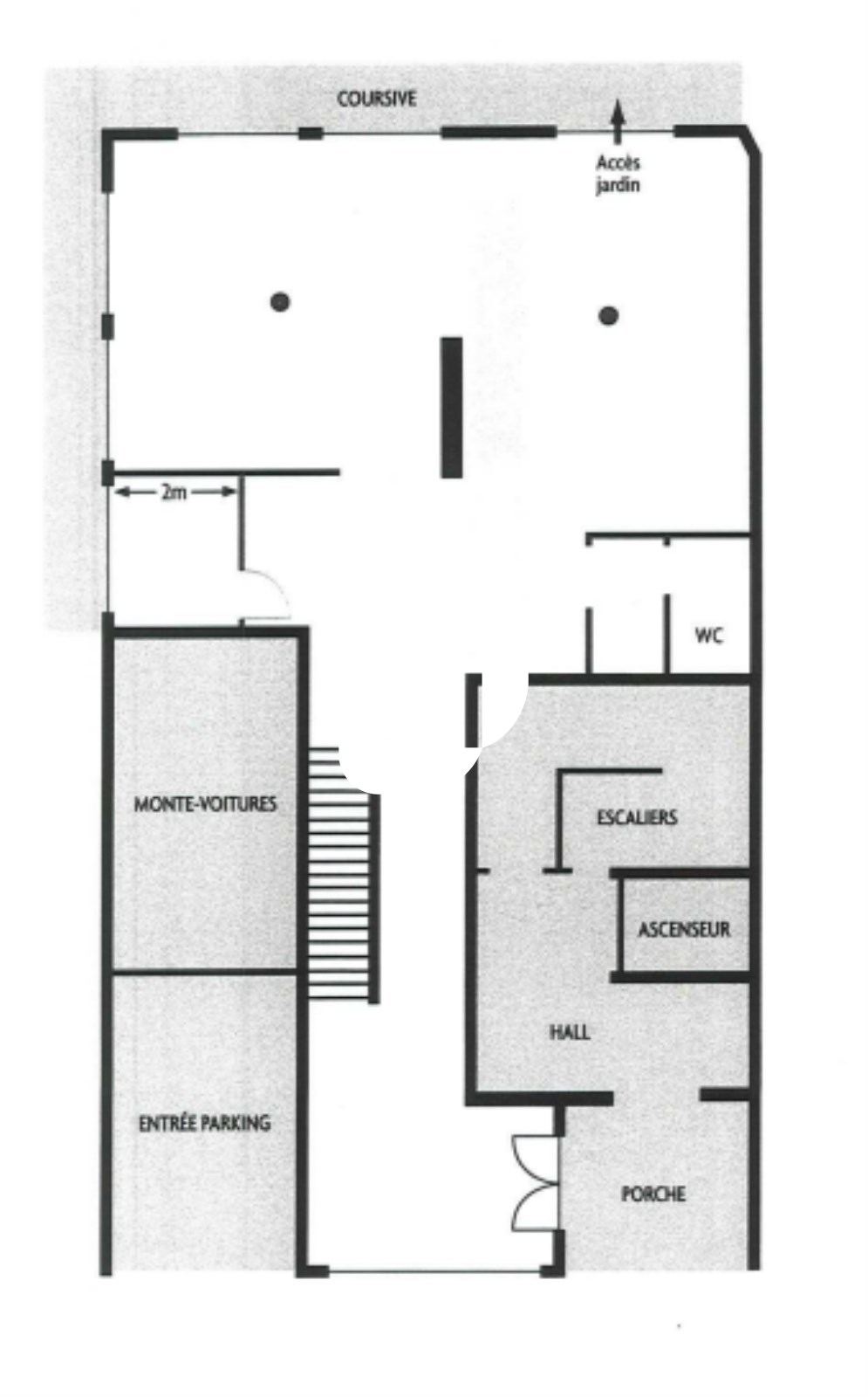
Au sein d’un immeuble moderne, à proximité de la porte d’Italie, Immprove vous propose à la location des bureaux en duplex développant 294 m² répartis en 144 m² au rez-de-chaussée et 150 m² au 1er étage relié par un escalier intérieur. Les locaux bénéficient de la norme PMR sur le rez-de-chaussée avec une terrasse privative et les locaux sont potentiellement ERP. Idéal pour toute activité tertiaire ou petite société de formation.
Surface totale
Nature
Divisibilité
Etat des locaux
260.40 m²
Bureaux
Non
Bon état
Prix & Conditions
Loyer :
320 € /m²/an (HT/HC)
6 933 € /mois (HT/HC)
83 200 € /an (HT/HC)
Taxe bureaux :
21.99
Dépôt de garantie :
3 mois de loyer HT HC
Conditions location :
Taxe parking : 124,41 €HT/U/an
Prestations & équipements du bien
Le bâtiment
Immeuble récent
Les espaces de travail
Fibre optique . Accueil
Espace ouvert
Bureaux cloisonnés
Salle de réunion
Local technique
Cuisine
Décloisonnement possible
Câblage informatique et téléphonique
Le confort au quotidien
Terrasse privative
Locaux lumineux
Terrasse privative
Les accès
Accès PMR
Accès privatif sur rue
Sécurité du site
Gardienne
Interphone
Accès sécurisé par badge
Accessibilité
Ascenseur PMR
Prestations spécifiques
Chauffage électrique
Autres
Possibilité de normes E.R.P.
Taxe parking : 124,41 €HT/U/an
Répartition & surfaces des espaces
Tableau des divisibilités
| Type | Étage | Surface | Loyer (€/m²/an HT HC) |
Charges (€/m²/an HT HC) |
|---|---|---|---|---|
| Parkings | 2ème Sous-Sol | 1 500.00 | 284.16 | |
| Parkings | 2ème Sous-Sol | 2 000.00 | 284.16 | |
| Parkings | 1er Sous-Sol | 1 200.00 | 268.00 | |
| Bureaux | Rez-de-Chaussée | 122 m² | 320.00 | 40.42 |
| Bureaux | 1er étage | 138 m² | 320.00 | 40.42 |
Performance énergétique du bien (DPE)


Informations non contractuelles
Localisation & accès
Transports en commun à proximité
Poterne des Peupliers
184
57
47
131
185
186
Accès routier
Maison Blanche (N15,N22)
Porte d'Italie (144)
Adresses
approximatives
Adresses
précises
Nos nouveaux biens qui pourraient vous intéresser
Bureaux - 253m²
PARIS (75008)
PARIS (75008)
15 812.50€/mois HT HC
Disponibilité : 1er juillet 2026
Surface : 253 m²
Les entrepreneurs ayant consulté cette offre ont aussi consulté celles ci
Bureaux - 348.02m²
BIEVRES (91570)
BIEVRES (91570)
3 480.00€/mois HT HC
Disponibilité : 1er juillet 2026
Surface : 348.02 m²
Bureaux - 288.28m²
BIEVRES (91570)
BIEVRES (91570)
2 880.00€/mois HT HC
Disponibilité : 1er juillet 2026
Surface : 288.28 m²
Bureaux et Activités - 4 645.22m² Divisibles à partir de 249.90 m²
VILLIERS SUR MARNE (94350)
VILLIERS SUR MARNE (94350)
54 180.00€/mois HT HC
Disponibilité : Immédiate
Surface : divisibles à partir de 249.90 m²
Bureaux - 447m²
MOUSSY LE NEUF (77230)
MOUSSY LE NEUF (77230)
4 097.50€/mois HT HC
Disponibilité : Immédiate
Surface : 447 m²