Retour
Bureaux - 220m² à Louer
. Façade en pierres de taille
. Parties communes de qualité
. Ascenseur
. Contrôle d'accès
Locaux rationnels et modulables aménagés en :
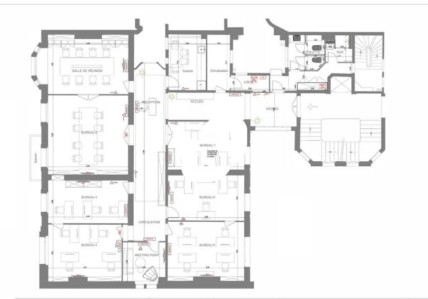
. Accueil
. Espace ouvert, 6 bureaux cloisonnés et salles de réunion
. Espace détente / Cuisine
. Local technique
. Doubles sanitaires privatifs
. Douche
. Cave sèche
Prestations de standing:
. Moulures et cheminées
. Parquet en pointe de Hongrie
. Belle hauteur sous plafond
. Locaux lumineux (exposition Est/Ouest)
. Double exposition
Equipements:
. Câblage informatique et téléphonique
. Prises RJ45
. Chauffage immeuble gaz
Bureaux - 220m² à Louer
PARIS (75017)
DESCRIPTION
IMMPROVE vous propose à la location une surface de bureaux haussmanniens de 220 m², à proximité immédiate de la place Wagram, au 3? étage d’un bel immeuble en pierre de taille. Entièrement rénovés et climatisés, ces locaux professionnels comprennent huit espaces de travail modulables (open space, bureaux, salle de réunion), une cuisine équipée, des sanitaires doubles, une douche et un vestiaire, avec de belles hauteurs sous plafond, parquet, moulures et cheminées. Les parties communes sont de standing, avec ascenseur.
En savoir plus
. Immeuble haussmannien de haut standing. Façade en pierres de taille
. Parties communes de qualité
. Ascenseur
. Contrôle d'accès
Locaux rationnels et modulables aménagés en :
. Accueil
. Espace ouvert, 6 bureaux cloisonnés et salles de réunion
. Espace détente / Cuisine
. Local technique
. Doubles sanitaires privatifs
. Douche
. Cave sèche
Prestations de standing:
. Moulures et cheminées
. Parquet en pointe de Hongrie
. Belle hauteur sous plafond
. Locaux lumineux (exposition Est/Ouest)
. Double exposition
Equipements:
. Câblage informatique et téléphonique
. Prises RJ45
. Chauffage immeuble gaz
Consommations énergétiques


Informations non contractuelles
Tableau des divisibilités
| Type | Étage | Surface | Loyer (€/m²/an HT HC) |
Charges (€/m²/an HT HC) |
|---|---|---|---|---|
| Bureaux | 3ème étage | 220 m² | 621.82 | 32.00 |
Caractéristiques
- Surface 220 m²
- Etat des locaux Rénové
- Ascenseur oui
Adresses
approximatives
Adresses
précises
Nos nouveaux biens qui pourraient vous intéresser
Bureaux - 707m² Divisibles à partir de 179 m²
à Louer
PARIS (75014)
Voir le bien
31 000.00€/mois HT HC
Les entrepreneurs ayant consulté cette offre ont aussi consulté celles ci
Les services Immprove
Une gamme complète de services qui facilitent vos démarches et destinée à satisfaire vos attentes