Retour
Disponibilité Immédiate
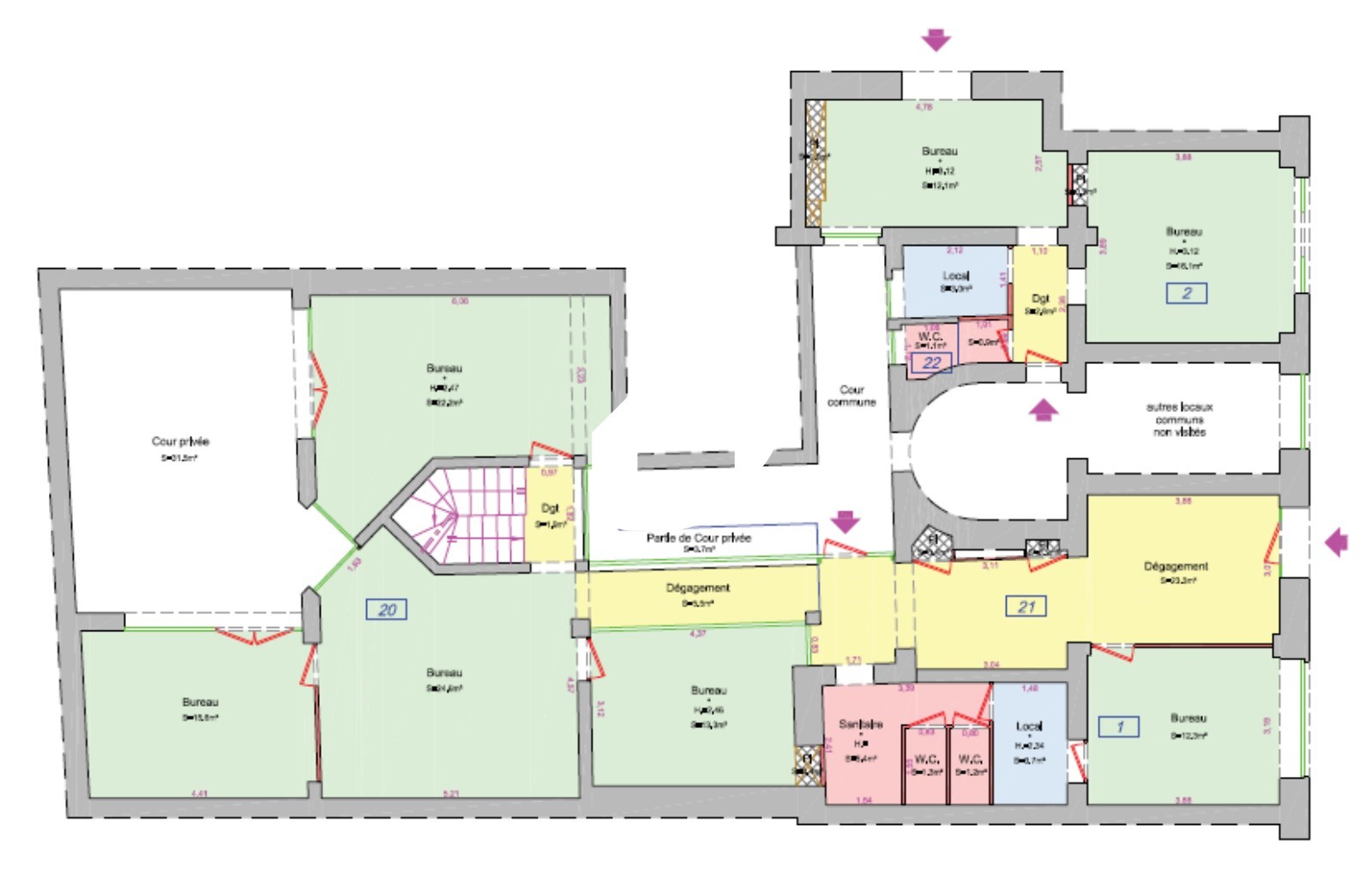
À Louer Bureaux 360.20 m² 138-140 BOULEVARD PEREIRE PARIS (75017)
Ajouter au comparateur
Vous souhaitez faciliter votre recherche ?
Créez un compte
Présentation du bien
IMMPROVE vous propose une surface de bureaux à louer au cœur du 17ème arrondissement, au sein d’un immeuble de bon standing bénéficiant d’une double adresse. Cette surface de bureaux atypique de 360 m², majoritairement en rez-de-chaussée, séduit par sa luminosité et sa terrasse privative de 35 m². Les locaux offrent une organisation équilibrée entre open space, bureaux indépendants et salles de réunion, avec une accessibilité PMR et une faisabilité de mise aux normes ERP. A proximité immédiate des transports (lignes 1 et 3).
Surface totale
Nature
Divisibilité
Etat des locaux
360.20 m²
Bureaux
Non
Bon état
Prix & Conditions
Loyer :
550 € /m²/an (HT/HC)
16 500 € /mois (HT/HC)
198 000 € /an (HT/HC)
Impôt foncier :
12.09
Dépôt de garantie :
3 mois de loyer HT HC
Prestations & équipements du bien
Le bâtiment
Parties communes de bon standing
Les espaces de travail
Fibre optique
Espace ouvert
Bureaux cloisonnés
Salle de réunion
Espace détente
Local technique
Cuisine
Sanitaires privatifs
Faux plafonds
Câblage informatique et téléphonique
Prises RJ45
Le confort au quotidien
Cour privative
Double exposition
Terrasse privative
Parquet
Sol PVC
Climatisation réversible
Les accès
Accès PMR
Accès privatif sur rue
Double accès
Sécurité du site
Digicode et interphone
Sas d'entrée
Autres
Locaux traversant et lumineux aménagés en :
Possibilité de normes E.R.P.
Répartition & surfaces des espaces
Tableau des divisibilités
| Type | Étage | Surface | Loyer (€/m²/an HT HC) |
Charges (€/m²/an HT HC) |
|---|---|---|---|---|
| Bureaux | RDC / R+1 | 360 m² | 550.00 | Prix sur demande |
Performance énergétique du bien (DPE)


Informations non contractuelles
Localisation & accès
Transports en commun à proximité
Péreire-Levallois (Gare SNCF)
84
92
341
82
274
94
20
30
31
43
Accès routier
Porte de Champerret (T3b)
Adresses
approximatives
Adresses
précises
Nos nouveaux biens qui pourraient vous intéresser
Bureaux - 362.35m²
PARIS (75016)
PARIS (75016)
Prix sur demande
Disponibilité : 1 mois après accord
Surface : 362.35 m²
Les entrepreneurs ayant consulté cette offre ont aussi consulté celles ci
Bureaux - 83.60m²
BUSSY SAINT GEORGES (77600)
BUSSY SAINT GEORGES (77600)
1 288.00€/mois HT HC
Disponibilité : Immédiate
Surface : 83.60 m²
Bureaux - 6 934m² Divisibles à partir de 173 m²
LYON (69009)
LYON (69009)
Prix sur demande
Disponibilité : Selon les lots – nous consulter
Surface : divisibles à partir de 173 m²