Retour
Disponibilité Immédiate
À Louer Bureaux 73.54 m² divisibles à partir de 17 m² BOURG LA REINE (92340)
Ajouter au comparateur
Vous souhaitez faciliter votre recherche ?
Créez un compte
Présentation du bien
Dans un cadre verdoyant, à 5 minutes de la gare RER de Bourg la Reine, Immprove vous propose des petites surfaces de bureaux accompagnées de places de 3 emplacements de parking.
Immeuble du début du siècle, très bien entretenu. Idéal pour professions libérale ou commerciales.
Surface totale
Nature
Divisibilité
Etat des locaux
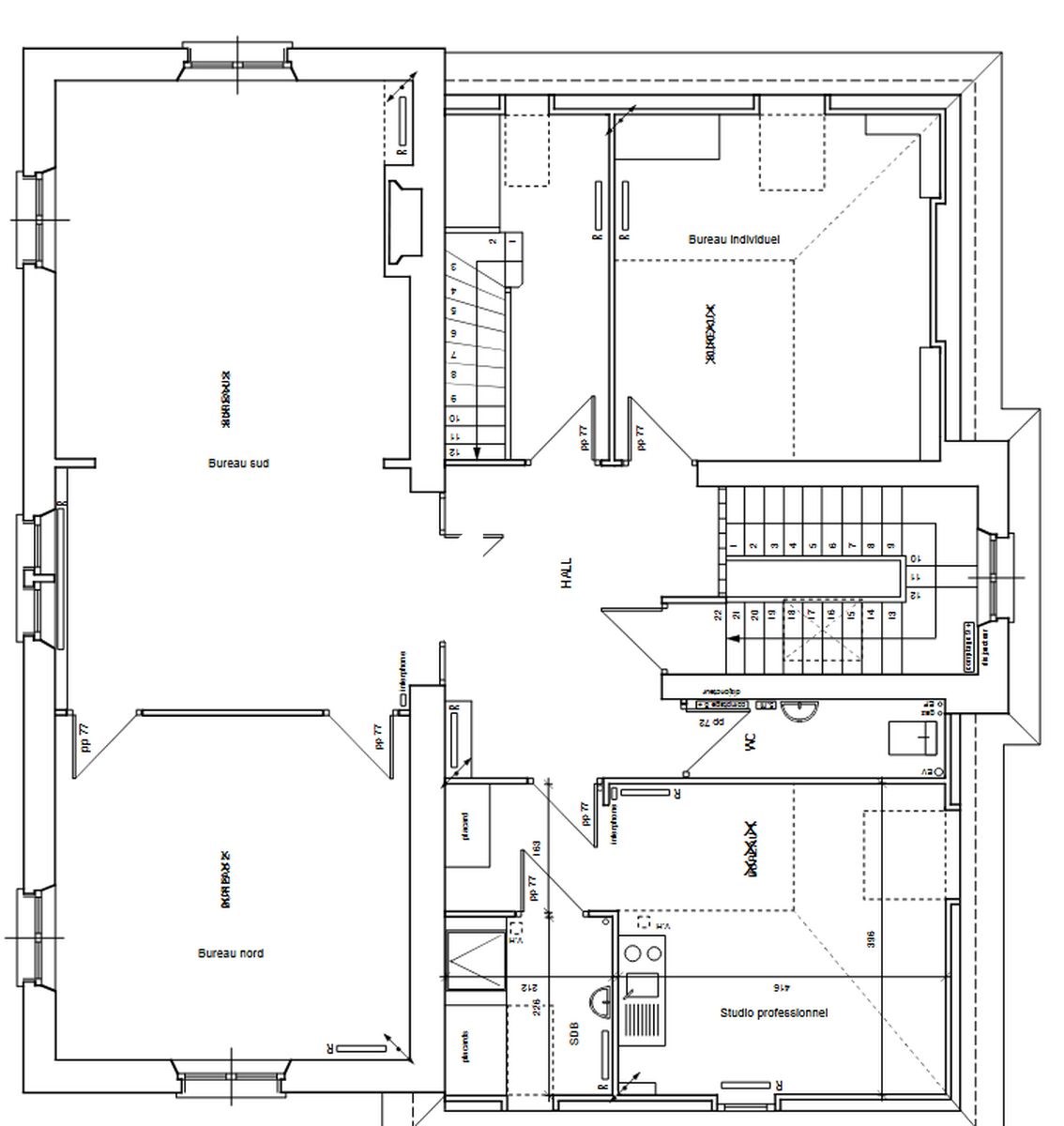
73.54 m²
Bureaux
Oui à partir de 17 m²
Bon état
Prix & Conditions
Loyer :
250 € /m²/an (HT/HC)
354 € /mois (HT/HC)
4 250 € /an (HT/HC)
Divisibles à partir de 17 m²
Dépôt de garantie :
3 mois de loyer HT HC
Conditions location :
. Les charges incluent l'entretien des parties communes et des espaces verts, le chauffage collectif, l'eau chaude et froide, les taxes; donc tout sauf votre électricité (abonnement EDF).
Taxe sur les bureaux incluse dans les charges
Taxe sur les bureaux incluse dans les charges
Prestations & équipements du bien
Le bâtiment
Hôtel particulier
Les espaces de travail
Locaux en bon état
Bureaux cloisonnés
Le confort au quotidien
Jardin paysager
Belle hauteur sous plafond
Locaux lumineux
Moquette
Sécurité du site
Accès sécurisé
Prestations spécifiques
Chauffage immeuble gaz
Extérieur
Parking
Autres
Immeuble en Meulière
Câblage RJ45
. Les charges incluent l'entretien des parties communes et des espaces verts, le chauffage collectif, l'eau chaude et froide, les taxes; donc tout sauf votre électricité (abonnement EDF).
Taxe sur les bureaux incluse dans les charges
Répartition & surfaces des espaces
Tableau des divisibilités
| Type | Étage | Surface | Loyer (€/m²/an HT HC) |
Charges (€/m²/an HT HC) |
|---|---|---|---|---|
| Bureaux | 2ème étage | 17 m² | 250.00 | 74.11 |
| Bureaux | 2ème étage | 57 m² | 250.00 | 63.15 |
Performance énergétique du bien (DPE)


Informations non contractuelles
Localisation & accès
Transports en commun à proximité
Adresses
approximatives
Adresses
précises
Nos nouveaux biens qui pourraient vous intéresser
Bureaux - 300m²
BOURG LA REINE (92340)
BOURG LA REINE (92340)
4 000.00€/mois HT HC
Disponibilité : Immédiate
Surface : 300 m²
Bureaux - 58.70m² Divisibles à partir de 9.50 m²
BOURG LA REINE (92340)
BOURG LA REINE (92340)
0.00€/mois HT HC
Disponibilité : Immédiate
Surface : divisibles à partir de 9.50 m²
Bureaux - 3 328.50m² Divisibles à partir de 37.60 m²
BOURG LA REINE (92340)
BOURG LA REINE (92340)
4 860.00€/mois HT HC
Disponibilité : Immédiate
Surface : divisibles à partir de 37.60 m²
Bureaux - 330m² Divisibles à partir de 70 m²
BOURG LA REINE (92340)
BOURG LA REINE (92340)
1 625.00€/mois HT HC
Disponibilité : Immédiate
Surface : divisibles à partir de 70 m²
Les entrepreneurs ayant consulté cette offre ont aussi consulté celles ci
Bureaux - 83.60m²
BUSSY SAINT GEORGES (77600)
BUSSY SAINT GEORGES (77600)
1 288.00€/mois HT HC
Disponibilité : Immédiate
Surface : 83.60 m²
Bureaux - 6 934m² Divisibles à partir de 173 m²
LYON (69009)
LYON (69009)
Prix sur demande
Disponibilité : Selon les lots – nous consulter
Surface : divisibles à partir de 173 m²