Retour
Disponibilité Immédiate
À Louer Bureaux 330 m² divisibles à partir de 70 m² 5 BOULEVARD DU MARECHAL JOFFRE BOURG LA REINE (92340)
Ajouter au comparateur
Vous souhaitez faciliter votre recherche ?
Créez un compte
Présentation du bien
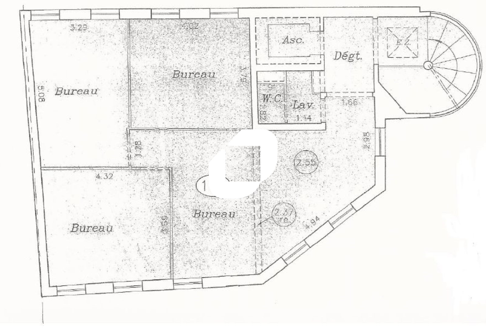
IMMPROVE vous propose , dans un immeuble de bon standing avec ascenseur, non loin du centre ville de Bourg-la-Reine et de tous ses commerces de proximité, A LA LOCATION des surface de bureaux divisibles à partir de 70 m². Les surfaces sont en bon état, cloisonnées, pré câblées et prêtes pour y installer vos futurs bureaux.
Proche de toutes commodités et facilement accessible, vous bénéficierez en plus d'une belle visibilité depuis la Nationale 20. Des parkings en sous-sol complètent c bien. Appelez-nous pour visiter !
Surface totale
Nature
Divisibilité
Etat des locaux
330 m²
Bureaux
Oui à partir de 70 m²
Bon état
Prix & Conditions
Loyer :
150 € /m²/an (HT/HC)
875 € /mois (HT/HC)
10 500 € /an (HT/HC)
Divisibles à partir de 70 m²
Impôt foncier :
25.00
Taxe bureaux :
21.99
Dépôt de garantie :
3 mois de loyer HT HC
Prestations & équipements du bien
Les espaces de travail
Parties communes rénovées en 2010
Cloisonnement amovible
11 bureaux, 1 espace accueil et 1 local informatique
Pré-câblage informatique
Le confort au quotidien
Sols moquette et parquet
Sécurité du site
Digicode
Interphone
Ascenceur . Interphone
Prestations spécifiques
Chauffage par convecteurs électriques
Autres
Double entrée
Portes blindées
Armoire de brassage informatique
Double vitrage et fenêtres oscillo - battantes
Sanitaires en parties communes
Répartition & surfaces des espaces
Tableau des divisibilités
| Type | Étage | Surface | Loyer (€/m²/an HT HC) |
Charges (€/m²/an HT HC) |
|---|---|---|---|---|
| Parkings | 1 000.00 | Prix sur demande | ||
| Bureaux | 3ème étage | 130 m² | 150.00 | 35.00 |
| Bureaux | 3ème étage | 70 m² | 150.00 | 35.00 |
| Bureaux | 4ème étage | 130 m² | 150.00 | 35.00 |
Performance énergétique du bien (DPE)


Informations non contractuelles
Localisation & accès
Transports en commun à proximité
Accès routier
Nationale N20
Adresses
approximatives
Adresses
précises
Nos nouveaux biens qui pourraient vous intéresser
Bureaux - 73.54m² Divisibles à partir de 17 m²
BOURG LA REINE (92340)
BOURG LA REINE (92340)
354.17€/mois HT HC
Disponibilité : Immédiate
Surface : divisibles à partir de 17 m²
Bureaux - 300m²
BOURG LA REINE (92340)
BOURG LA REINE (92340)
4 000.00€/mois HT HC
Disponibilité : Immédiate
Surface : 300 m²
Bureaux - 58.70m² Divisibles à partir de 9.50 m²
BOURG LA REINE (92340)
BOURG LA REINE (92340)
0.00€/mois HT HC
Disponibilité : Immédiate
Surface : divisibles à partir de 9.50 m²
Bureaux - 3 328.50m² Divisibles à partir de 37.60 m²
BOURG LA REINE (92340)
BOURG LA REINE (92340)
4 860.00€/mois HT HC
Disponibilité : Immédiate
Surface : divisibles à partir de 37.60 m²
Les entrepreneurs ayant consulté cette offre ont aussi consulté celles ci
Bureaux - 83.60m²
BUSSY SAINT GEORGES (77600)
BUSSY SAINT GEORGES (77600)
1 288.00€/mois HT HC
Disponibilité : Immédiate
Surface : 83.60 m²
Bureaux - 6 934m² Divisibles à partir de 173 m²
LYON (69009)
LYON (69009)
Prix sur demande
Disponibilité : Selon les lots – nous consulter
Surface : divisibles à partir de 173 m²