Retour
Disponibilité Immédiate
À Louer Bureaux 1 000 m² MONTREUIL (93100)
Ajouter au comparateur
Vous souhaitez faciliter votre recherche ?
Créez un compte
Présentation du bien
Dans une ancienne usine, Immprove vous propose un plateau de bureaux de 1 000 m², avec une belle terrasse, entièrement rénovés selon un style atypique et industriel. La surface se situe à 5 minutes de la Porte de Montreuil via la station de métro "Robespierre" situé à proximité. Ces beaux volumes lumineux et ouverts vous offrent une grande flexibilité d'aménagement. Idéal centres de coworking.
Surface totale
Nature
Divisibilité
Etat des locaux
1 000 m²
Bureaux
Non
Rénové
Prix & Conditions
Loyer :
250 € /m²/an (HT/HC)
20 833 € /mois (HT/HC)
250 000 € /an (HT/HC)
Impôt foncier :
10.64
Taxe bureaux :
10.69
Dépôt de garantie :
3 mois de loyer HT HC
Prestations & équipements du bien
Les espaces de travail
Parties communes rénovés
Locaux livrés rénovés . Accueil
1 espace ouvert
Bureaux cloisonnés
Fibre optique et câblage RJ45
Le confort au quotidien
Belle hauteur sous plafond et beaux volumes
Climatisation réversible en option
Terrasse et balcon filant
Autres
Salles de réunion
1 kitchenette
2 douches
Lumière naturelle avec verrières
Locaux PMR
Possibilité de normes E.R.P.
150 m² en sus possible
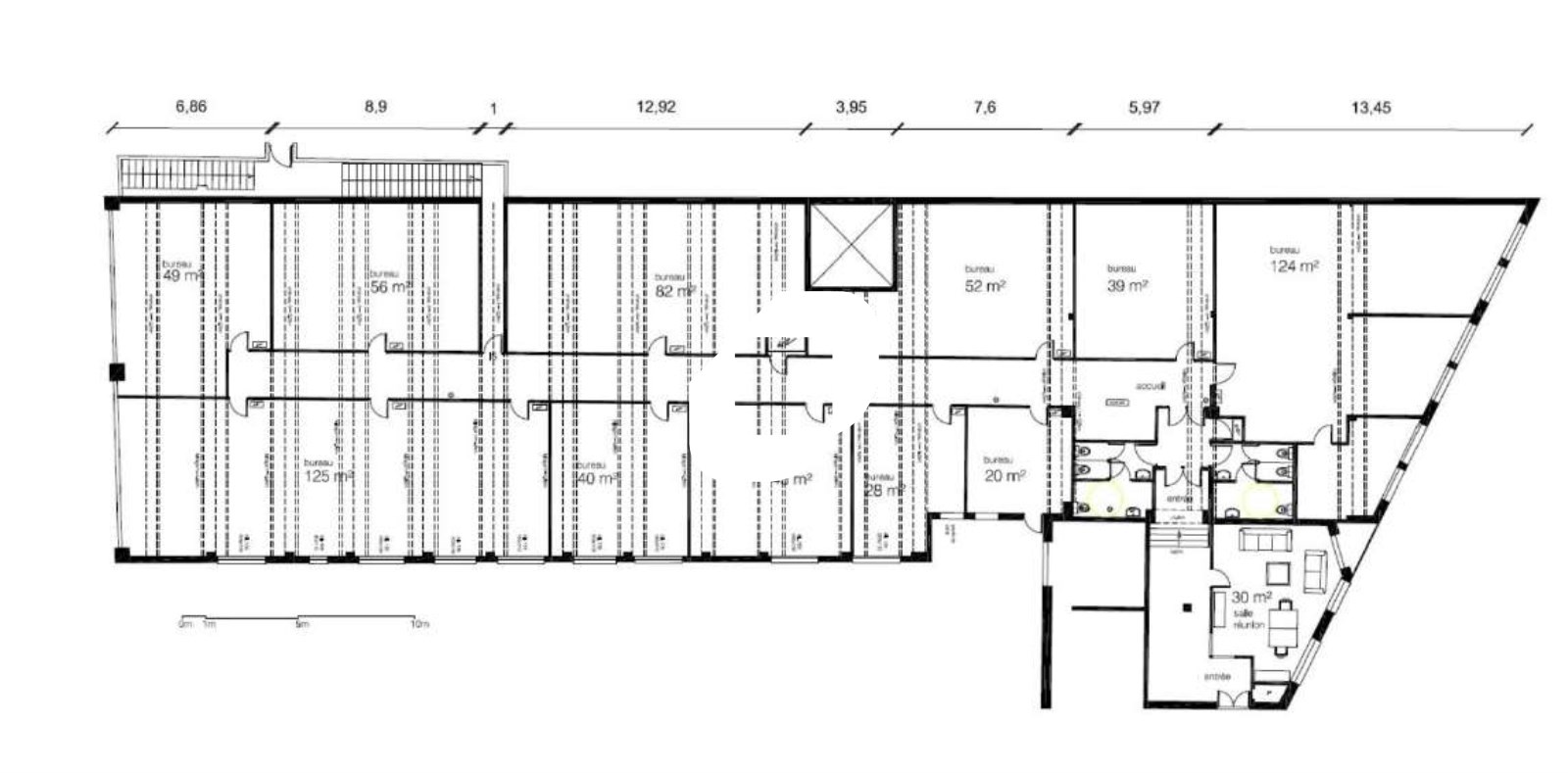
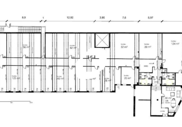
Répartition & surfaces des espaces
Tableau des divisibilités
| Type | Étage | Surface | Loyer (€/m²/an HT HC) |
Charges (€/m²/an HT HC) |
|---|---|---|---|---|
| Bureaux | 1er étage | 1 000 m² | 250.00 | Prix sur demande |
Performance énergétique du bien (DPE)


Informations non contractuelles
Localisation & accès
Transports en commun à proximité
Ligne 9 "Robespierre
Adresses
approximatives
Adresses
précises
Nos nouveaux biens qui pourraient vous intéresser
Bureaux - 8 698m² Divisibles à partir de 1 100 m²
MONTREUIL (93100)
MONTREUIL (93100)
2 910.00€/mois HT HC
Disponibilité : Immédiate
Surface : divisibles à partir de 1 100 m²
Bureaux - 9 276m² Divisibles à partir de 900 m²
MONTREUIL (93100)
MONTREUIL (93100)
21 750.00€/mois HT HC
Disponibilité : Immédiate
Surface : divisibles à partir de 900 m²
Bureaux - 11 263m² Divisibles à partir de 1 089 m²
MONTREUIL (93100)
MONTREUIL (93100)
29 306.67€/mois HT HC
Disponibilité : Immédiate
Surface : divisibles à partir de 1 089 m²
Les entrepreneurs ayant consulté cette offre ont aussi consulté celles ci
Bureaux - 83.60m²
BUSSY SAINT GEORGES (77600)
BUSSY SAINT GEORGES (77600)
1 288.00€/mois HT HC
Disponibilité : Immédiate
Surface : 83.60 m²
Bureaux - 6 934m² Divisibles à partir de 173 m²
LYON (69009)
LYON (69009)
Prix sur demande
Disponibilité : Selon les lots – nous consulter
Surface : divisibles à partir de 173 m²