À Louer Bureaux 3 080.10 m² divisibles à partir de 235 m² GREEN OAK 32-34 AVENUE ARISTIDE BRIAND ARCUEIL (94110)
Présentation du bien
Prix & Conditions
Prestations & équipements du bien
Immeuble neuf à l’architecture sereine et lumineuse
Hall d'accueil avec double hauteur
Hôtesse d'accueil
Climatisation ventilo convecteurs en faux plafonds (double flux)
Luminaire LED gradable
Faux plafonds
Sanitaires privatifs et accessibles PMR
Plateau courant de 1 150 m² divisibles en deux lots de 554 m² et 711 m².
Distribution courant fort
Moquette
4 ascenseurs
Jardin arboré en RDC
Un espace restauration boutik 2.0 ouvert sur le jardin toute la journée
Terrasses et loggias à tous les étages
Parkings voitures, vélos et motos en sous sol.
Territoire majeure du développement du Grand Paris
Design élégant mêlé de bois et béton
Certifications éco-responsable et labels environnementaux (HQE, BREEAM very good, WELL silver, Wired score …).
Un espace coworking, et pôle conférencier
Aire de livraison
Prestations plateaux :
Capacitaire : 10 m²/per (env)
Grande souplesse d’aménagement
85 % des espaces de travail bénéficient de la lumière naturelle
HSP : 2,75m
Store toile intérieur
Faux plancher technique bois
Fenêtres ouvrantes
Site internet de l'immeuble avec sa présentation complète :
http://greenoak-arcueil.fr/
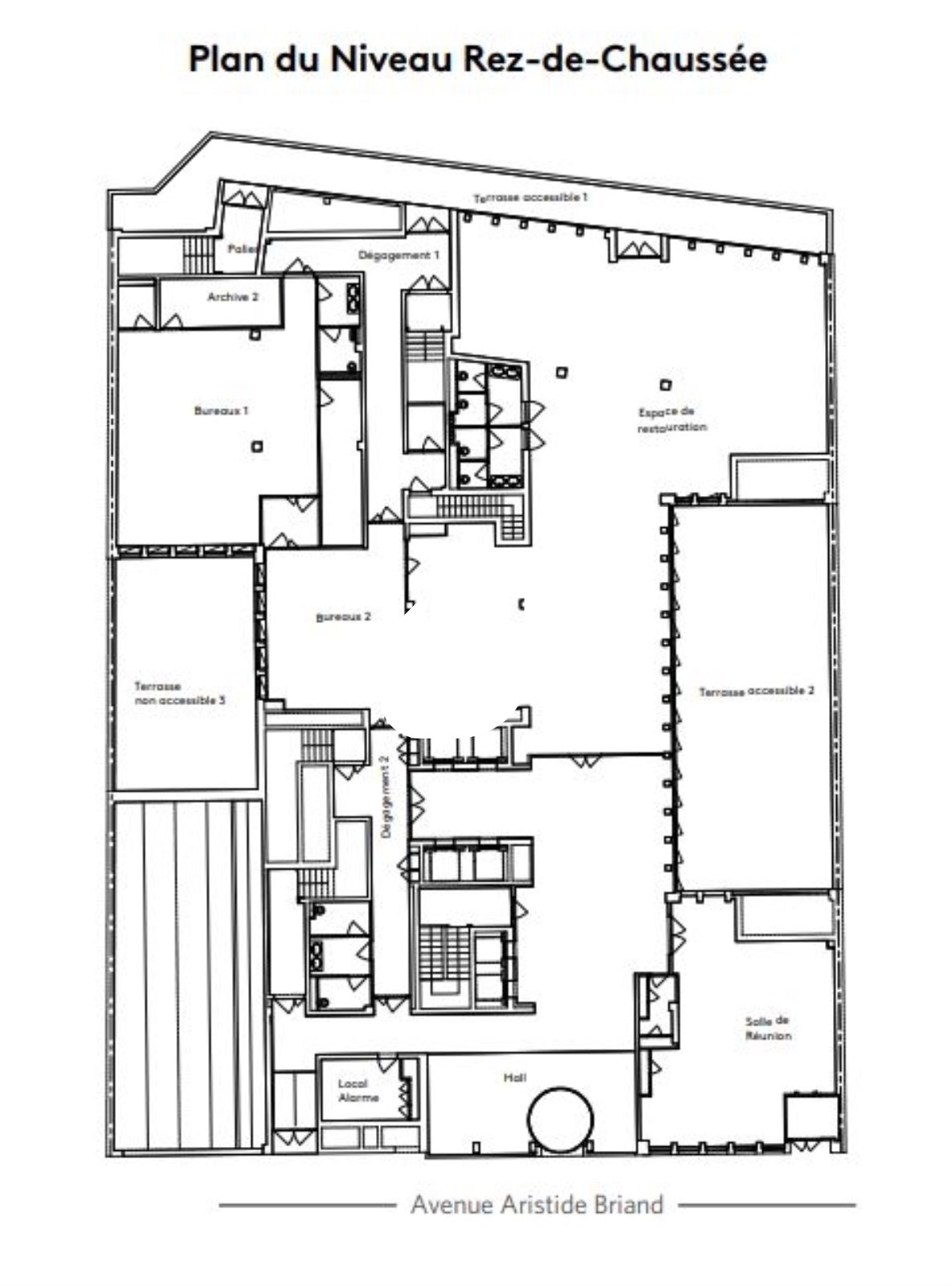
Répartition & surfaces des espaces
Tableau des divisibilités
| Type | Étage | Surface | Loyer (€/m²/an HT HC) |
Charges (€/m²/an HT HC) |
|---|---|---|---|---|
| Parkings | 200.00 | Prix sur demande | ||
| Parkings | 500.00 | Prix sur demande | ||
| Parkings | 1 500.00 | Prix sur demande | ||
| Bureaux | 4ème étage | 256 m² | 310.00 | 65.00 |
| Bureaux | 4ème étage | 300 m² | 310.00 | 65.00 |
| Bureaux | 4ème étage | 708 m² | 310.00 | 65.00 |
| Bureaux | 5ème étage | 235 m² | 310.00 | 65.00 |
| Bureaux | 5ème étage | 322 m² | 310.00 | 65.00 |
| Bureaux | 5ème étage | 708 m² | 310.00 | 65.00 |
| Bureaux | 6ème étage | 551 m² | 310.00 | 65.00 |
Performance énergétique du bien (DPE)


Informations non contractuelles
Localisation & accès
Transports en commun à proximité
Accès routier
Nationale 20
A6
Adresses
approximatives
Adresses
précises
Nos nouveaux biens qui pourraient vous intéresser
ARCUEIL (94110)
ARCUEIL (94110)
Les entrepreneurs ayant consulté cette offre ont aussi consulté celles ci
PARIS (75013)