Retour
Bureaux - 146.48m² à Louer
. Accès PMR
. Double accès
. Parties communes de qualité
. Digicode
. Interphone
. Accès sécurisé par badge
. Sas d'entrée
. Visiophone
. Climatisation réversible
. Fibre optique
. Possibilité de normes E.R.P.
. Sanitaires PMR & privatifs
. Open-space
. Chauffage par convecteurs électriques
Bureaux - 146.48m² à Louer
FONTENAY SOUS BOIS (94120)
DESCRIPTION
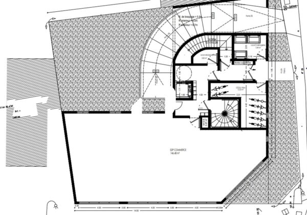
A Fontenay-sous-Bois, sur la zone du Plateau, IMMPROVE vous propose une surface de bureau de 146m² non divisible, à proximité des stations RER A et E (Val de Fontenay).
Au rez-de-chaussée d’un immeuble neuf (fin des travaux Janvier 2026), proposé en état brut.
Possibilité normes ERP.
En savoir plus
. Accès véhicules légers. Accès PMR
. Double accès
. Parties communes de qualité
. Digicode
. Interphone
. Accès sécurisé par badge
. Sas d'entrée
. Visiophone
. Climatisation réversible
. Fibre optique
. Possibilité de normes E.R.P.
. Sanitaires PMR & privatifs
. Open-space
. Chauffage par convecteurs électriques
Consommations énergétiques


Informations non contractuelles
Tableau des divisibilités
| Type | Étage | Surface | Loyer (€/m²/an HT HC) |
Charges (€/m²/an HT HC) |
|---|---|---|---|---|
| Bureaux | Rez-de-Chaussée | 146 m² | 120.00 | Prix sur demande |
Caractéristiques
- Surface 146.48 m²
- Etat des locaux Brut de béton
- Interphone oui
- Digicode oui
Adresses
approximatives
Adresses
précises
Nos nouveaux biens qui pourraient vous intéresser
Bureaux - 340m² Divisibles à partir de 160 m²
à Louer
FONTENAY SOUS BOIS (94120)
Voir le bien
4 599.95€/mois HT HC
Bureaux - 510m² Divisibles à partir de 162 m²
à Louer
FONTENAY SOUS BOIS (94120)
Voir le bien
6 375.00€/mois HT HC
Les entrepreneurs ayant consulté cette offre ont aussi consulté celles ci
Les services Immprove
Une gamme complète de services qui facilitent vos démarches et destinée à satisfaire vos attentes