Retour
Disponibilité Immédiate
À Louer Bureaux et Activités 494.36 m² ARGENTEUIL (95100)
Ajouter au comparateur
Vous souhaitez faciliter votre recherche ?
Créez un compte
Présentation du bien
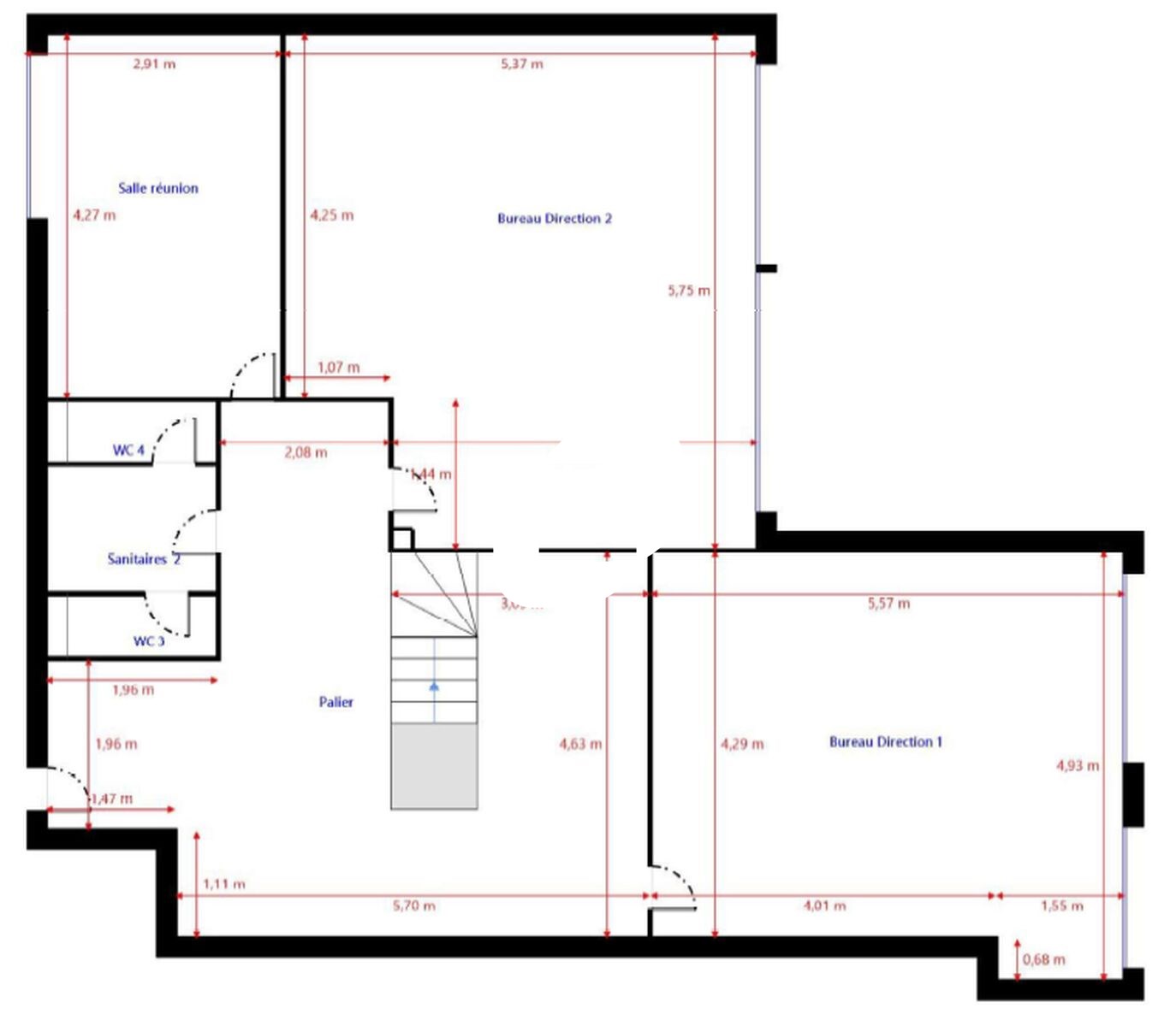
Proche des quais de Seine, IMMPROVE vous propose des locaux de 494,36 m² comprenant au rez-de-chaussée une partie activité de 210 m² ainsi que 185 m² de bureaux et au 1er étage 98 m² de bureaux de direction.
En parfait état, lumineux et climatisées, ils possèdent 11 places de parking. Disponible Janvier 2026.
Surface totale
Nature
Divisibilité
Etat des locaux
494.36 m²
Bureaux et Activités
Non
Bon état
Prix & Conditions
Loyer :
150 € /m²/an (HT/HC)
2 625 € /mois (HT/HC)
31 500 € /an (HT/HC)
Impôt foncier :
22.47
Dépôt de garantie :
3 mois de loyer HT HC
Prestations & équipements du bien
Le bâtiment
Parties communes de qualité
Les espaces de travail
Fibre optique Locaux lumineux en bon état aménagés en :
Accueil
Espace ouvert
Bureaux cloisonnés
Salle de réunion
Espace détente
Local technique
Cuisine
Sanitaires privatifs
Décloisonnement possible
Câblage informatique et téléphonique
Le confort au quotidien
Climatisation réversible
Locaux lumineux
Sol PVC
Sécurité du site
Interphone
Site clos
Accès sécurisé par badge
Extérieur
11 places de parking
Répartition & surfaces des espaces
Tableau des divisibilités
| Type | Étage | Surface | Loyer (€/m²/an HT HC) |
Charges (€/m²/an HT HC) |
|---|---|---|---|---|
| Activités | Rez-de-Chaussée | 210 m² | 150.00 | Prix sur demande |
| Bureaux | Rez-de-Chaussée | 186 m² | 150.00 | Prix sur demande |
| Bureaux | 1er étage | 99 m² | 150.00 | Prix sur demande |
Performance énergétique du bien (DPE)


Informations non contractuelles
Localisation & accès
Transports en commun à proximité
SNCF gare de Ligne J - Val d'Argenteuil
164
272
Accès routier
A15 et A86
Adresses
approximatives
Adresses
précises
Nos nouveaux biens qui pourraient vous intéresser
Bureaux et Activités - 4 645.22m² Divisibles à partir de 249.90 m²
VILLIERS SUR MARNE (94350)
VILLIERS SUR MARNE (94350)
54 180.00€/mois HT HC
Disponibilité : Immédiate
Surface : divisibles à partir de 249.90 m²
Bureaux et Activités - 6 512m² Divisibles à partir de 3 256 m²
PANTIN (93500)
PANTIN (93500)
3 152.50€/mois HT HC
Disponibilité : Immédiate
Surface : divisibles à partir de 3 256 m²
Bureaux et Activités - 2 032m² Divisibles à partir de 396 m²
SAINT OUEN (93400)
SAINT OUEN (93400)
6 270.00€/mois HT HC
Disponibilité : Immédiate
Surface : divisibles à partir de 396 m²
Bureaux et Activités - 1 592m²
OSTWALD (67540)
OSTWALD (67540)
8 332.79€/mois HT HC
Disponibilité : 1er juillet 2026
Surface : 1 592 m²
Les entrepreneurs ayant consulté cette offre ont aussi consulté celles ci
Bureaux et Activités - 4 645.22m² Divisibles à partir de 249.90 m²
VILLIERS SUR MARNE (94350)
VILLIERS SUR MARNE (94350)
54 180.00€/mois HT HC
Disponibilité : Immédiate
Surface : divisibles à partir de 249.90 m²
Bureaux et Activités - 6 512m² Divisibles à partir de 3 256 m²
PANTIN (93500)
PANTIN (93500)
3 152.50€/mois HT HC
Disponibilité : Immédiate
Surface : divisibles à partir de 3 256 m²
Bureaux et Activités - 2 032m² Divisibles à partir de 396 m²
SAINT OUEN (93400)
SAINT OUEN (93400)
6 270.00€/mois HT HC
Disponibilité : Immédiate
Surface : divisibles à partir de 396 m²
Bureaux et Activités - 1 592m²
OSTWALD (67540)
OSTWALD (67540)
8 332.79€/mois HT HC
Disponibilité : 1er juillet 2026
Surface : 1 592 m²