Retour
Disponibilité juin 2026
À Louer Locaux Commerciaux 255.13 m² divisibles à partir de 82.32 m² ROUTE DE RENNES ORVAULT (44700)
Ajouter au comparateur
Vous souhaitez faciliter votre recherche ?
Créez un compte
Présentation du bien
ROUTE DE RENNES - IMMPROVE vous propose à la location 3 cellules commerciales divisibles ou non. Situés sur un axe majeur au Nord de Nantes vous bénéficiez d’une excellente visibilité.
Surface totale
Nature
Divisibilité
Etat des locaux
255.13 m²
Locaux Commerciaux
Oui à partir de 82.32 m²
Neuf
Prix & Conditions
Loyer :
254 € /m²/an (HT/HC)
1 735 € /mois (HT/HC)
20 826 € /an (HT/HC)
Divisibles à partir de 82.32 m²
Dépôt de garantie :
3 mois de loyer HT HC
Conditions location :
Locaux neufs loués clés en main en échange d'un surloyer ou droit d'entrée
Prestations & équipements du bien
Les espaces de travail
Immeuble neuf
Locaux neufs loués clés en main en échange d'un surloyer ou droit d'entrée :
Le confort au quotidien
Carrelage
Climatisation
Les accès
Accès PMR
Accès privatif sur rue
Autres
Isolation
Peinture
Sanitaires
Possibilité de louer des places de stationnement au sous-sol
Locaux neufs loués clés en main en échange d'un surloyer ou droit d'entrée
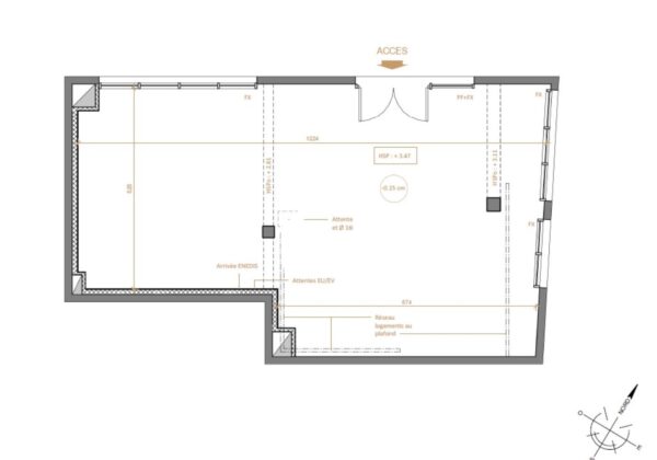
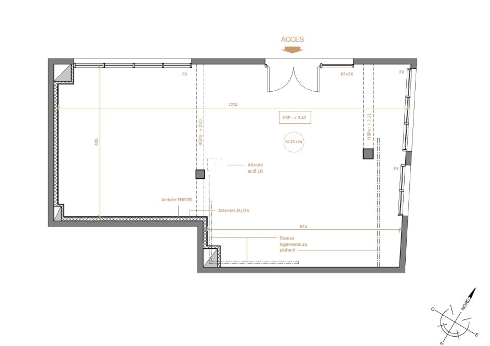
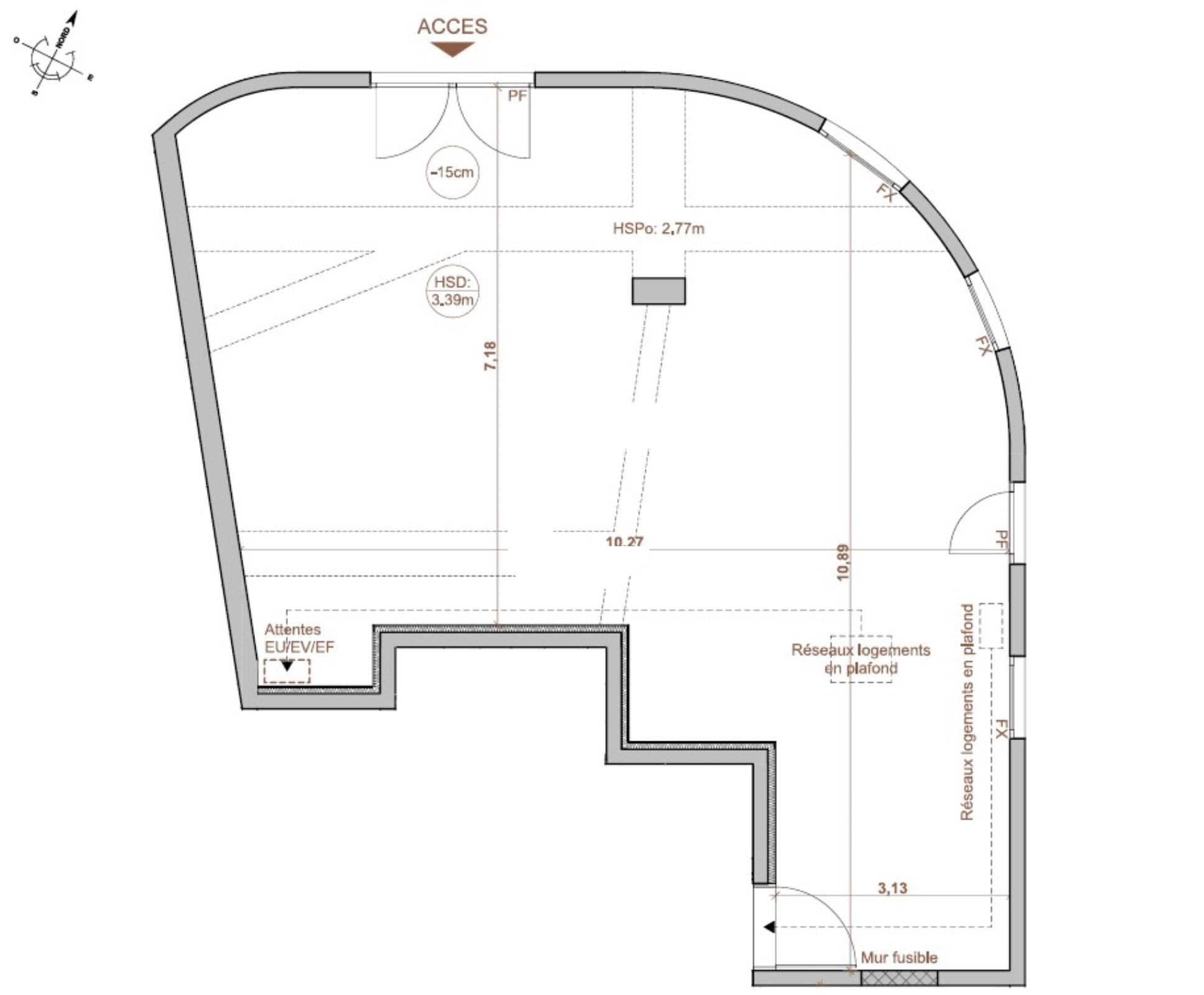
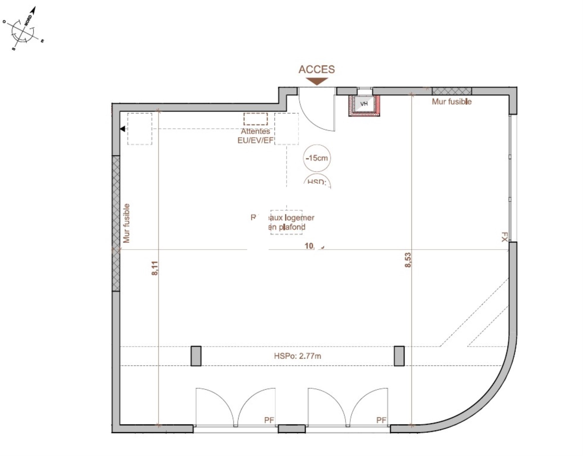
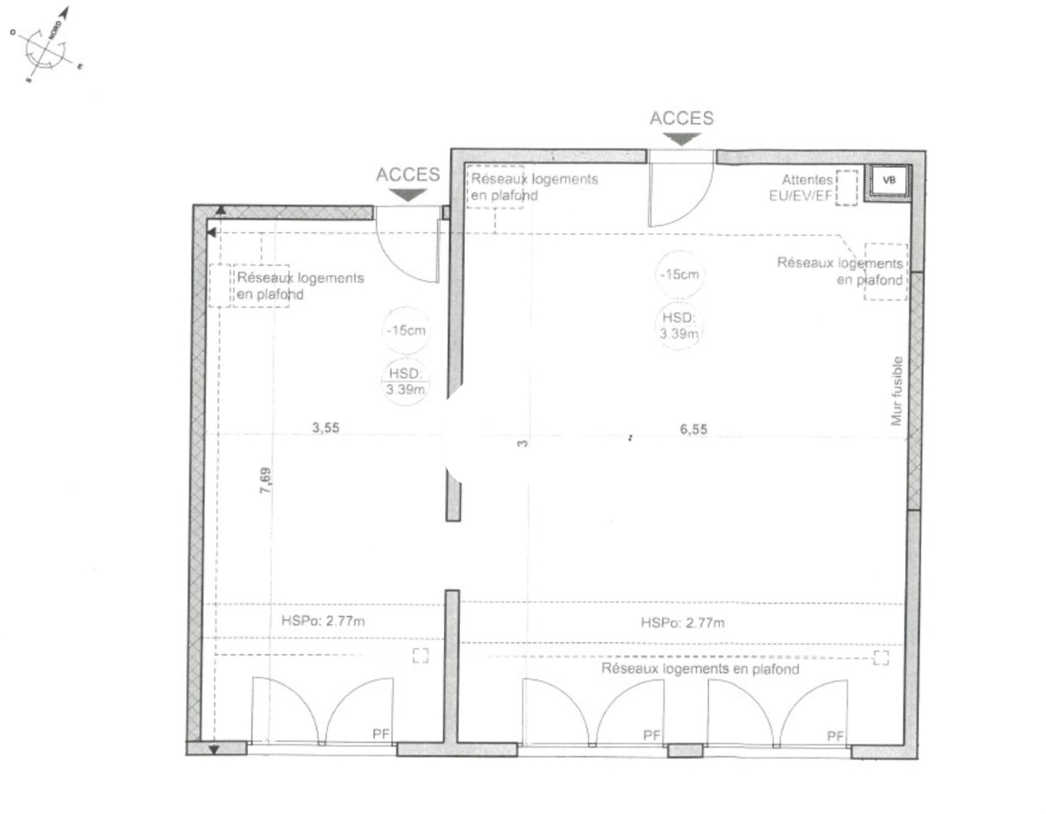
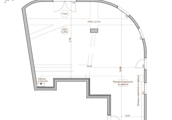
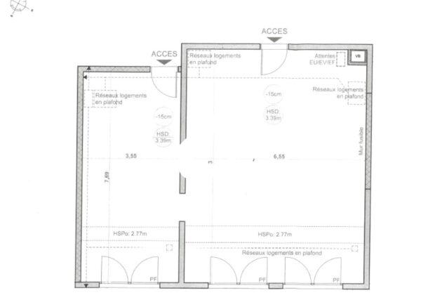
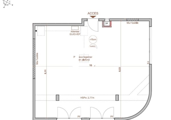
Répartition & surfaces des espaces
Tableau des divisibilités
| Type | Étage | Surface | Loyer (€/m²/an HT HC) |
Charges (€/m²/an HT HC) |
|---|---|---|---|---|
| Locaux Commerciaux | Rez-de-Chaussée | 90 m² | 253.81 | Prix sur demande |
| Locaux Commerciaux | Rez-de-Chaussée | 82 m² | 255.10 | Prix sur demande |
| Locaux Commerciaux | Rez-de-Chaussée | 83 m² | 253.07 | Prix sur demande |
Performance énergétique du bien (DPE)


Informations non contractuelles
Localisation & accès
Transports en commun à proximité
Le Cardo
Accès routier
Ligne 2 à proximité immédiate
Porte de Rennes à proximité
Adresses
approximatives
Adresses
précises
Nos nouveaux biens qui pourraient vous intéresser
Locaux Commerciaux - 286.90m²
ORVAULT (44700)
ORVAULT (44700)
4 084.73€/mois HT HC
Disponibilité : Immédiate
Surface : 286.90 m²
Locaux Commerciaux - 1 690m²
ORVAULT (44700)
ORVAULT (44700)
16 221.18€/mois HT HC
Disponibilité : Immédiate
Surface : 1 690 m²
Les entrepreneurs ayant consulté cette offre ont aussi consulté celles ci
Locaux Commerciaux - 544m²
PARIS (75020)
PARIS (75020)
14 833.52€/mois HT HC
Disponibilité : Immédiate
Surface : 544 m²
Locaux Commerciaux - 320m²
LILLE (59000)
LILLE (59000)
11 250.13€/mois HT HC
Disponibilité : Immédiate
Surface : 320 m²
Bureaux et Locaux Commerciaux - 68.90m²
MAUREPAS (78310)
MAUREPAS (78310)
954.50€/mois HT HC
Disponibilité : Immédiate
Surface : 68.90 m²
Locaux Commerciaux - 105m² Divisibles à partir de 50 m²
ELANCOURT (78990)
ELANCOURT (78990)
1 000.00€/mois HT HC
Disponibilité : Immédiate
Surface : divisibles à partir de 50 m²