Retour
À Louer Locaux Commerciaux 1 217 m² ORVAULT (44700)
Ajouter au comparateur
Vous souhaitez faciliter votre recherche ?
Créez un compte
Présentation du bien
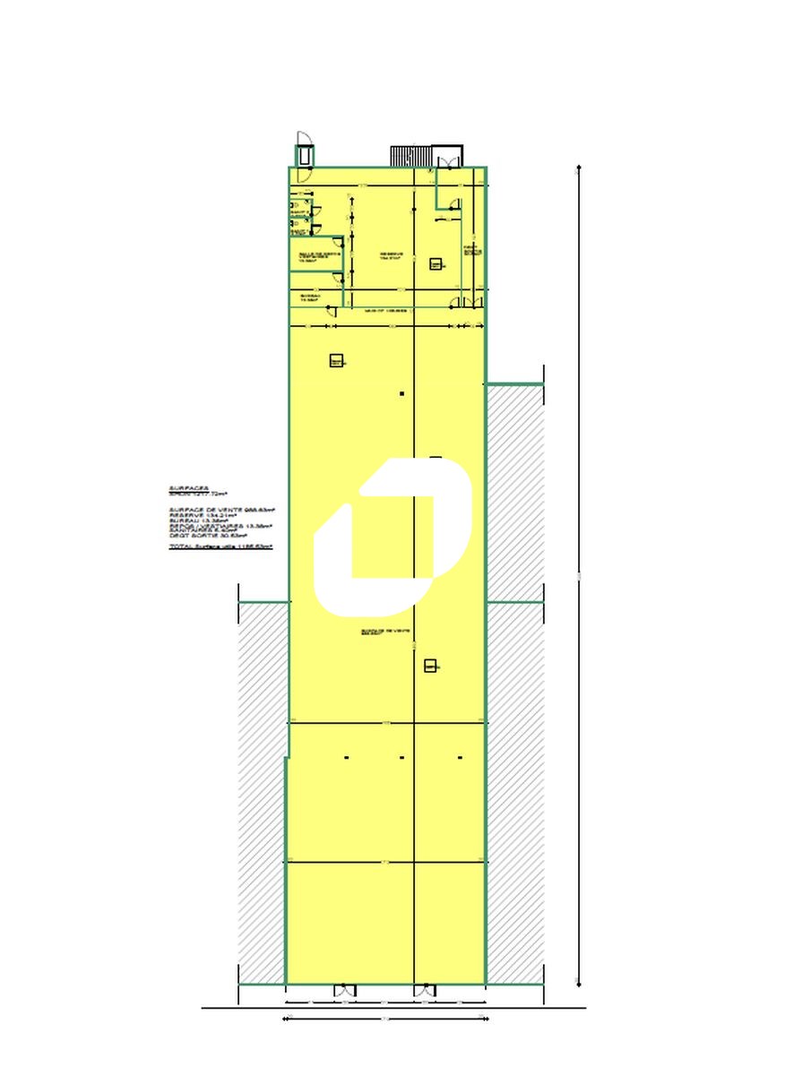
IMMPROVE vous propose à la location un local commercial de 1 217 m² idéalement situé sur la très dynamique Route de Vannes à Orvault.
Il se compose comme suit :
• Surface commerciale : environ 989 m²
• Annexes / dépôt : environ 228 m²
• Stationnement : parking partagé avec l’ensemble des commerces de la zone soit une centaine de places;
Ce local bénéficie d’un emplacement stratégique offrant forte visibilité et important flux de clientèle, idéal pour développer votre activité (PAS DE RESTAURATION).
Surface totale
Nature
Divisibilité
Etat des locaux
1 217 m²
Locaux Commerciaux
Non
Bon état
Prix & Conditions
Loyer :
205 € /m²/an (HT/HC)
20 790 € /mois (HT/HC)
249 484 € /an (HT/HC)
Impôt foncier :
13928.00
TEOM :
1878.71
Dépôt de garantie :
3 mois de loyer HT HC
Conditions location :
Charges : 1360,06 € HT :
- Eau Froide
- Entretien des espaces verts
- Nettoyage du parking
- Eau Froide
- Entretien des espaces verts
- Nettoyage du parking
Prestations & équipements du bien
Charges : 1360,06 € HT :
- Eau Froide
- Entretien des espaces verts
- Nettoyage du parking
Répartition & surfaces des espaces
Tableau des divisibilités
| Type | Étage | Surface | Loyer (€/m²/an HT HC) |
Charges (€/m²/an HT HC) |
|---|---|---|---|---|
| Locaux Commerciaux | 1 217 m² | 205.42 | 2.60 |
Performance énergétique du bien (DPE)


Informations non contractuelles
Localisation & accès
Transports en commun à proximité
69
169
Accès routier
A844
Boulevard périphérique : Porte de Sautron 35 / N844
Ligne 3 / Marcel Paul
Adresses
approximatives
Adresses
précises
Nos nouveaux biens qui pourraient vous intéresser
Locaux Commerciaux - 255.13m² Divisibles à partir de 82.32 m²
ORVAULT (44700)
ORVAULT (44700)
1 903.58€/mois HT HC
Disponibilité : juin 2026
Surface : divisibles à partir de 82.32 m²
Locaux Commerciaux - 286.90m²
ORVAULT (44700)
ORVAULT (44700)
4 084.73€/mois HT HC
Disponibilité : Immédiate
Surface : 286.90 m²
Locaux Commerciaux - 1 690m²
ORVAULT (44700)
ORVAULT (44700)
16 221.18€/mois HT HC
Disponibilité : Immédiate
Surface : 1 690 m²
Les entrepreneurs ayant consulté cette offre ont aussi consulté celles ci
Locaux Commerciaux - 544m²
PARIS (75020)
PARIS (75020)
14 833.52€/mois HT HC
Disponibilité : Immédiate
Surface : 544 m²
Locaux Commerciaux - 320m²
LILLE (59000)
LILLE (59000)
11 250.13€/mois HT HC
Disponibilité : Immédiate
Surface : 320 m²
Bureaux et Locaux Commerciaux - 68.90m²
MAUREPAS (78310)
MAUREPAS (78310)
954.50€/mois HT HC
Disponibilité : Immédiate
Surface : 68.90 m²
Locaux Commerciaux - 105m² Divisibles à partir de 50 m²
ELANCOURT (78990)
ELANCOURT (78990)
1 000.00€/mois HT HC
Disponibilité : Immédiate
Surface : divisibles à partir de 50 m²