Retour
Disponibilité Immédiate
À Louer Locaux d'Activités 588.20 m² GRADIGNAN (33170)
Ajouter au comparateur
Vous souhaitez faciliter votre recherche ?
Créez un compte
Présentation du bien
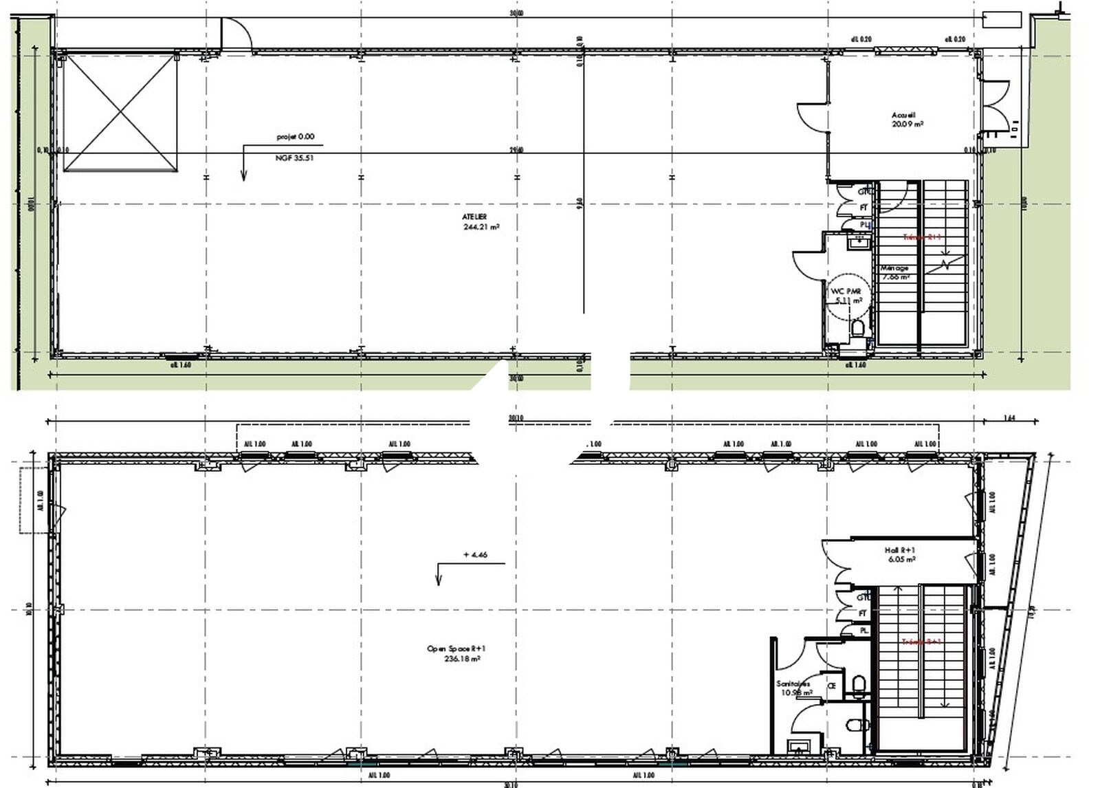
À proximité immédiate de l'autoroute A63 (Bordeaux - Bayonne), IMMPROVE vous propose à la location un bâtiment indépendant d’une surface totale de 588 m², comprenant environ 300 m² d’entrepôt au RDC et 288,2 m² de bureaux en R+1. Le bâtiment est implanté sur un site clos, arboré et sécurisé, offrant de nombreuses places de stationnement.
Surface totale
Nature
Divisibilité
Etat des locaux
588.20 m²
Locaux d'Activités
Non
Neuf
Prix & Conditions
Loyer :
130 € /m²/an (HT/HC)
6 370 € /mois (HT/HC)
76 440 € /an (HT/HC)
Dépôt de garantie :
3 mois de loyer HT HC
Prestations & équipements du bien
Le bâtiment
Bâtiment indépendant
Façade en bardage
Les espaces de travail
Fibre optique . Neuf
Accueil
Sanitaires privatifs
Locaux rationnels et modulables
Faux plafonds
Le confort au quotidien
Climatisation réversible
Locaux traversants
Locaux lumineux
Sol PVC
Climatisation réversible
Courant triphasée
Les accès
Accès véhicules légers
Accès poids lourds
Accès PMR
Accès privatif sur rue
Portail d'accès
Porte sectionnelle de plain-pied : 1
Dimensions porte : 3 (H) x3 (L) m
Sécurité du site
Digicode
Site clos
Prestations spécifiques
Charge au sol : 2 tonnes / m²
Hauteur libre : 4 m
Répartition & surfaces des espaces
Tableau des divisibilités
| Type | Étage | Surface | Loyer (€/m²/an HT HC) |
Charges (€/m²/an HT HC) |
|---|---|---|---|---|
| Activités | 588 m² | 130.00 | Prix sur demande |
Performance énergétique du bien (DPE)


Informations non contractuelles
Localisation & accès
Transports en commun à proximité
39
Accès routier
A630 sortie 15
A63 - Bordeaux / Bayonne
Adresses
approximatives
Adresses
précises
Nos nouveaux biens qui pourraient vous intéresser
Locaux d'Activités - 662m²
GRADIGNAN (33170)
GRADIGNAN (33170)
3 861.67€/mois HT HC
Disponibilité : Immédiate
Surface : 662 m²
Les entrepreneurs ayant consulté cette offre ont aussi consulté celles ci
Locaux d'Activités - 3 146m²
LE BLANC MESNIL (93150)
LE BLANC MESNIL (93150)
28 838.33€/mois HT HC
Disponibilité : 4 à 5 mois après signature
Surface : 3 146 m²
Locaux d'Activités - 8 470m²
COIGNIERES (78310)
COIGNIERES (78310)
63 525.00€/mois HT HC
Disponibilité : 1er juillet 2026
Surface : 8 470 m²
Locaux d'Activités - 540m²
PUTEAUX (92800)
PUTEAUX (92800)
0.00€/mois HT HC
Disponibilité : Immédiate
Surface : 540 m²
Locaux d'Activités - 487m²
CHAMBLY (60230)
CHAMBLY (60230)
3 774.25€/mois HT HC
Disponibilité : Immédiate
Surface : 487 m²