Retour
Disponibilité Immédiate
À Louer Locaux d'Activités 3 888 m² divisibles à partir de 606 m² VILLENEUVE D'ASCQ (59650)
Ajouter au comparateur
Vous souhaitez faciliter votre recherche ?
Créez un compte
Présentation du bien
Immprove vous propose des cellules d’activités disponibles au sein d’un parc d’activité clos à Villeneuve d’Ascq. Cellules livrées rénovées avec porte sectionnelle. Bureaux rénovés et parkings en foisonnement. Hauteur sous poutre de 7 mètres vous permettant de poser des racks. Vous bénéficierez d’une proximité immédiate avec le Boulevard du Breucq vous permettant de rejoindre l’A1, l’A22 ou Lille en moins de 10 minutes. Disponibilité : voir en fonction des lots
Surface totale
Nature
Divisibilité
Etat des locaux
3 888 m²
Locaux d'Activités
Oui à partir de 606 m²
Bon état
Prix & Conditions
Loyer :
83 € /m²/an (HT/HC)
4 141 € /mois (HT/HC)
49 692 € /an (HT/HC)
Divisibles à partir de 606 m²
Impôt foncier :
8.00
Dépôt de garantie :
3 mois de loyer HT HC
Prestations & équipements du bien
Les espaces de travail
Locaux rationnels et modulables
Cloisonnement amovible
Plinthes périphériques
Le confort au quotidien
Sol PVC - Carrelage
Les accès
Accès véhicules légers
Accès poids lourds
Accès PMR
Double accès
Aire de chargement
Portail d'accès . Hauteur libre : 7 mètres
Porte sectionnelle de plain-pied
Sécurité du site
Site clos
Prestations spécifiques
Chauffage gaz et électrique
Autres
Aire de manoeuvre
Locaux sociaux (douche, réfectoire, sanitaires)
Faux-plafonds
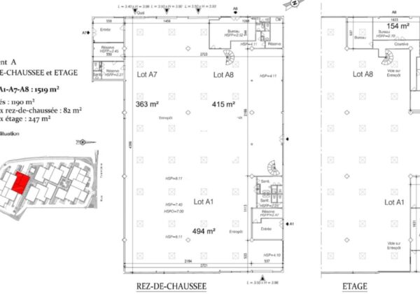
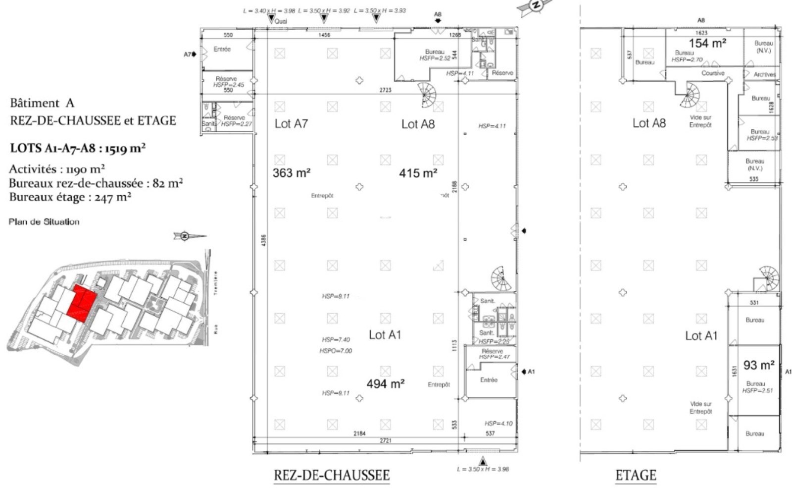
Répartition & surfaces des espaces
Tableau des divisibilités
| Type | Étage | Surface | Loyer (€/m²/an HT HC) |
Charges (€/m²/an HT HC) |
|---|---|---|---|---|
| Activités | 606 m² | 82.50 | 7.50 | |
| Activités | 1 519 m² | 78.90 | 7.50 | |
| Activités | 851 m² | 84.61 | 7.50 | |
| Activités | 912 m² | 84.43 | 7.50 |
Performance énergétique du bien (DPE)


Informations non contractuelles
Localisation & accès
Transports en commun à proximité
Station Triolo à proximité
Accès routier
Boulevard du Breucq à proximité immédiate
A1 à 5 km
Adresses
approximatives
Adresses
précises
Nos nouveaux biens qui pourraient vous intéresser
Locaux d'Activités - 580m²
VILLENEUVE D'ASCQ (59650)
VILLENEUVE D'ASCQ (59650)
5 000.08€/mois HT HC
Disponibilité : Immédiate
Surface : 580 m²
Les entrepreneurs ayant consulté cette offre ont aussi consulté celles ci
Locaux d'Activités - 3 146m²
LE BLANC MESNIL (93150)
LE BLANC MESNIL (93150)
28 838.33€/mois HT HC
Disponibilité : 4 à 5 mois après signature
Surface : 3 146 m²
Locaux d'Activités - 8 470m²
COIGNIERES (78310)
COIGNIERES (78310)
63 525.00€/mois HT HC
Disponibilité : 1er juillet 2026
Surface : 8 470 m²
Locaux d'Activités - 540m²
PUTEAUX (92800)
PUTEAUX (92800)
0.00€/mois HT HC
Disponibilité : Immédiate
Surface : 540 m²
Locaux d'Activités - 487m²
CHAMBLY (60230)
CHAMBLY (60230)
3 774.25€/mois HT HC
Disponibilité : Immédiate
Surface : 487 m²