Retour
Disponibilité A convenir
À Louer Locaux d'Activités 400 m² BILLY BERCLAU (62138)
Ajouter au comparateur
Vous souhaitez faciliter votre recherche ?
Créez un compte
Présentation du bien
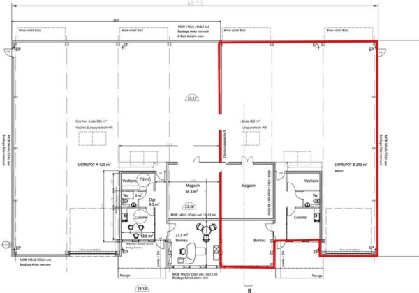
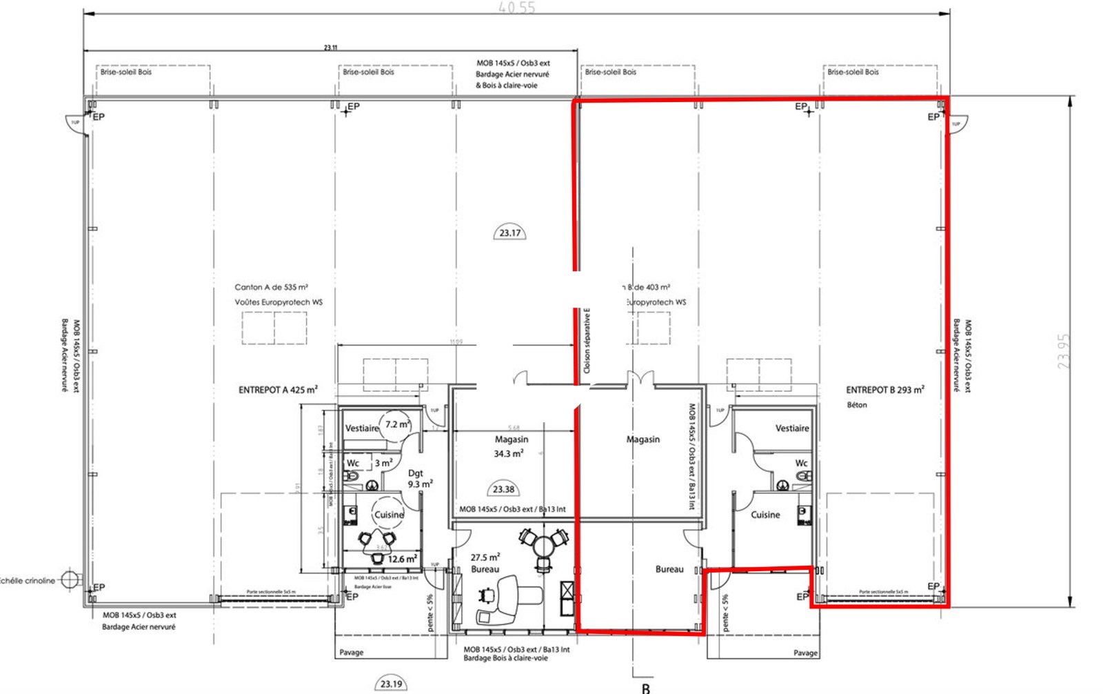
Immprove vous propose, à la location, à Billy-Berclau, un local d’activité / entrepôt de stockage d’une surface de 400 m². Programme neuf situé dans une zone en pleine essor avec une visibilité optimale pour votre future activité. Proche des commerces et de différents points de restauration. Parking extérieur, accès poids lourds, terrain clôturé, portail et porte sectionnelle motorisée 5x5m, alarme et vidéo-surveillance, éclairage LED... Proximité des grands axes routiers et autoroutiers vous permettant de rejoindre Lens en 15 min, Arras et la métropole lilloise en 30 min. Disponibilité à convenir.
Surface totale
Nature
Divisibilité
Etat des locaux
400 m²
Locaux d'Activités
Non
Neuf
Prix & Conditions
Loyer :
105 € /m²/an (HT/HC)
3 500 € /mois (HT/HC)
42 000 € /an (HT/HC)
Dépôt de garantie :
3 mois de loyer HT HC
Prestations & équipements du bien
Le bâtiment
Façade en bardage
Parties communes de qualité
Les espaces de travail
Accueil
Espace ouvert
Sanitaires privatifs
Le confort au quotidien
Cour . Hauteur libre : 5.50 mètres
Les accès
Accès véhicules légers
Accès poids lourds
Accès privatif sur rue
Portail d'accès
Porte sectionnelle de plain-pied
Dimensions porte : 5 (H) x 5 (L) mètres
Sécurité du site
Site clos
Système de télésurveillance
Autres
Aire de manoeuvre
Alarme
Alarme
Triphasé
Sanitaires
Répartition & surfaces des espaces
Tableau des divisibilités
| Type | Étage | Surface | Loyer (€/m²/an HT HC) |
Charges (€/m²/an HT HC) |
|---|---|---|---|---|
| Activités | Rez-de-Chaussée | 400 m² | 105.00 | Prix sur demande |
Performance énergétique du bien (DPE)


Informations non contractuelles
Localisation & accès
Accès routier
Accès autoroutiers à proximité
[@logo439]
Adresses
approximatives
Adresses
précises
Nos nouveaux biens qui pourraient vous intéresser
Locaux d'Activités - 6 200m²
BELLEVILLE EN BEAUJOLAIS (69220)
BELLEVILLE EN BEAUJOLAIS (69220)
40 000.33€/mois HT HC
Disponibilité : 2ème trimestre 2027
Surface : 6 200 m²
Locaux d'Activités - 25 338m² Divisibles à partir de 6 309 m²
MARIGNANE (13700)
MARIGNANE (13700)
60 796.67€/mois HT HC
Disponibilité : T3 2027
Surface : divisibles à partir de 6 309 m²
Locaux d'Activités - 8 095m² Divisibles à partir de 1 970 m²
LES MUREAUX (78130)
LES MUREAUX (78130)
19 700.00€/mois HT HC
Disponibilité : Immédiate
Surface : divisibles à partir de 1 970 m²
Locaux d'Activités - 177m²
VENDENHEIM (67550)
VENDENHEIM (67550)
1 100.06€/mois HT HC
Disponibilité : 1er aout 2026
Surface : 177 m²
Les entrepreneurs ayant consulté cette offre ont aussi consulté celles ci
Locaux d'Activités - 6 200m²
BELLEVILLE EN BEAUJOLAIS (69220)
BELLEVILLE EN BEAUJOLAIS (69220)
40 000.33€/mois HT HC
Disponibilité : 2ème trimestre 2027
Surface : 6 200 m²
Locaux d'Activités - 8 095m² Divisibles à partir de 1 970 m²
LES MUREAUX (78130)
LES MUREAUX (78130)
19 700.00€/mois HT HC
Disponibilité : Immédiate
Surface : divisibles à partir de 1 970 m²
Locaux d'Activités - 177m²
VENDENHEIM (67550)
VENDENHEIM (67550)
1 100.06€/mois HT HC
Disponibilité : 1er aout 2026
Surface : 177 m²
Locaux d'Activités - 296m²
VENDENHEIM (67550)
VENDENHEIM (67550)
1 799.93€/mois HT HC
Disponibilité : Juin 2026
Surface : 296 m²