Retour
Locaux d'Activités - 1 034m² à Louer
. Dalle béton
. Chauffage à gaz
. Kitchenette
. Sanitaires privatifs
. 11 places de parking
Locaux d'Activités - 1 034m² à Louer
RUE MARCEL MERIEUX LYON (69007)
DESCRIPTION
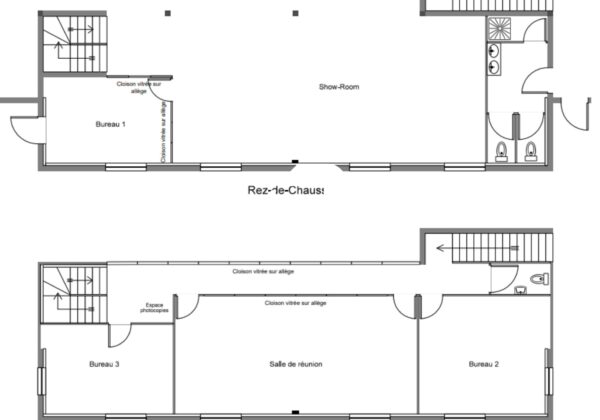
IMMPROVE Lyon, vous propose à Lyon 69007, un local d’activité de 1034 m². Celui-ci se compose de 798 m² d’activité en RDC, 116 m² de bureaux et 120 m² de mezzanine. Vous disposerez de 11 places de parking en complément.
En savoir plus
. Porte sectionnelle. Dalle béton
. Chauffage à gaz
. Kitchenette
. Sanitaires privatifs
. 11 places de parking
Consommations énergétiques


Informations non contractuelles
Tableau des divisibilités
| Type | Étage | Surface | Loyer (€/m²/an HT HC) |
Charges (€/m²/an HT HC) |
|---|---|---|---|---|
| Activités | 1 034 m² | 116.05 | Prix sur demande |
Caractéristiques
- Surface 1 034 m²
- Etat des locaux Bon état
Adresses
approximatives
Adresses
précises
Nos nouveaux biens qui pourraient vous intéresser
Locaux d'Activités - 1 908m² Divisibles à partir de 954 m²
à Louer
LYON (69008)
Voir le bien
6 757.50€/mois HT HC
Les entrepreneurs ayant consulté cette offre ont aussi consulté celles ci
Les services Immprove
Une gamme complète de services qui facilitent vos démarches et destinée à satisfaire vos attentes