Retour
Disponibilité Immédiate
À Louer Locaux d'Activités 843.90 m² divisibles à partir de 392.90 m² COLLEGIEN (77090)
Ajouter au comparateur
Vous souhaitez faciliter votre recherche ?
Créez un compte
Présentation du bien
Situé à proximité immédiate de l’A4 et de la Francilienne à Collégien, IMMPROVE vous propose un local d’activité avec bureaux d'accompagnement d'environ 4843 m² divisibles à partir de 392 m²
Les locaux sont situés au sein d’un parc d’activité fermé et sécurisé, et proposent de belles prestations.
Pour plus d'information n'hésitez pas à nous contacter
Surface totale
Nature
Divisibilité
Etat des locaux
843.90 m²
Locaux d'Activités
Oui à partir de 392.90 m²
Neuf
Prix & Conditions
Loyer :
115 € /m²/an (HT/HC)
3 765 € /mois (HT/HC)
45 183 € /an (HT/HC)
Divisibles à partir de 392.90 m²
Impôt foncier :
13.54
Taxe bureaux :
12.03
Dépôt de garantie :
3 mois de loyer HT HC
Conditions location :
- Montant de la prime d'assurances 2024 : 1.80 € HT /m²/an
Prestations & équipements du bien
Les espaces de travail
Hauteur sous faux plafonds : 2,60 mètres
Faux plafonds
Sanitaires privatifs
Le confort au quotidien
Moquette
Les accès
Dimensions porte : 3 (H) x 4 (L) m
Prestations spécifiques
Hauteur libre de 7 mètres minimum
Chauffage par aérotherme gaz
Ventilation naturelle
Système de chauffage et ventilation conforme aux prescriptions de la RT 2012
Autres
Activités :
Portes sectionnelles
Dallage en béton surfacé quartz (surcharge 3T/m²)
Bureaux :
Hauteur sous poutres mezzanine : 4,30 mètres minimum
- Montant de la prime d'assurances 2024 : 1.80 € HT /m²/an
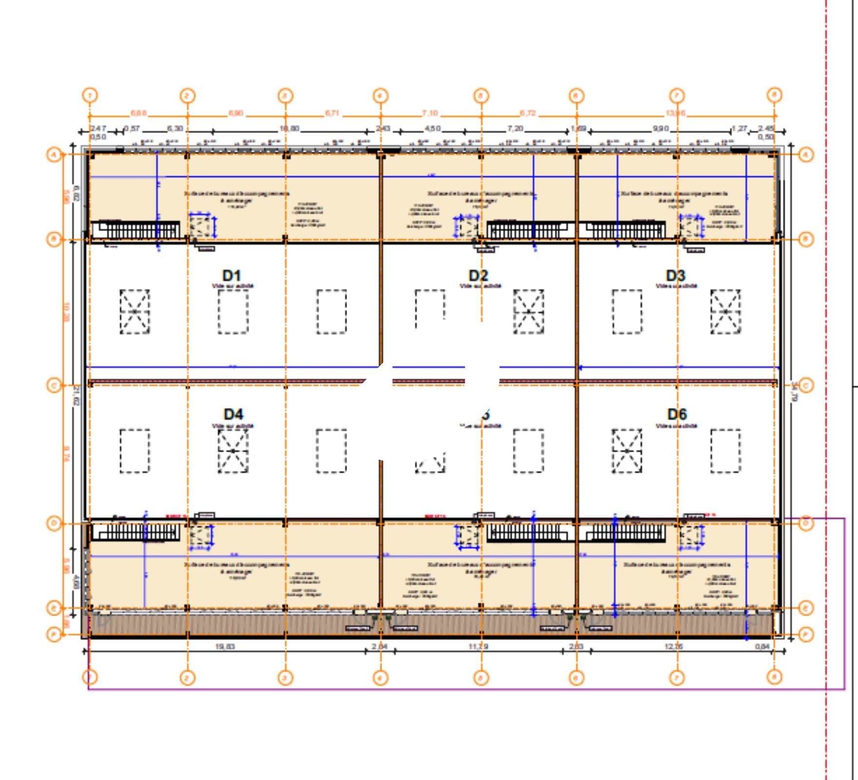
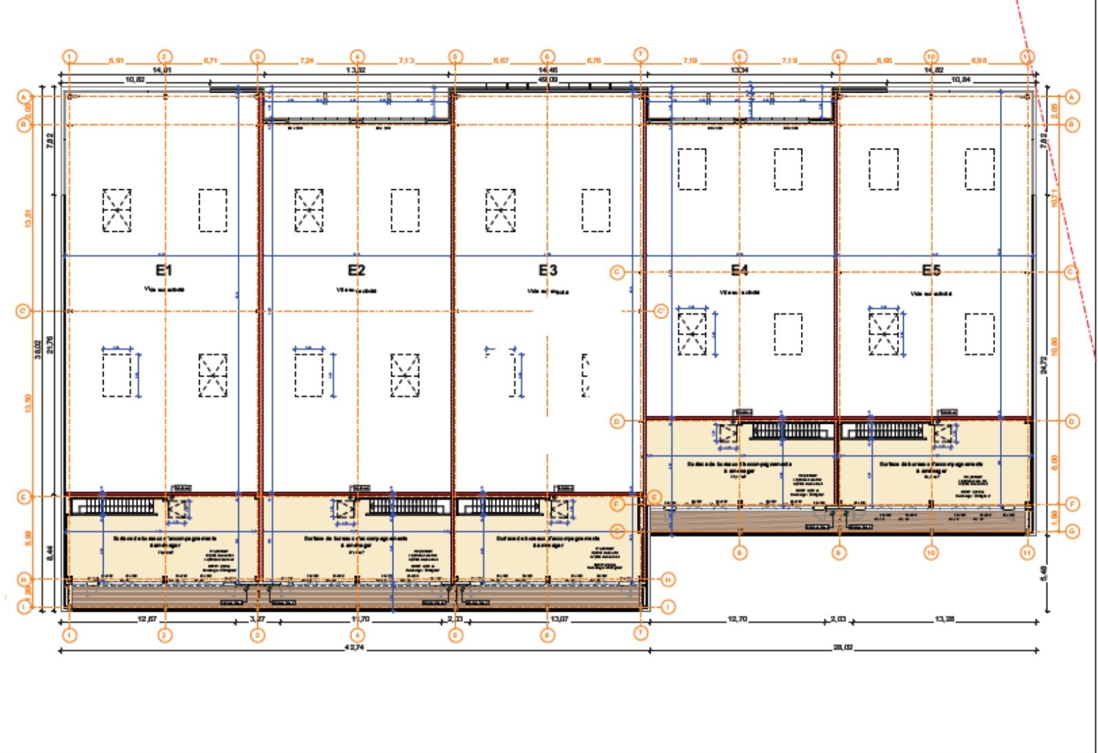
Répartition & surfaces des espaces
Tableau des divisibilités
| Type | Étage | Surface | Loyer (€/m²/an HT HC) |
Charges (€/m²/an HT HC) |
|---|---|---|---|---|
| Activités | 393 m² | 115.00 | 10.72 | |
| Activités | 451 m² | 115.00 | 8.95 |
Performance énergétique du bien (DPE)


Informations non contractuelles
Localisation & accès
Transports en commun à proximité
13
Accès routier
Autoroute A4 - A104
Adresses
approximatives
Adresses
précises
Nos nouveaux biens qui pourraient vous intéresser
Locaux d'Activités - 310m²
COLLEGIEN (77090)
COLLEGIEN (77090)
2 970.83€/mois HT HC
Disponibilité : Immédiate
Surface : 310 m²
Les entrepreneurs ayant consulté cette offre ont aussi consulté celles ci
Locaux d'Activités - 1 940m² Divisibles à partir de 403 m²
MEYZIEU (69330)
MEYZIEU (69330)
15 666.32€/mois HT HC
Disponibilité : Selon les lots
Surface : divisibles à partir de 403 m²
Locaux d'Activités - 5 112m² Divisibles à partir de 150 m²
BERNOLSHEIM (67170)
BERNOLSHEIM (67170)
2 918.70€/mois HT HC
Disponibilité : Novembre 2026
Surface : divisibles à partir de 150 m²
Locaux d'Activités - 154m²
SAINT HERBLAIN (44800)
SAINT HERBLAIN (44800)
1 600.06€/mois HT HC
Disponibilité : 1er juin 2026
Surface : 154 m²
Locaux d'Activités - 250m²
SAINT HERBLAIN (44800)
SAINT HERBLAIN (44800)
1 700.00€/mois HT HC
Disponibilité : 1er septembre 2026
Surface : 250 m²