Retour
Disponibilité 2T2023
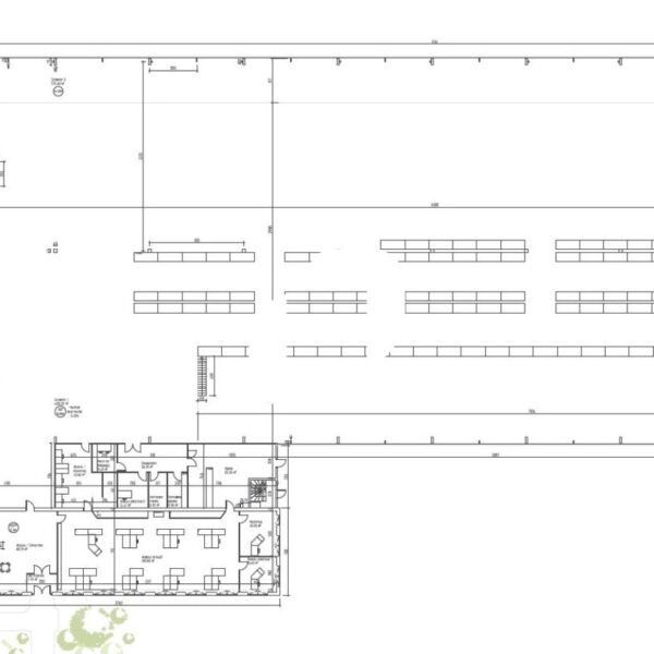
À Louer Locaux d'Activités 7 030 m² COMBS LA VILLE (77380)
Ajouter au comparateur
Vous souhaitez faciliter votre recherche ?
Créez un compte
Présentation du bien
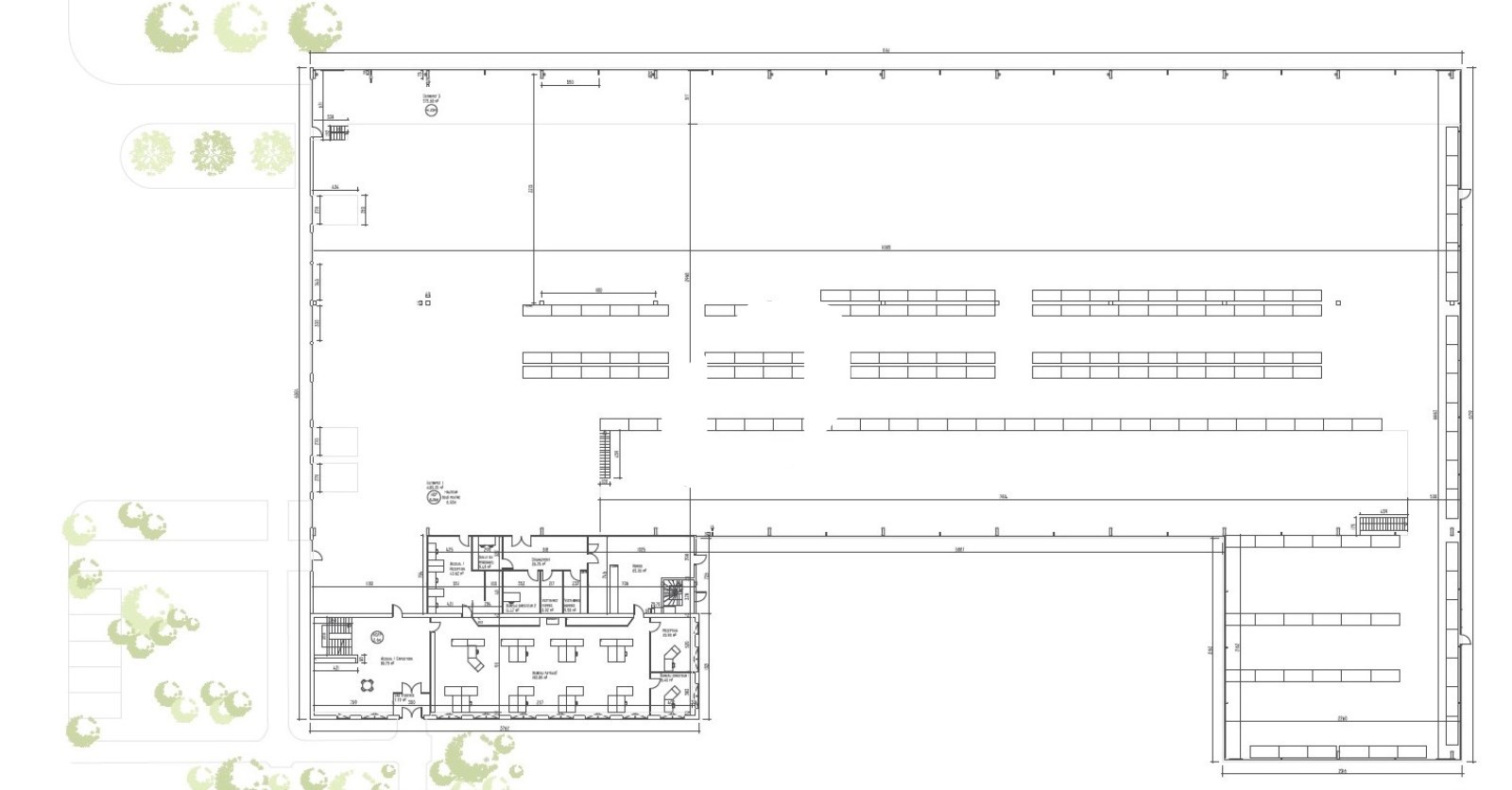
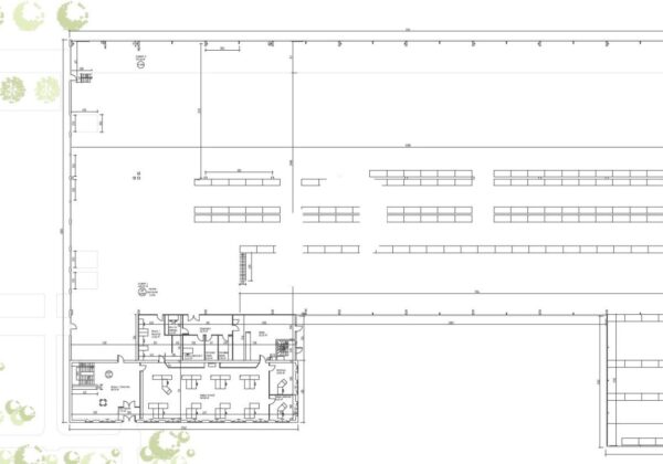
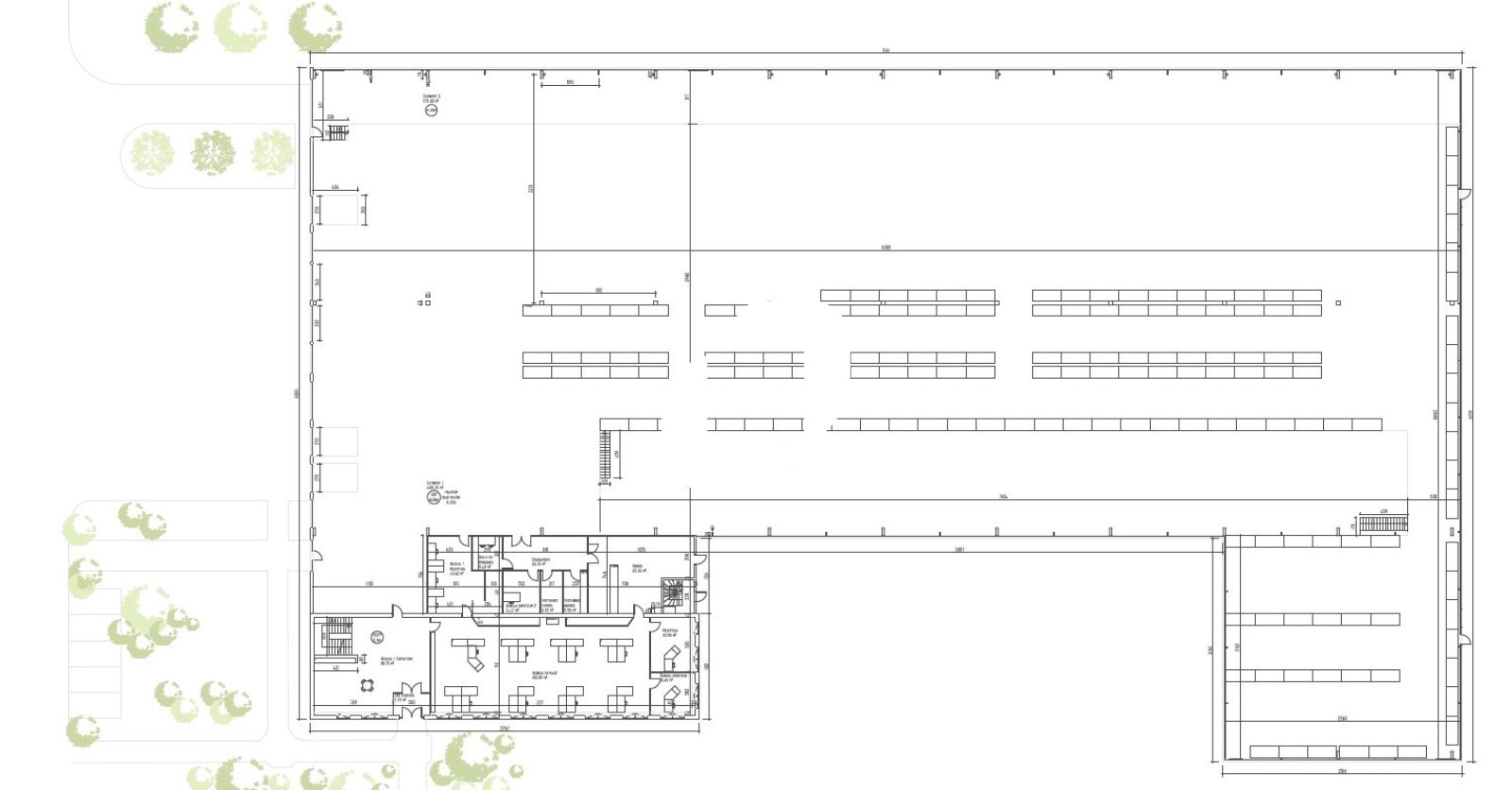
Dans la zone logistique de Combs-la-Ville, au pied de l’axe N104, Immprove vous propose à la location un bâtiment indépendant de 7030 m² avec 8 quais et 2 plain-pied sur un terrain de 17 000 m² environ
Surface totale
Nature
Divisibilité
Etat des locaux
7 030 m²
Locaux d'Activités
Non
Bon état
Prix & Conditions
Loyer :
65 € /m²/an (HT/HC)
38 079 € /mois (HT/HC)
456 950 € /an (HT/HC)
Impôt foncier :
13.50
Dépôt de garantie :
3 mois de loyer HT HC
Prestations & équipements du bien
Le bâtiment
Bâtiment indépendant
Les espaces de travail
Bureaux cloisonnés
Salle de réunion
Local technique
Cuisine
Les accès
Accès poids lourds
Aire de chargement
Quais : 8
Porte sectionnelle de plain-pied : 2
Dimensions porte : 4 (H) x4 (L) m
Sécurité du site
Site clos
Prestations spécifiques
Chauffage par aérotherme au gaz
Charge au sol : 3 tonnes / m²
Hauteur libre : 7,5 m
Autres
Structure béton
Sanitaires et vestiaires
Répartition & surfaces des espaces
Tableau des divisibilités
| Type | Étage | Surface | Loyer (€/m²/an HT HC) |
Charges (€/m²/an HT HC) |
|---|---|---|---|---|
| Activités | 7 030 m² | 65.00 | 2.00 |
Performance énergétique du bien (DPE)


Informations non contractuelles
Localisation & accès
Transports en commun à proximité
21
Accès routier
A5, N104, N6
Adresses
approximatives
Adresses
précises
Nos nouveaux biens qui pourraient vous intéresser
Locaux d'Activités - 484.06m² Divisibles à partir de 30.86 m²
COMBS LA VILLE (77380)
COMBS LA VILLE (77380)
1 516.67€/mois HT HC
Surface : divisibles à partir de 30.86 m²
Locaux d'Activités - 420m² Divisibles à partir de 140 m²
COMBS LA VILLE (77380)
COMBS LA VILLE (77380)
1 737.87€/mois HT HC
Disponibilité : Immédiate
Surface : divisibles à partir de 140 m²
Les entrepreneurs ayant consulté cette offre ont aussi consulté celles ci
Locaux d'Activités - 1 940m² Divisibles à partir de 403 m²
MEYZIEU (69330)
MEYZIEU (69330)
15 666.32€/mois HT HC
Disponibilité : Selon les lots
Surface : divisibles à partir de 403 m²
Locaux d'Activités - 5 112m² Divisibles à partir de 150 m²
BERNOLSHEIM (67170)
BERNOLSHEIM (67170)
2 918.70€/mois HT HC
Disponibilité : Novembre 2026
Surface : divisibles à partir de 150 m²
Locaux d'Activités - 154m²
SAINT HERBLAIN (44800)
SAINT HERBLAIN (44800)
1 600.06€/mois HT HC
Disponibilité : 1er juin 2026
Surface : 154 m²
Locaux d'Activités - 250m²
SAINT HERBLAIN (44800)
SAINT HERBLAIN (44800)
1 700.00€/mois HT HC
Disponibilité : 1er septembre 2026
Surface : 250 m²