Retour
Locaux d'Activités - 665m² à Louer
. Façade en bardage
. Accès véhicules légers
. Accès privatif sur rue
. Portail d'accès
. Site clos
. Fibre optique
. Cour Locaux en bon état aménagés en :
. Espace ouvert
. Bureaux cloisonnés
. Salle de réunion
. Local technique
. Sanitaires privatifs
. Décloisonnement possible
. Locaux rationnels et modulables
. Faux plafonds
. Sol PVC
. Cloisons sèches
. Chauffage électrique
. Charge au sol : 2 tonnes / m²
. Hauteur libre : 5 m
. Porte sectionnelle de plain-pied : 4x 8 m
. Douche
. Vestiaire
Locaux d'Activités - 665m² à Louer
RUE PIERRE DE GEYTER SAINT DENIS (93380)
DESCRIPTION
IMMPROVE vous propose à la location des locaux d’activité de 665 m² idéalement situés à Saint-Denis, au cœur d’un secteur dynamique et facilement accessible via le RER Pierrefitte-Stains, les tramways T5 et T11 ainsi que les axes A86, N1 et N14. Cette surface d’activité avec bureaux d'accompagnement offre un cadre fonctionnel et adaptable, parfaitement adapté aux start-up, PME, activités de production ou de stockage.
En savoir plus
. Bâtiment ancien. Façade en bardage
. Accès véhicules légers
. Accès privatif sur rue
. Portail d'accès
. Site clos
. Fibre optique
. Cour Locaux en bon état aménagés en :
. Espace ouvert
. Bureaux cloisonnés
. Salle de réunion
. Local technique
. Sanitaires privatifs
. Décloisonnement possible
. Locaux rationnels et modulables
. Faux plafonds
. Sol PVC
. Cloisons sèches
. Chauffage électrique
. Charge au sol : 2 tonnes / m²
. Hauteur libre : 5 m
. Porte sectionnelle de plain-pied : 4x 8 m
. Douche
. Vestiaire
Consommations énergétiques


Informations non contractuelles
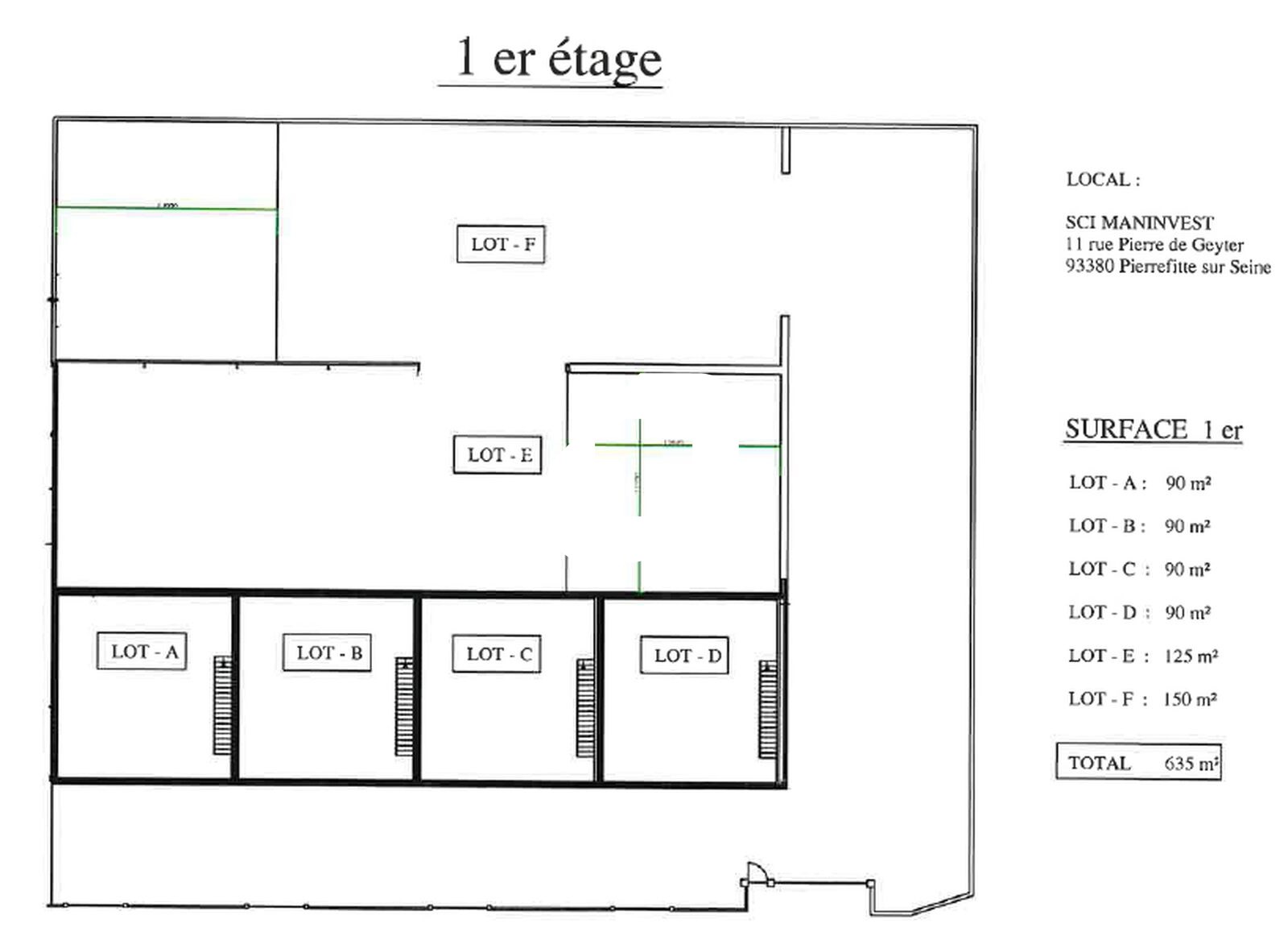
Tableau des divisibilités
| Type | Étage | Surface | Loyer (€/m²/an HT HC) |
Charges (€/m²/an HT HC) |
|---|---|---|---|---|
| Activités | Rez-de-Chaussée | 515 m² | 115.00 | 5.00 |
| Bureaux | 1er étage | 150 m² | 115.00 | 5.00 |
Caractéristiques
- Surface 665 m²
- Etat des locaux Bon état
Adresses
approximatives
Adresses
précises
Nos nouveaux biens qui pourraient vous intéresser
Les entrepreneurs ayant consulté cette offre ont aussi consulté celles ci
Les services Immprove
Une gamme complète de services qui facilitent vos démarches et destinée à satisfaire vos attentes