Retour
Disponibilité Immédiate
À Louer Locaux d'Activités 3 207.98 m² divisibles à partir de 757 m² PARC MICHELET 1 RUE MICHELET IVRY SUR SEINE (94200)
Ajouter au comparateur
Vous souhaitez faciliter votre recherche ?
Créez un compte
Présentation du bien
Rare, Proche Métro et périphérique, IMMPROVE vous propose des surfaces d'activité / bureaux dans un Parc d'activités disposant de belles prestations. Belle hauteur sous plafond.
Surface totale
Nature
Divisibilité
Etat des locaux
3 207.98 m²
Locaux d'Activités
Oui à partir de 757 m²
Travaux à prévoir
Prix & Conditions
Loyer :
140 € /m²/an (HT/HC)
8 831 € /mois (HT/HC)
105 980 € /an (HT/HC)
Divisibles à partir de 757 m²
Impôt foncier :
25.00
Taxe bureaux :
7.92
Dépôt de garantie :
3 mois de loyer HT HC
Conditions location :
Taxe charge assurance : 1.62€/m²/an HT
Prestations & équipements du bien
Les espaces de travail
Accueil / Cuisine
Bureaux cloisonnés en RDC et open space au 1er étage
Le confort au quotidien
Moquette / Faux plafond
Extérieur
Parking privatif
Autres
Charpente : béton
Murs : parpaings
Isolation thermique
Sols : béton
Couverture : bac acier isolé
Hauteur maximale : 2,50 mètres (Lot 23) et 6 mètres (Lot 2)
Accès gros porteurs
Entrée indépendante
Salle informatique
Baie de brassage / Câblage RJ45
Double sanitaire
Taxe charge assurance : 1.62€/m²/an HT
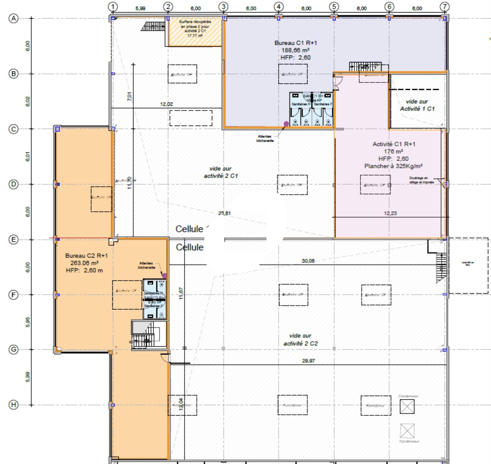
Répartition & surfaces des espaces
Tableau des divisibilités
| Type | Étage | Surface | Loyer (€/m²/an HT HC) |
Charges (€/m²/an HT HC) |
|---|---|---|---|---|
| Activités | 757 m² | 140.00 | 16.00 | |
| Activités | 1 264 m² | 150.00 | 16.00 | |
| Activités | 1 187 m² | 150.00 | 16.00 |
Performance énergétique du bien (DPE)


Informations non contractuelles
Localisation & accès
Transports en commun à proximité
Adresses
approximatives
Adresses
précises
Nos nouveaux biens qui pourraient vous intéresser
Locaux d'Activités - 1 799m² Divisibles à partir de 779 m²
IVRY SUR SEINE (94200)
IVRY SUR SEINE (94200)
11 685.00€/mois HT HC
Disponibilité : Immédiate
Surface : divisibles à partir de 779 m²
Les entrepreneurs ayant consulté cette offre ont aussi consulté celles ci
Locaux d'Activités - 6 200m²
BELLEVILLE EN BEAUJOLAIS (69220)
BELLEVILLE EN BEAUJOLAIS (69220)
40 000.33€/mois HT HC
Disponibilité : 2ème trimestre 2027
Surface : 6 200 m²
Locaux d'Activités - 8 095m² Divisibles à partir de 1 970 m²
LES MUREAUX (78130)
LES MUREAUX (78130)
19 700.00€/mois HT HC
Disponibilité : Immédiate
Surface : divisibles à partir de 1 970 m²
Locaux d'Activités - 177m²
VENDENHEIM (67550)
VENDENHEIM (67550)
1 100.06€/mois HT HC
Disponibilité : 1er aout 2026
Surface : 177 m²
Locaux d'Activités - 296m²
VENDENHEIM (67550)
VENDENHEIM (67550)
1 799.93€/mois HT HC
Disponibilité : Juin 2026
Surface : 296 m²