À Louer Locaux d'Activités 1 799 m² divisibles à partir de 779 m² LEAPARK 122-130 RUE MARCEL HARTMANN IVRY SUR SEINE (94200)
Présentation du bien
Prix & Conditions
Prestations & équipements du bien
Immeuble récent
Immeuble moderne mixte bureaux et activités
Façade mur rideau
Parties communes de qualité
Fibre optique
Bon état
Bureaux cloisonnés
Sanitaires privatifs
Climatisation réversible
Accès véhicules légers
Accès poids lourds
Accès PMR
Accès privatif sur rue
Aire de manœuvre
Aire de chargement
Portail d'accès
Porte sectionnelles de plain pied
Site sécurisé 24h/24h et clos
Digicode
Interphone
Ascenseur
Monte-charge
Tarif jaune 84 KVA (lot electrogeloz)
Vitrage anti-effraction
Porte : camion camionnette
Charpente: béton traité anti-poussière et anti-usure
Résistance au sol: 2T/m²
Accès : plan pied
Portes sectionnelles de plan pied
Porte : camion et camionnette
Vitrage anti-effraction
Fibre
5,80m d'hauteur sous poutre
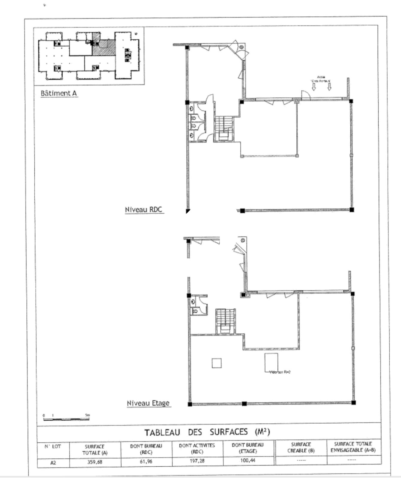
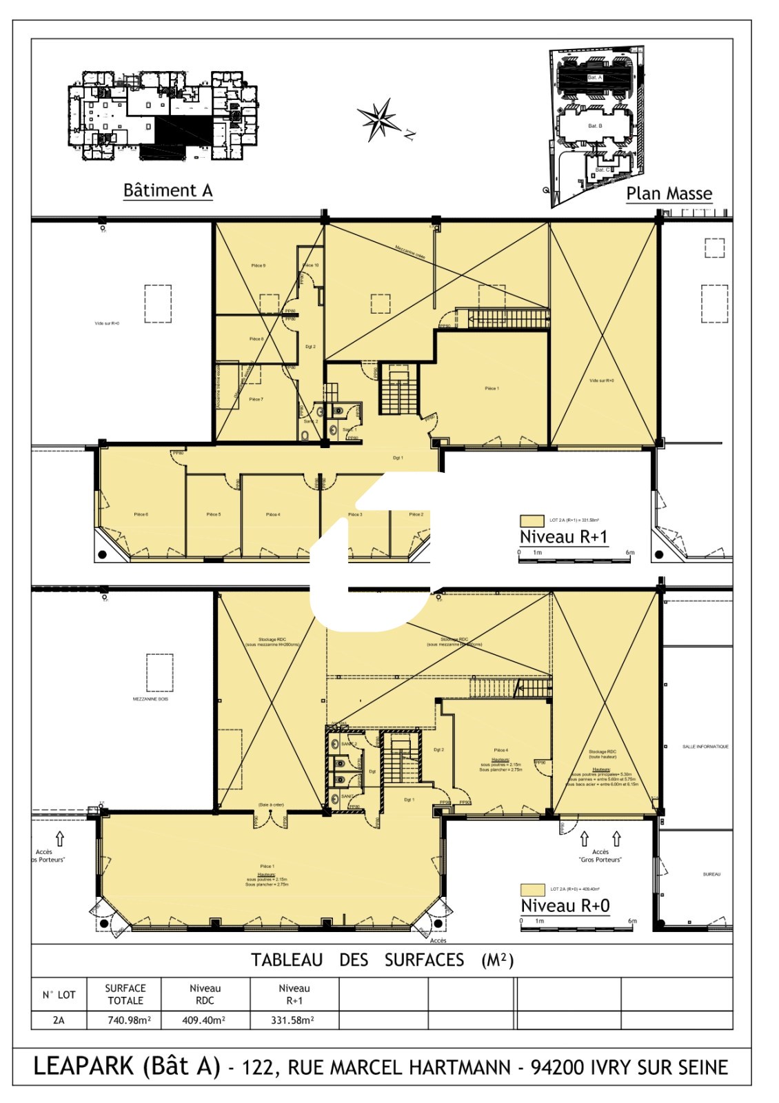
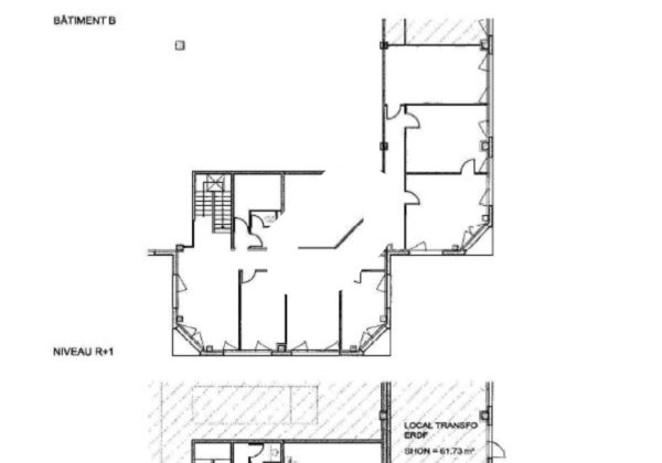
Répartition & surfaces des espaces
Tableau des divisibilités
| Type | Étage | Surface | Loyer (€/m²/an HT HC) |
Charges (€/m²/an HT HC) |
|---|---|---|---|---|
| Activités | 779 m² | 180.00 | Prix sur demande | |
| Activités | 1 020 m² | 180.00 | Prix sur demande |
Performance énergétique du bien (DPE)


Informations non contractuelles
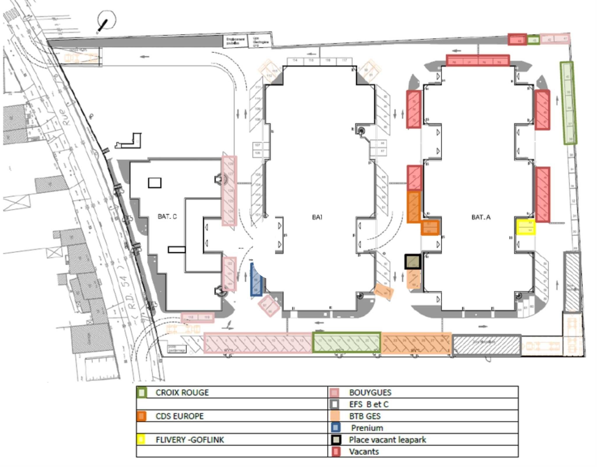
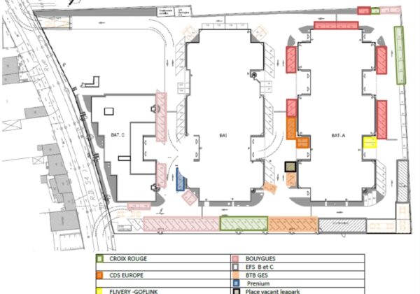
Localisation & accès
Transports en commun à proximité
Accès routier
A4
A6
Adresses
approximatives
Adresses
précises
Nos nouveaux biens qui pourraient vous intéresser
IVRY SUR SEINE (94200)
Les entrepreneurs ayant consulté cette offre ont aussi consulté celles ci
BELLEVILLE EN BEAUJOLAIS (69220)
LES MUREAUX (78130)
VENDENHEIM (67550)
VENDENHEIM (67550)