Retour
Disponibilité 18 MOIS APRES ACCORD
À Acheter Bureaux 826.63 m² divisibles à partir de 96.23 m² RUE DE LA PIERRE BOUGUENAIS (44340)
Ajouter au comparateur
Vous souhaitez faciliter votre recherche ?
Créez un compte
Présentation du bien
IMMPROVE propose un immeuble de bureaux indépendant, divisible ou clé en main, avec un accès rapide aux grands axes et une bonne desserte en transports . Le bâtiment offre des terrasses privatives, un cadre paysagé harmonieux, 16 places de parking (dont 7 en intérieur), un local à vélos (env. 14 places) et se situe à proximité de nombreuses commodités. Prestations intérieures personnalisables.
Surface totale
Nature
Divisibilité
Etat des locaux
826.63 m²
Bureaux
Oui à partir de 96.23 m²
Neuf
Prix & Conditions
Vente :
2 438 233.00 € (HD)
2 750.00 € /m² (HD)
Divisibles à partir de 96.23 m²
Conditions vente :
Loi Carrez et affectation juridique en cours de détermination
Prestations & équipements du bien
Le bâtiment
Immeuble moderne
Parties communes de qualité
Les espaces de travail
Fibre optique
Neuf/Restructuré
Le confort au quotidien
Climatisation réversible
Accessibilité
Ascenseur
Autres
Possibilité de normes E.R.P.
Loi Carrez et affectation juridique en cours de détermination
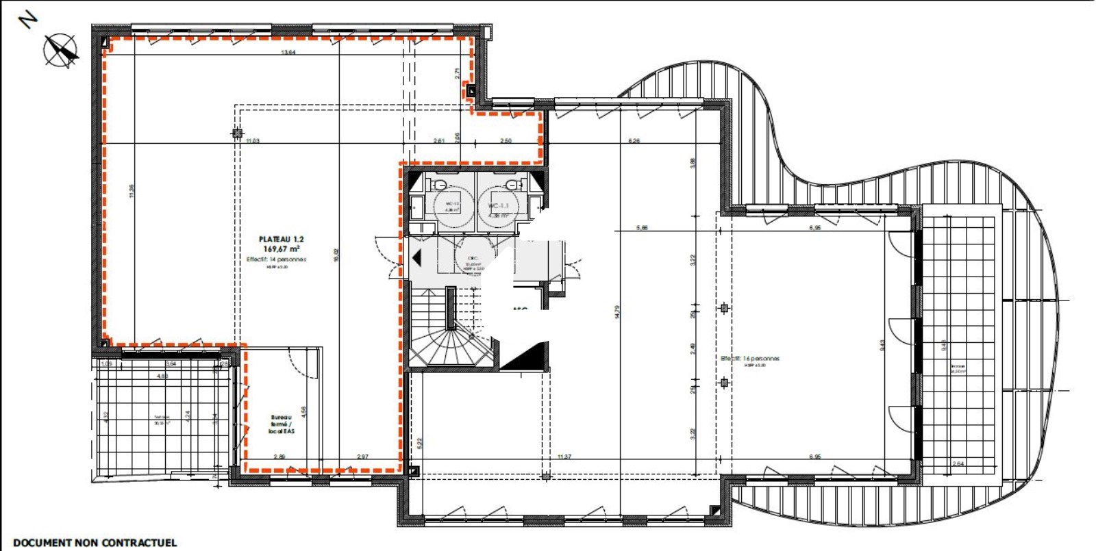
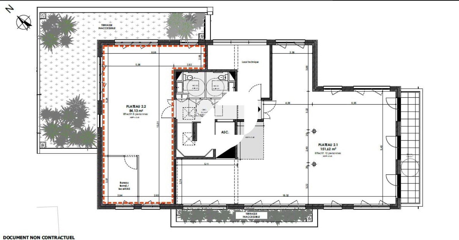
Répartition & surfaces des espaces
Tableau des divisibilités
| Type | Étage | Surface | Prix achat (€/m² HT HC) |
Charges (achat) (€/m² HT HC) |
|---|---|---|---|---|
| Parkings | Prix sur demande | Prix sur demande | ||
| Bureaux | Rez-de-Chaussée | 180 m² | 2 750.00 | Prix sur demande |
| Bureaux | 1er étage | 197 m² | 2 750.00 | Prix sur demande |
| Bureaux | 1er étage | 183 m² | 2 750.00 | Prix sur demande |
| Bureaux | 2ème étage | 170 m² | 2 750.00 | Prix sur demande |
| Bureaux | 2ème étage | 96 m² | 2 750.00 | Prix sur demande |
Performance énergétique du bien (DPE)


Informations non contractuelles
Localisation & accès
Transports en commun à proximité
36
Accès routier
Aéroport Nantes atlantique à 5 min
Périphérique : Porte 51/52
Neustrie (Ligne 3)
Adresses
approximatives
Adresses
précises
Nos nouveaux biens qui pourraient vous intéresser
Bureaux - 308m²
LEVALLOIS PERRET (92300)
LEVALLOIS PERRET (92300)
2 099 999.44€ HT HC
Disponibilité : Immédiate
Surface : 308 m²
Bureaux - 347.42m²
NEUILLY SUR SEINE (92200)
NEUILLY SUR SEINE (92200)
2 648 542.00€ HT HC
Disponibilité : Immédiate
Surface : 347.42 m²
Bureaux - 851m²
SAINT MAUR DES FOSSES (94100)
SAINT MAUR DES FOSSES (94100)
0.00€ HT HC
Disponibilité : Immédiate
Surface : 851 m²
Les entrepreneurs ayant consulté cette offre ont aussi consulté celles ci
Bureaux - 308m²
LEVALLOIS PERRET (92300)
LEVALLOIS PERRET (92300)
2 099 999.44€ HT HC
Disponibilité : Immédiate
Surface : 308 m²
Bureaux - 6 934m² Divisibles à partir de 173 m²
LYON (69009)
LYON (69009)
Prix sur demande
Disponibilité : Selon les lots – nous consulter
Surface : divisibles à partir de 173 m²
Bureaux - 347.42m²
NEUILLY SUR SEINE (92200)
NEUILLY SUR SEINE (92200)
2 648 542.00€ HT HC
Disponibilité : Immédiate
Surface : 347.42 m²