Retour
Disponibilité Immédiate
À Acheter Bureaux 230.88 m² 14 RUE ROUGEMONT PARIS (75009)
Ajouter au comparateur
Vous souhaitez faciliter votre recherche ?
Créez un compte
Présentation du bien
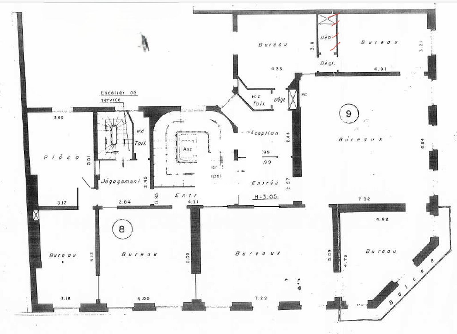
Immprove vous propose d'acquérir une surface de bureau d’environ 231 m² située dans le 9e arrondissement, à proximité des Grands Boulevards, au troisième étage d’un bel immeuble en pierre de taille. Cette surface d'angle, lumineuse, bénéficie d’une excellente exposition et convient à tous types d’activités. Les locaux disposent d’un espace d’accueil ainsi que d’un grand open-space. Ils comprennent également quatre bureaux cloisonnés, une salle de réunion, un espace détente, une cuisine et un local technique. La surface bénéficie de deux entrées indépendantes, offrant une grande flexibilité d’usage.
Surface totale
Nature
Divisibilité
Etat des locaux
230.88 m²
Bureaux
Non
Bon état
Prix & Conditions
Vente :
3 180 000.00 € (HD)
13 773.38 € /m² (HD)
Impôt foncier :
16.13
Taxe bureaux :
25.76
Conditions vente :
Loi Carrez et affectation juridique en cours de détermination
Prestations & équipements du bien
Le bâtiment
Immeuble ancien
Façade en pierres de taille
• Parties communes de bon standing
Les espaces de travail
Locaux rationnels et modulables aménagés en :
• Accueil
• 1 Espace ouvert
• 4 Bureaux cloisonnés
• 1 Salle de réunion
• 1 Espace détente
• Local technique
• Cuisine
• Sanitaires privatifs
• Plinthes périphériques
Le confort au quotidien
• Parquet et moulures
• Belle hauteur sous plafond
• Locaux traversants et lumineux
• Double exposition
• Balcon filant
Accessibilité
• Ascenseur
Autres
• 2 Entrées
Loi Carrez et affectation juridique en cours de détermination
Répartition & surfaces des espaces
Tableau des divisibilités
| Type | Étage | Surface | Prix achat (€/m² HT HC) |
Charges (achat) (€/m² HT HC) |
|---|---|---|---|---|
| Bureaux | 3ème étage | 231 m² | 13 773.38 | 34.89 |
Performance énergétique du bien (DPE)


Informations non contractuelles
Localisation & accès
Transports en commun à proximité
Paris Saint-Lazare (TER), Paris Gare du Nord (TER), Gare du Nord (TER), Gare de l'Est (TER)
20
39
21
66
68
26
43
45
46
56
91
52
29
40
Adresses
approximatives
Adresses
précises
Nos nouveaux biens qui pourraient vous intéresser
Bureaux - 718m² Divisibles à partir de 230 m²
PARIS (75003)
PARIS (75003)
0.00€ HT HC
Disponibilité : Immédiate
Surface : divisibles à partir de 230 m²
Les entrepreneurs ayant consulté cette offre ont aussi consulté celles ci
Bureaux - 3 639m² Divisibles à partir de 578 m²
NOISY LE GRAND (93160)
NOISY LE GRAND (93160)
6 732 150.00€ HT HC
Disponibilité : Immédiate
Surface : divisibles à partir de 578 m²
Bureaux et Activités - 435m²
VILLIERS SUR MARNE (94350)
VILLIERS SUR MARNE (94350)
639 998.10€ HT HC
Disponibilité : Immédiate
Surface : 435 m²