Retour
Gambetta
Disponibilité Immédiate
À Acheter Bureaux 616 m² PARIS (75020)
Ajouter au comparateur
Vous souhaitez faciliter votre recherche ?
Créez un compte
Présentation du bien
A la limite du 11ème arrondissement de Paris, au pied du métro Philippe Auguste, Immprove vous proposer à le vente un immeuble sur cour de 616m². L’immeuble est vendu brut de béton, il est réparti en 2 niveaux de 273m² et 297m² reliés par un escalier intérieur. Belle hauteur sous plafond, beaucoup de potentiel, travaux à prévoir.
Surface totale
Nature
Divisibilité
Etat des locaux
616 m²
Bureaux
Non
Brut de béton
Prix & Conditions
Vente :
3 800 000.00 € (HD)
6 168.83 € /m² (HD)
Conditions vente :
Loi Carrez et affectation juridique en cours de détermination
Prestations & équipements du bien
Le bâtiment
Immeuble ancien . Brut de béton
Les espaces de travail
Espace ouvert
Le confort au quotidien
Belle hauteur sous plafond
Cour privative
Prestations spécifiques
Chauffage individuel
Loi Carrez et affectation juridique en cours de détermination
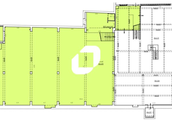
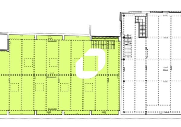
Répartition & surfaces des espaces
Tableau des divisibilités
| Type | Étage | Surface | Prix achat (€/m² HT HC) |
Charges (achat) (€/m² HT HC) |
|---|---|---|---|---|
| Bureaux | Sous-Sol | 46 m² | 6 168.83 | Prix sur demande |
| Bureaux | Rez-de-Chaussée | 297 m² | 6 168.83 | Prix sur demande |
| Bureaux | 1er étage | 273 m² | 6 168.83 | Prix sur demande |
Performance énergétique du bien (DPE)


Informations non contractuelles
Localisation & accès
Transports en commun à proximité
71
61
69
76
Accès routier
Roquette - Père Lachaise (N16,N34)
Adresses
approximatives
Adresses
précises
Nos nouveaux biens qui pourraient vous intéresser
Bureaux - 1 397m² Divisibles à partir de 494 m²
PARIS (75009)
PARIS (75009)
0.00€ HT HC
Disponibilité : Nous consulter
Surface : divisibles à partir de 494 m²
Les entrepreneurs ayant consulté cette offre ont aussi consulté celles ci
Bureaux - 3 639m² Divisibles à partir de 578 m²
NOISY LE GRAND (93160)
NOISY LE GRAND (93160)
6 732 150.00€ HT HC
Disponibilité : Immédiate
Surface : divisibles à partir de 578 m²
Bureaux et Activités - 435m²
VILLIERS SUR MARNE (94350)
VILLIERS SUR MARNE (94350)
639 998.10€ HT HC
Disponibilité : Immédiate
Surface : 435 m²