Retour
Disponibilité Immédiate
À Acheter Bureaux 394 m² NEUILLY SUR SEINE (92200)
Ajouter au comparateur
Vous souhaitez faciliter votre recherche ?
Créez un compte
Présentation du bien
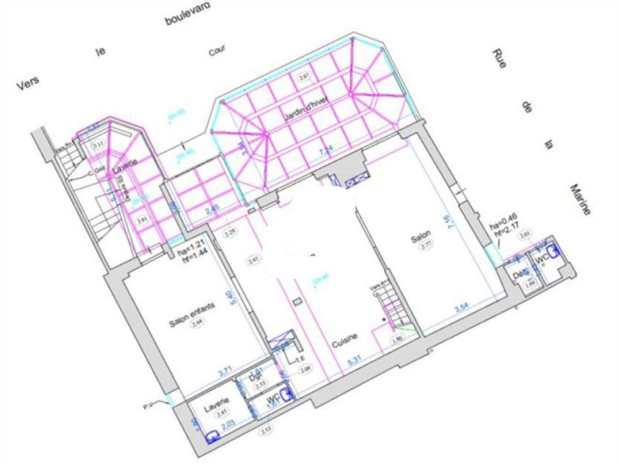
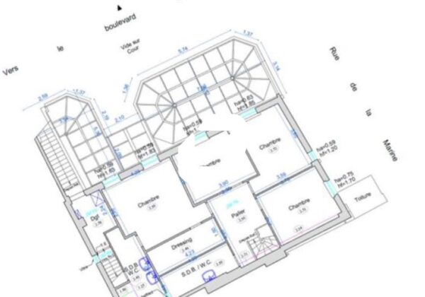
En plein cœur de l'île de la jatte à Neuilly-sur-Seine, Immprove vous propose à la vente un bel hôtel particulier en R+2 d'environ 394 m², comprenant un grand jardin d'hiver et une terrasse de 80 m².
Actif indépendant, 100 % commercial et rare sur le secteur.
Surface totale
Nature
Divisibilité
Etat des locaux
394 m²
Bureaux
Non
Bon état
Prix & Conditions
Vente :
5 238 000.00 € (HD)
13 294.41 € /m² (HD)
Conditions vente :
. Loi Carrez et affectation juridique en cours de détermination
. Surface Carrez de 303,67 m²
. Surfaces annexes 90,76 m²
. Surface totale 394,43 m²
. Surface Carrez de 303,67 m²
. Surfaces annexes 90,76 m²
. Surface totale 394,43 m²
Prestations & équipements du bien
Le bâtiment
Bâtiment indépendant Locaux lumineux aménagés en:
Les espaces de travail
Un séjour avec cuisine ouverte
Le confort au quotidien
Moulures
Parkings dans la cour / terrasse (2 places)
Sécurité du site
Accès sécurisé
Extérieur
Un jardin d’hiver sous verrière
Autres
Une entrée
Espaces ouverts
Chaudière électrique refaite récemment
Sanitaires
Restauration autorisée
. Loi Carrez et affectation juridique en cours de détermination
. Surface Carrez de 303,67 m²
. Surfaces annexes 90,76 m²
. Surface totale 394,43 m²
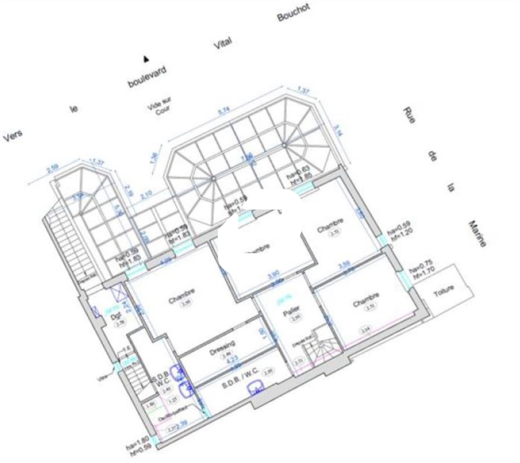
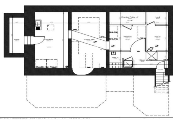
Répartition & surfaces des espaces
Tableau des divisibilités
| Type | Étage | Surface | Prix achat (€/m² HT HC) |
Charges (achat) (€/m² HT HC) |
|---|---|---|---|---|
| Bureaux | 1er Sous-Sol | 73 m² | Prix sur demande | Prix sur demande |
| Bureaux | Rez-de-Chaussée | 125 m² | Prix sur demande | Prix sur demande |
| Bureaux | 1er étage | 98 m² | Prix sur demande | Prix sur demande |
| Bureaux | 2ème étage | 98 m² | Prix sur demande | Prix sur demande |
Performance énergétique du bien (DPE)


Informations non contractuelles
Localisation & accès
Transports en commun à proximité
163
164
93
ORLYBUS
Adresses
approximatives
Adresses
précises
Nos nouveaux biens qui pourraient vous intéresser
Bureaux - 416m²
NEUILLY SUR SEINE (92200)
NEUILLY SUR SEINE (92200)
3 499 808.00€ HT HC
Disponibilité : Immédiate
Surface : 416 m²
Bureaux - 791m² Divisibles à partir de 352 m²
NEUILLY SUR SEINE (92200)
NEUILLY SUR SEINE (92200)
454 567.00€ HT HC
Disponibilité : Immédiate
Surface : divisibles à partir de 352 m²
Les entrepreneurs ayant consulté cette offre ont aussi consulté celles ci
Bureaux - 3 639m² Divisibles à partir de 578 m²
NOISY LE GRAND (93160)
NOISY LE GRAND (93160)
6 732 150.00€ HT HC
Disponibilité : Immédiate
Surface : divisibles à partir de 578 m²
Bureaux et Activités - 435m²
VILLIERS SUR MARNE (94350)
VILLIERS SUR MARNE (94350)
639 998.10€ HT HC
Disponibilité : Immédiate
Surface : 435 m²