Retour
Disponibilité Immédiate
À Acheter Bureaux 265.50 m² ASNIERES SUR SEINE (92600)
Ajouter au comparateur
Vous souhaitez faciliter votre recherche ?
Créez un compte
Présentation du bien
Découvrez votre nouveau bureau flottant ! Charmante péniche très bien entretenue composée de 265,5m² sur deux niveaux ainsi qu’une double terrasse de 100m². Située sur les bords de Seine, vous apprécierez le cadre et le calme tout en étant situé à proximité du métro, des axes routiers et des commodités. A destination exlusivement de bureaux, la péniche se décompose en open space, bureaux cloisonnés, salle de réunion, cuisine équipée et espace détente.
Surface totale
Nature
Divisibilité
Etat des locaux
265.50 m²
Bureaux
Non
Bon état
Prix & Conditions
Vente :
885 000.00 € (HD)
3 325.00 € /m² (HD)
Impôt foncier :
17.29
Taxe bureaux :
21.21
Conditions vente :
. Régime fiscal : pas de frais de notaires / cession chez un avocat
. Achat impossible en SCI car cession de mobilier et non immobilier
. Convention d’occupation temporaire jusqu’en 2036 (renouvelable tous les 20ans)
. Le carénage de la péniche sera fait avant la vente (tous les 10 ans)
. Pas de tout à l’égout
. Arrivée d’eau + ballon d’eau chaude
. Loi Carrez et affectation juridique en cours de détermination
. Achat impossible en SCI car cession de mobilier et non immobilier
. Convention d’occupation temporaire jusqu’en 2036 (renouvelable tous les 20ans)
. Le carénage de la péniche sera fait avant la vente (tous les 10 ans)
. Pas de tout à l’égout
. Arrivée d’eau + ballon d’eau chaude
. Loi Carrez et affectation juridique en cours de détermination
Prestations & équipements du bien
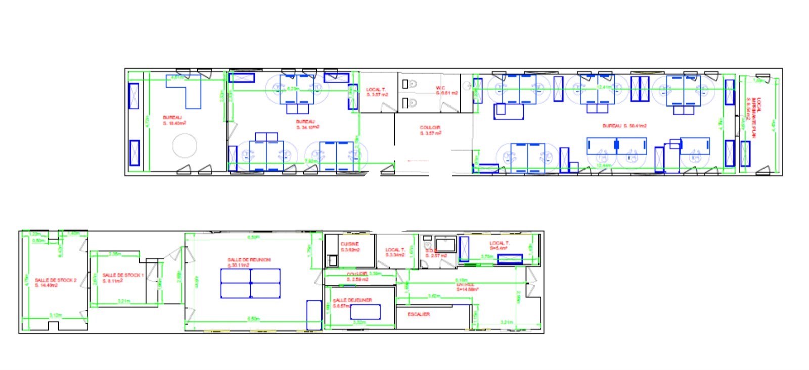
Les espaces de travail
Fibre optique + câblage
Bon état
Accueil
Espace ouvert
Bureaux cloisonnés
Salle de réunion
Espace détente
Local technique
Plinthes périphériques
Câblage informatique et téléphonique
Prises RJ45
Cuisine
Sanitaires privatifs
Le confort au quotidien
Double terrasse privative
Locaux traversants
Locaux lumineux
Terrasse privative
Sol PVC imitation parquet
Les accès
Accès privatif sur rue
Sécurité du site
Télésurveillance
Site clos
Prestations spécifiques
Chauffage électrique
Autres
Péniche indépendante
Alarme
Douche
. Régime fiscal : pas de frais de notaires / cession chez un avocat
. Achat impossible en SCI car cession de mobilier et non immobilier
. Convention d’occupation temporaire jusqu’en 2036 (renouvelable tous les 20ans)
. Le carénage de la péniche sera fait avant la vente (tous les 10 ans)
. Pas de tout à l’égout
. Arrivée d’eau + ballon d’eau chaude
. Loi Carrez et affectation juridique en cours de détermination
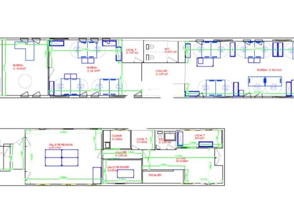
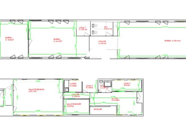
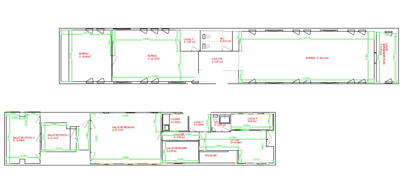
Répartition & surfaces des espaces
Tableau des divisibilités
| Type | Étage | Surface | Prix achat (€/m² HT HC) |
Charges (achat) (€/m² HT HC) |
|---|---|---|---|---|
| Parkings | Prix sur demande | Prix sur demande | ||
| Terrasse | 100 m² | Prix sur demande | Prix sur demande | |
| Bureaux | Rez-de-Chaussée | 149 m² | 3 325.00 | 26.00 |
| Bureaux | 1er étage | 117 m² | 3 325.00 | 26.00 |
Performance énergétique du bien (DPE)


Informations non contractuelles
Localisation & accès
Transports en commun à proximité
SNCF Asnières sur Seine
Accès routier
A86 / D7
Adresses
approximatives
Adresses
précises
Nos nouveaux biens qui pourraient vous intéresser
Bureaux - 299m²
ASNIERES SUR SEINE (92600)
ASNIERES SUR SEINE (92600)
582 990.20€ HT HC
Disponibilité : Selon les lots
Surface : 299 m²
Bureaux - 482.48m² Divisibles à partir de 241 m²
ASNIERES SUR SEINE (92600)
ASNIERES SUR SEINE (92600)
878 249.79€ HT HC
Disponibilité : Immédiate
Surface : divisibles à partir de 241 m²
Les entrepreneurs ayant consulté cette offre ont aussi consulté celles ci
Bureaux - 3 639m² Divisibles à partir de 578 m²
NOISY LE GRAND (93160)
NOISY LE GRAND (93160)
6 732 150.00€ HT HC
Disponibilité : Immédiate
Surface : divisibles à partir de 578 m²
Bureaux et Activités - 435m²
VILLIERS SUR MARNE (94350)
VILLIERS SUR MARNE (94350)
639 998.10€ HT HC
Disponibilité : Immédiate
Surface : 435 m²