Retour
Disponibilité Immédiate
À Acheter Bureaux 482.48 m² divisibles à partir de 241 m² ASNIERES SUR SEINE (92600)
Ajouter au comparateur
Vous souhaitez faciliter votre recherche ?
Créez un compte
Présentation du bien
242m2 de bureaux à 2min du métro Gabriel Péri ! Surface en bon état, traversante, actuellement cloisonnée mais facilement adaptable à tous styles d’aménagement, climatisation réversible, accès sécurisé, baie de brassage. Situation appréciable entre la proximité du métro, les grands axes routiers et les commerces Asnièrois.
Surface totale
Nature
Divisibilité
Etat des locaux
482.48 m²
Bureaux
Oui à partir de 241 m²
Etat d’usage
Prix & Conditions
Vente :
3 644.19 € (HD)
3 644.19 € /m² (HD)
Divisibles à partir de 241 m²
Impôt foncier :
31.41
Conditions vente :
Loi Carrez et affectation juridique en cours de détermination
Prestations & équipements du bien
Le bâtiment
Immeuble moderne
Les espaces de travail
Fibre optique
Espace cuisine au 3ème étage
Le confort au quotidien
Climatisation réversible et unité froide (salle serveur à chaque étage)
Les accès
Accès véhicules légers
Accès privatif ascenseur
Sécurité du site
Télésurveillance
Accès sécurisé par badge
Sas d'entrée
Accessibilité
Ascenseur desservant directement les locaux
Extérieur
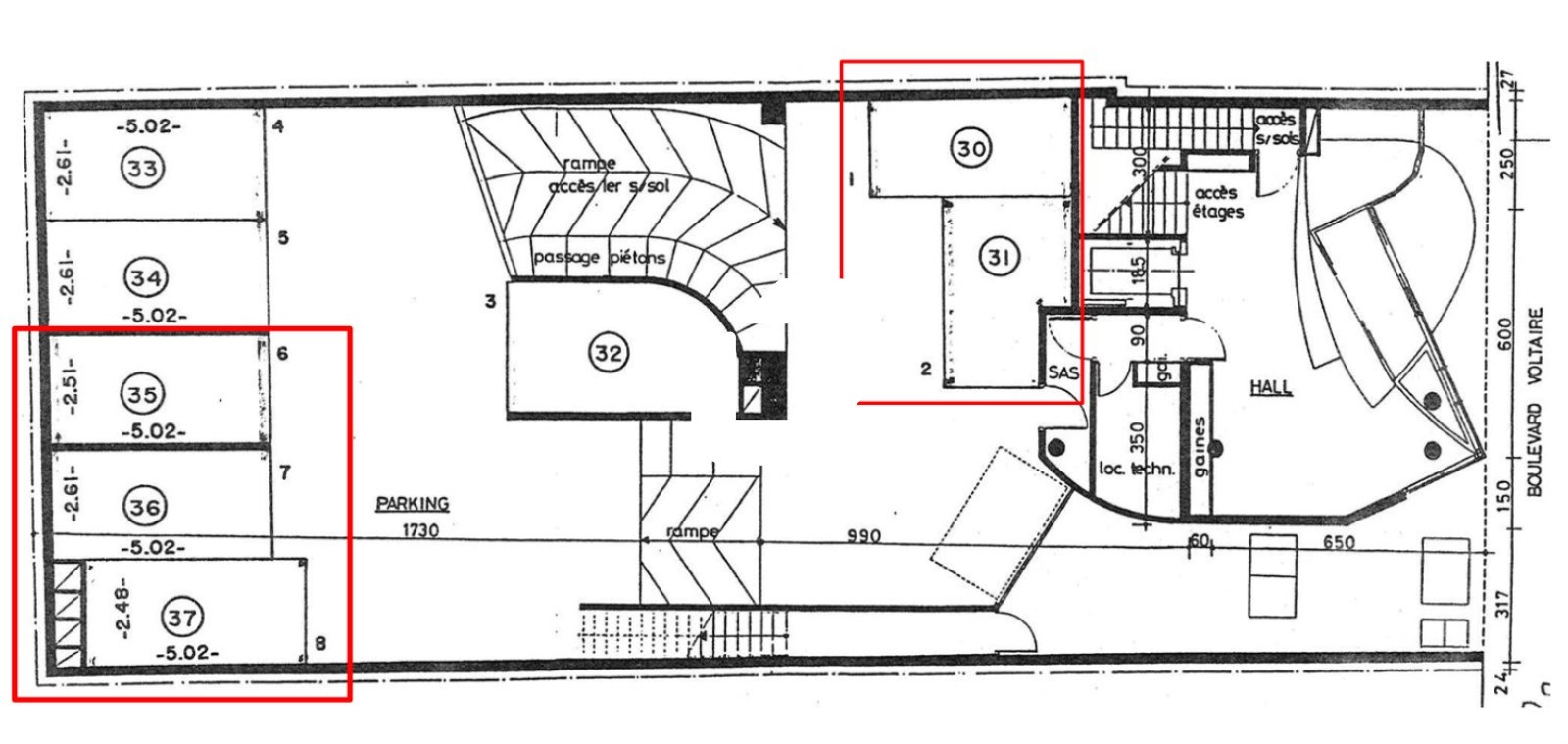
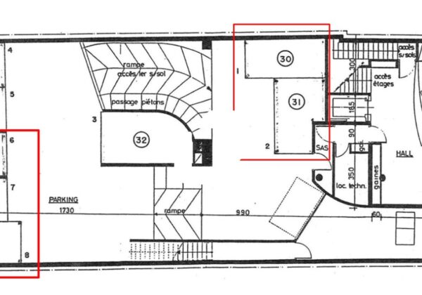
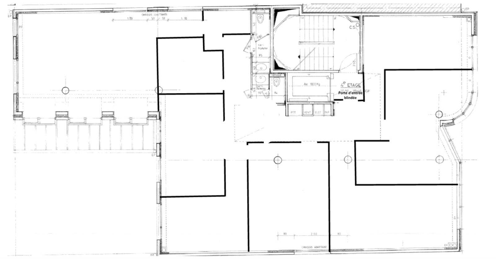
3ème étage : 242m² / 3 parkings
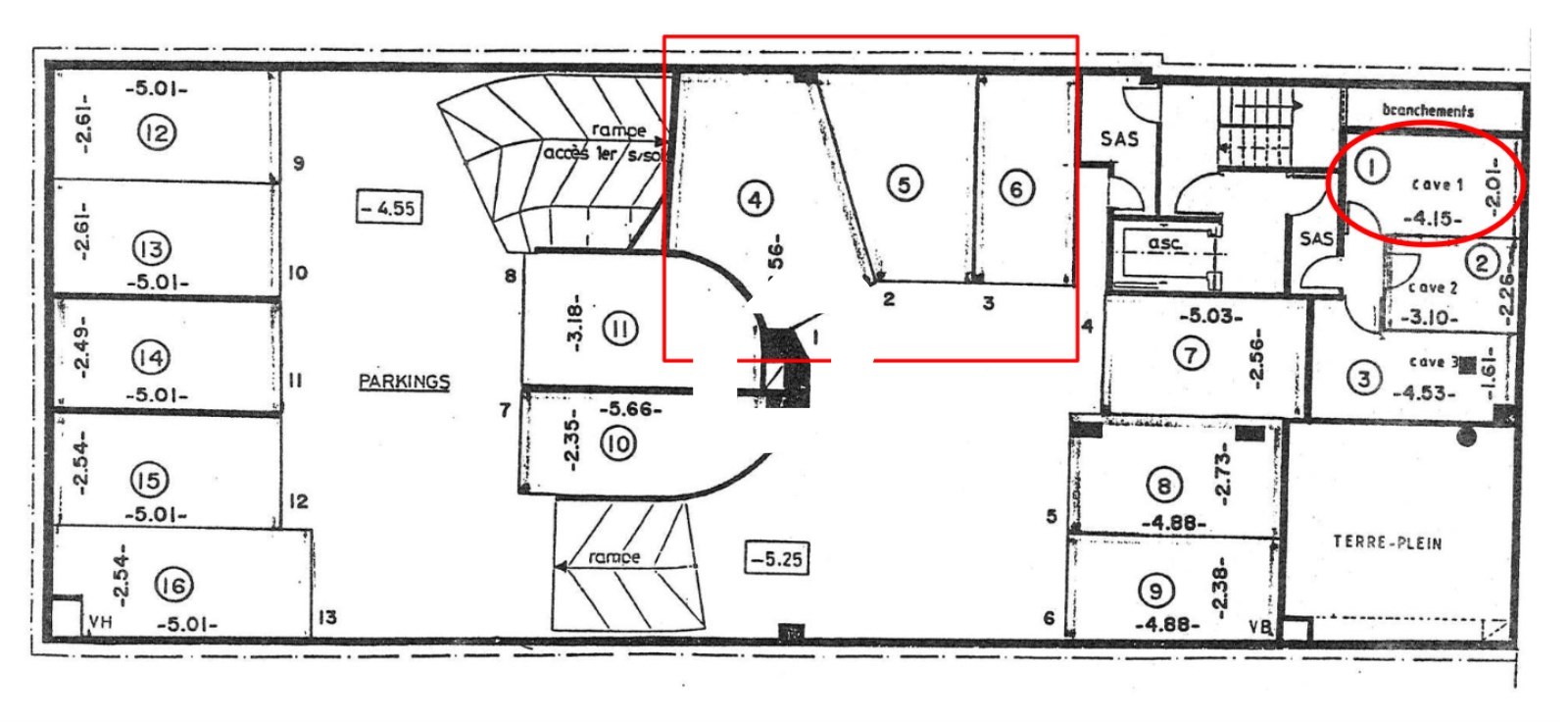
4ème étage : 241 m² / 1 cave / 3 parkings
Autres
Plateaux lumineux et fonctionnels
2 plateaux de bureaux
Bureaux actuellement cloisonnés
Sanitaires H/F à chaque étage
Charges annuel : 7 072€
Taxe foncière annuel : 7 602 €
Taxe bureaux annuel : 5 413 €
Charges annuel : 6 592 €
Taxe foncière annuel : 7 182 €
Taxe bureaux annuel : 4 347 €
Loi Carrez et affectation juridique en cours de détermination
Répartition & surfaces des espaces
Tableau des divisibilités
| Type | Étage | Surface | Prix achat (€/m² HT HC) |
Charges (achat) (€/m² HT HC) |
|---|---|---|---|---|
| Parkings | 10 500.00 | 29.00 | ||
| Bureaux | 3ème étage | 241 m² | 3 644.19 | 29.00 |
| Bureaux | 4ème étage | 241 m² | 3 750.00 | 29.00 |
Performance énergétique du bien (DPE)


Informations non contractuelles
Localisation & accès
Transports en commun à proximité
140
175
177
54
A86 A15
Adresses
approximatives
Adresses
précises
Nos nouveaux biens qui pourraient vous intéresser
Bureaux - 299m²
ASNIERES SUR SEINE (92600)
ASNIERES SUR SEINE (92600)
582 990.20€ HT HC
Disponibilité : Selon les lots
Surface : 299 m²
Bureaux - 265.50m²
ASNIERES SUR SEINE (92600)
ASNIERES SUR SEINE (92600)
884 450.00€ HT HC
Disponibilité : Immédiate
Surface : 265.50 m²
Les entrepreneurs ayant consulté cette offre ont aussi consulté celles ci
Bureaux - 3 639m² Divisibles à partir de 578 m²
NOISY LE GRAND (93160)
NOISY LE GRAND (93160)
6 732 150.00€ HT HC
Disponibilité : Immédiate
Surface : divisibles à partir de 578 m²
Bureaux et Activités - 435m²
VILLIERS SUR MARNE (94350)
VILLIERS SUR MARNE (94350)
639 998.10€ HT HC
Disponibilité : Immédiate
Surface : 435 m²