Retour
Disponibilité Immédiate
À Acheter Bureaux 1 236 m² divisibles à partir de 545 m² ASNIERES SUR SEINE (92600)
Ajouter au comparateur
Vous souhaitez faciliter votre recherche ?
Créez un compte
Présentation du bien
IMMPROVE vous propose des surfaces de bureaux entièrement rénovées, situées dans un immeuble équipé d'un restaurant inter-entreprises. Ces bureaux modernes offrent un cadre professionnel de qualité, avec l'avantage supplémentaire de services de restauration sur place pour plus de commodité.
Surface totale
Nature
Divisibilité
Etat des locaux
1 236 m²
Bureaux
Oui à partir de 545 m²
Bon état
Prix & Conditions
Vente :
2 500.00 € (HD)
2 500.00 € /m² (HD)
Divisibles à partir de 545 m²
Impôt foncier :
27.00
Taxe bureaux :
17.56
Prestations & équipements du bien
Le bâtiment
Immeuble récent
Les espaces de travail
Fibre optique
Fibre optique . Locaux en bon état
Open space
Faux plafonds
Prises RJ45
Le confort au quotidien
Climatisation partielle
Locaux lumineux
Moquette
Les accès
Accès PMR
Sécurité du site
Interphone
Contrôle d'accès
Télésurveillance
Accès sécurisé par badge
Accessibilité
Ascenseur PMR
Prestations spécifiques
Chauffage immeuble gaz
Autres
Air rafraichi
Fibre
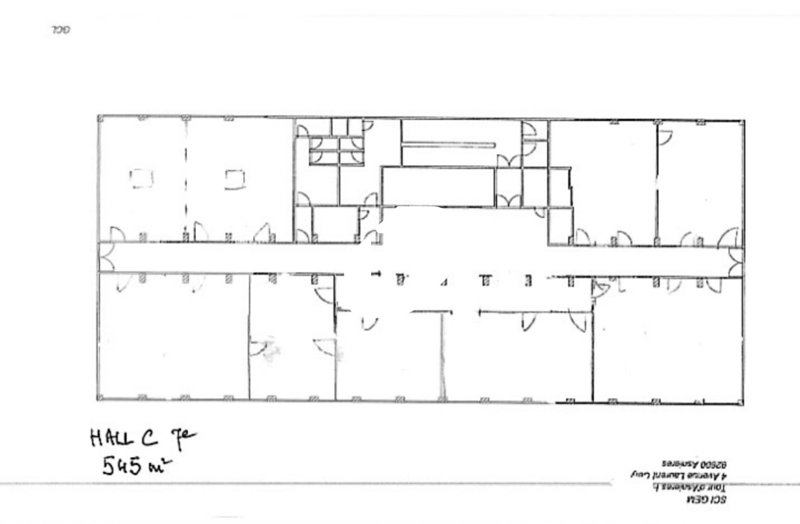
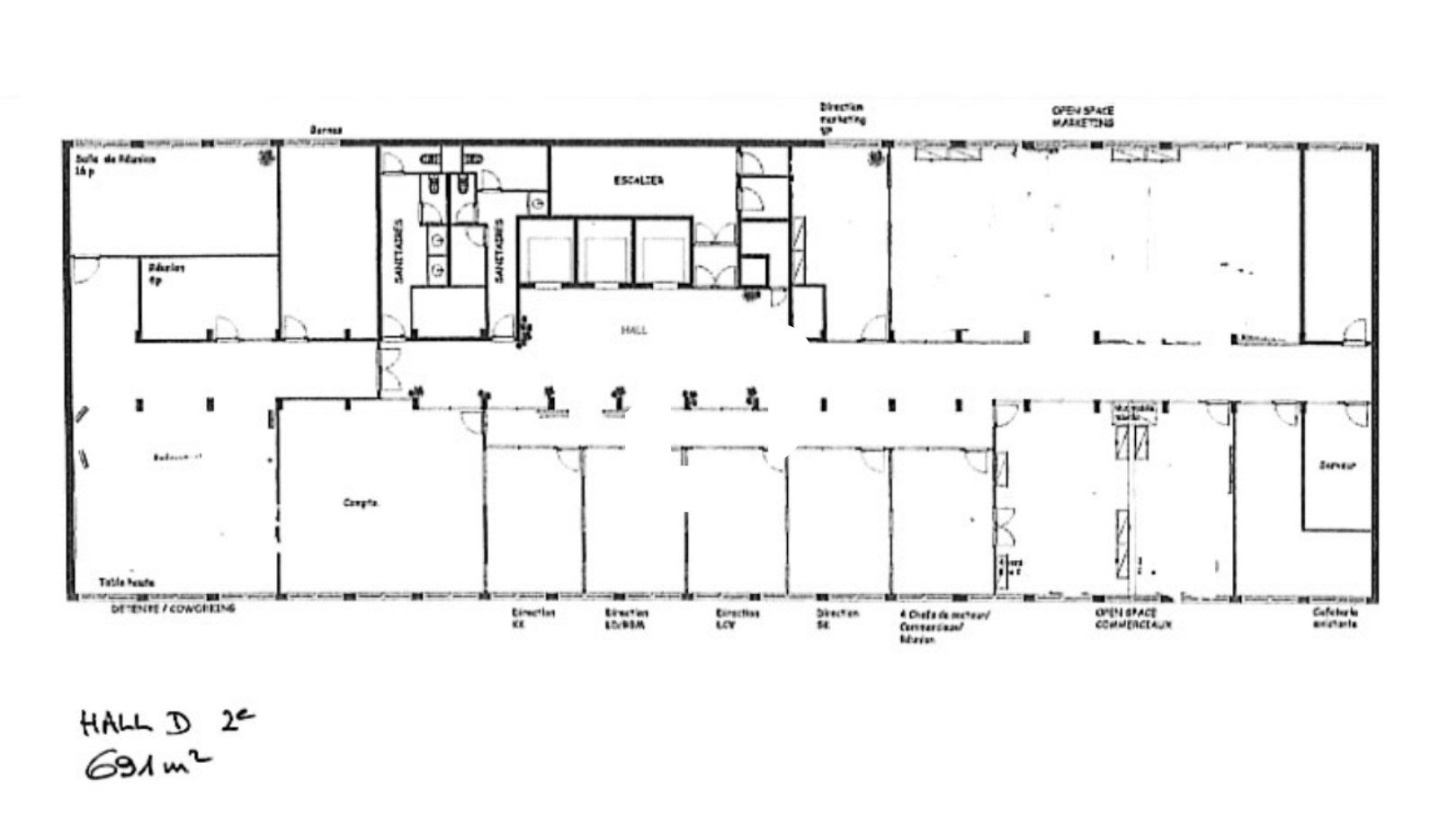
Répartition & surfaces des espaces
Tableau des divisibilités
| Type | Étage | Surface | Prix achat (€/m² HT HC) |
Charges (achat) (€/m² HT HC) |
|---|---|---|---|---|
| Bureaux | 7ème étage | 545 m² | 2 600.00 | Prix sur demande |
| Bureaux | 2ème étage | 691 m² | 2 500.00 | Prix sur demande |
Performance énergétique du bien (DPE)


Informations non contractuelles
Localisation & accès
Transports en commun à proximité
175
177
577
138
366
Accès routier
A86, A15, Périphérique
Adresses
approximatives
Adresses
précises
Nos nouveaux biens qui pourraient vous intéresser
Bureaux - 370m²
ASNIERES SUR SEINE (92600)
ASNIERES SUR SEINE (92600)
1 449 993.00€ HT HC
Disponibilité : Immédiate
Surface : 370 m²
Bureaux - 125m²
ASNIERES SUR SEINE (92600)
ASNIERES SUR SEINE (92600)
600 000.00€ HT HC
Disponibilité : Immédiate
Surface : 125 m²
Bureaux - 299m²
ASNIERES SUR SEINE (92600)
ASNIERES SUR SEINE (92600)
582 990.20€ HT HC
Disponibilité : Selon les lots
Surface : 299 m²
Les entrepreneurs ayant consulté cette offre ont aussi consulté celles ci
Bureaux - 3 639m² Divisibles à partir de 578 m²
NOISY LE GRAND (93160)
NOISY LE GRAND (93160)
6 732 150.00€ HT HC
Disponibilité : Immédiate
Surface : divisibles à partir de 578 m²
Bureaux et Activités - 435m²
VILLIERS SUR MARNE (94350)
VILLIERS SUR MARNE (94350)
639 998.10€ HT HC
Disponibilité : Immédiate
Surface : 435 m²