Retour
Disponibilité Immédiate
À Acheter Bureaux et Locaux Commerciaux 1 690 m² PARIS (75009)
Ajouter au comparateur
Vous souhaitez faciliter votre recherche ?
Créez un compte
Présentation du bien
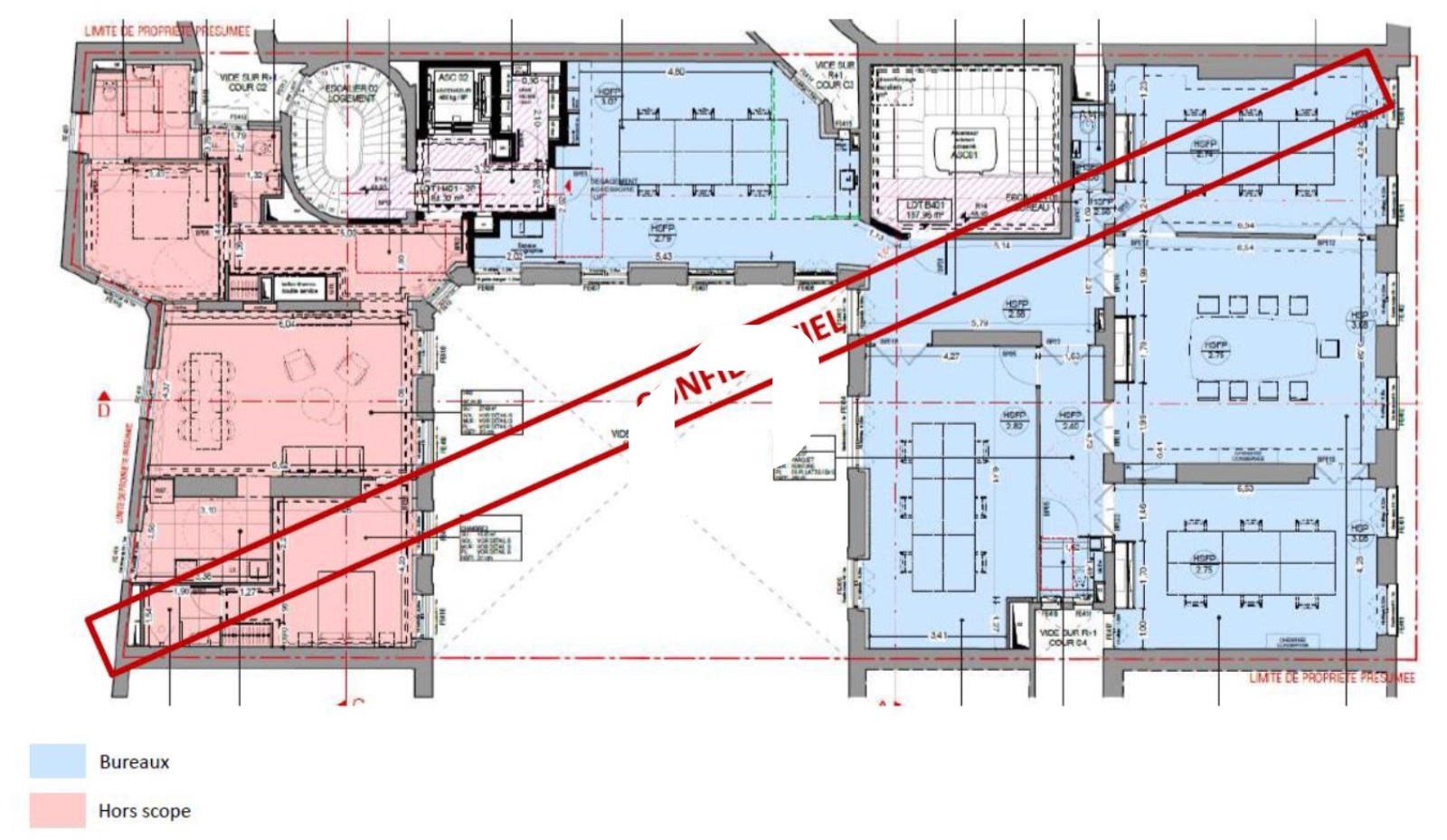
Dans la rue du Faubourg Poissonnière entre le métro Cadet / Bonne nouvelle et Grand Boulevard Immprove vous propose à la vente un immeuble Haussmannien du 19ème siècle, entièrement restructuré, qui s’élève en R+4. L’immeuble dispose de salles patrimoniales sur les étages nobles et d’une hauteur sous plafond importante.
Surface totale
Nature
Divisibilité
Etat des locaux
1 690 m²
Bureaux et Locaux Commerciaux
Non
Restructuré
Prix & Conditions
Vente :
32 000 000.00 € (HD)
18 934.91 € /m² (HD)
Impôt foncier :
15.00
Taxe bureaux :
23.67
Prestations & équipements du bien
Les espaces de travail
Eclairage LED
Le confort au quotidien
Balcon
Sécurité du site
Contrôle d'accès
Contrôle d'accès
Accessibilité
Ascenseurs
Services & espaces partagés
Cafétéria
Autres
Accès Personnes Mobilités Réduites
Local vélo
Hauteur sous plafond 2.44m à 3.76m
Ensemble thermodynamique à condensation par air de type pompe à chaleur ( VRV ).
Certification visée BREEAM Very Good décret tertiaire
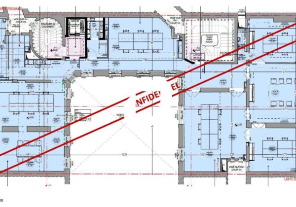
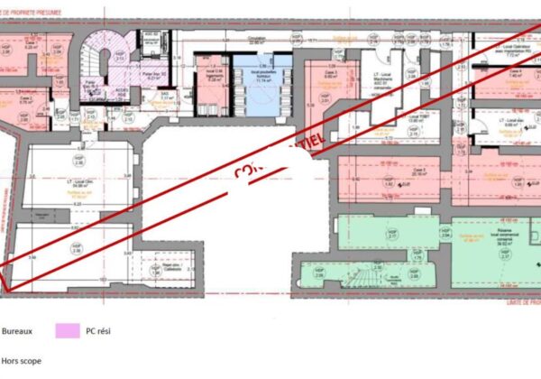
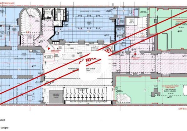
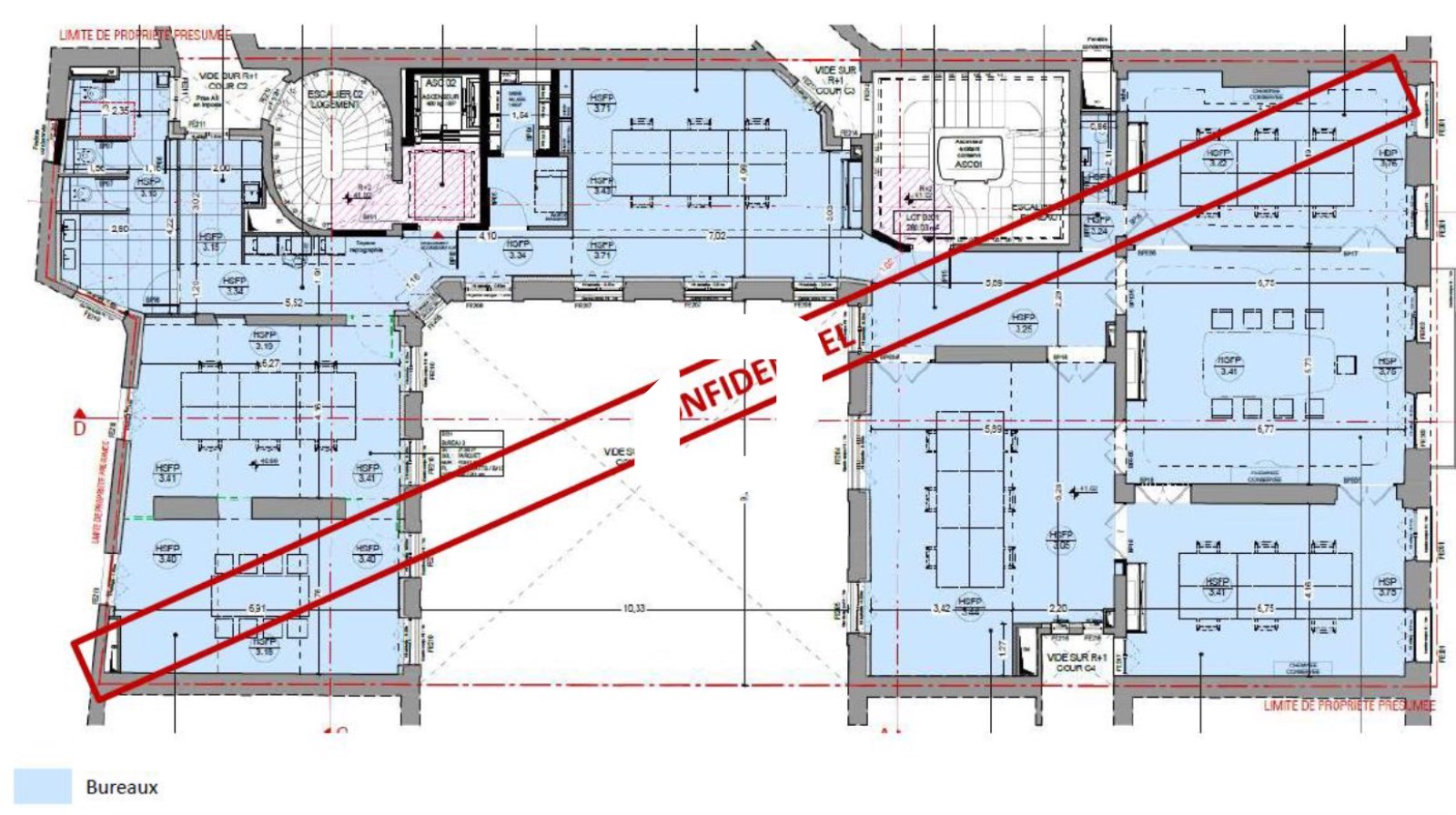
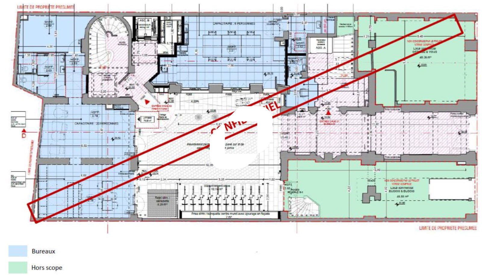
Répartition & surfaces des espaces
Tableau des divisibilités
| Type | Étage | Surface | Prix achat (€/m² HT HC) |
Charges (achat) (€/m² HT HC) |
|---|---|---|---|---|
| Habitation | 390 m² | Prix sur demande | Prix sur demande | |
| Bureaux | Sous-Sol | 29 m² | Prix sur demande | Prix sur demande |
| Locaux Commerciaux | Sous-Sol | 40 m² | Prix sur demande | Prix sur demande |
| Bureaux | Rez-de-Chaussée | 156 m² | Prix sur demande | Prix sur demande |
| Locaux Commerciaux | Rez-de-Chaussée | 48 m² | Prix sur demande | Prix sur demande |
| Locaux Commerciaux | Rez-de-Chaussée | 47 m² | Prix sur demande | Prix sur demande |
| Bureaux | 1er étage | 288 m² | Prix sur demande | Prix sur demande |
| Bureaux | 2ème étage | 290 m² | Prix sur demande | Prix sur demande |
| Bureaux | 3ème étage | 201 m² | Prix sur demande | Prix sur demande |
| Bureaux | 4ème étage | 201 m² | Prix sur demande | Prix sur demande |
Performance énergétique du bien (DPE)


Informations non contractuelles
Localisation & accès
Transports en commun à proximité
SNCF gare de Paris-Est
20
39
32
Adresses
approximatives
Adresses
précises
Nos nouveaux biens qui pourraient vous intéresser
Bureaux et Locaux Commerciaux - 1 562.48m²
PARIS (75016)
PARIS (75016)
0.00€ HT HC
Disponibilité : Après accord
Surface : 1 562.48 m²
Bureaux et Locaux Commerciaux - 1 801m²
PARIS (75009)
PARIS (75009)
0.00€ HT HC
Disponibilité : Immédiate
Surface : 1 801 m²
Les entrepreneurs ayant consulté cette offre ont aussi consulté celles ci
Bureaux et Locaux Commerciaux - 328m²
LEVALLOIS PERRET (92300)
LEVALLOIS PERRET (92300)
2 144 998.64€ HT HC
Disponibilité : 1er juillet 2026
Surface : 328 m²
Bureaux et Locaux Commerciaux - 2 377.32m² Divisibles à partir de 150 m²
SAINTE LUCE SUR LOIRE (44980)
SAINTE LUCE SUR LOIRE (44980)
0.00€ HT HC
Disponibilité : Deuxième semestre 2026
Surface : divisibles à partir de 150 m²
Bureaux et Locaux Commerciaux - 107.35m²
COIGNIERES (78310)
COIGNIERES (78310)
Prix sur demande
Disponibilité : Immédiate
Surface : 107.35 m²
Bureaux et Locaux Commerciaux - 153m²
PARIS (75006)
PARIS (75006)
0.00€ HT HC
Disponibilité : Immédiate
Surface : 153 m²