Retour
Disponibilité 4ème trimestre 2026
À Acheter Locaux Commerciaux 464.10 m² divisibles à partir de 69.30 m² ARTIGUES PRES BORDEAUX (33370)
Ajouter au comparateur
Vous souhaitez faciliter votre recherche ?
Créez un compte
Présentation du bien
A proximité de la sortie de rocade, des différents axes routiers et des transports en communs, IMMPROVE vous propose à l’achat des locaux commerciaux neufs d’une superficie comprise entre 70m² et 177m² dans un emplacement central et dynamique, idéal pour développer votre visibilité et votre clientèle.
Surface totale
Nature
Divisibilité
Etat des locaux
464.10 m²
Locaux Commerciaux
Oui à partir de 69.30 m²
Brut de béton/ en attente de fluides
Prix & Conditions
Vente :
2 269.90 € (HD)
2 269.90 € /m² (HD)
Divisibles à partir de 69.30 m²
Conditions vente :
Loi Carrez et affectation juridique en cours de détermination
Prestations & équipements du bien
Les espaces de travail
Accès PMR . Neuf
Les accès
Accès véhicules légers
Extérieur
1 place de parking en sous-sol par lot compris dans le prix de vente
Autres
Locaux bruts de bétons fluides en attente
Linéaire de vitrine
Extraction
Loi Carrez et affectation juridique en cours de détermination
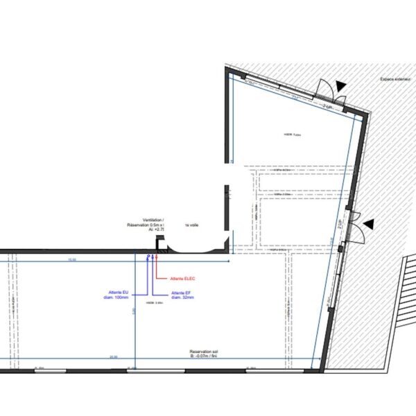
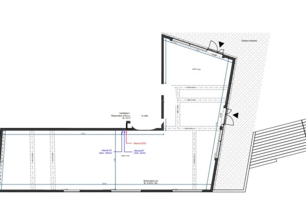
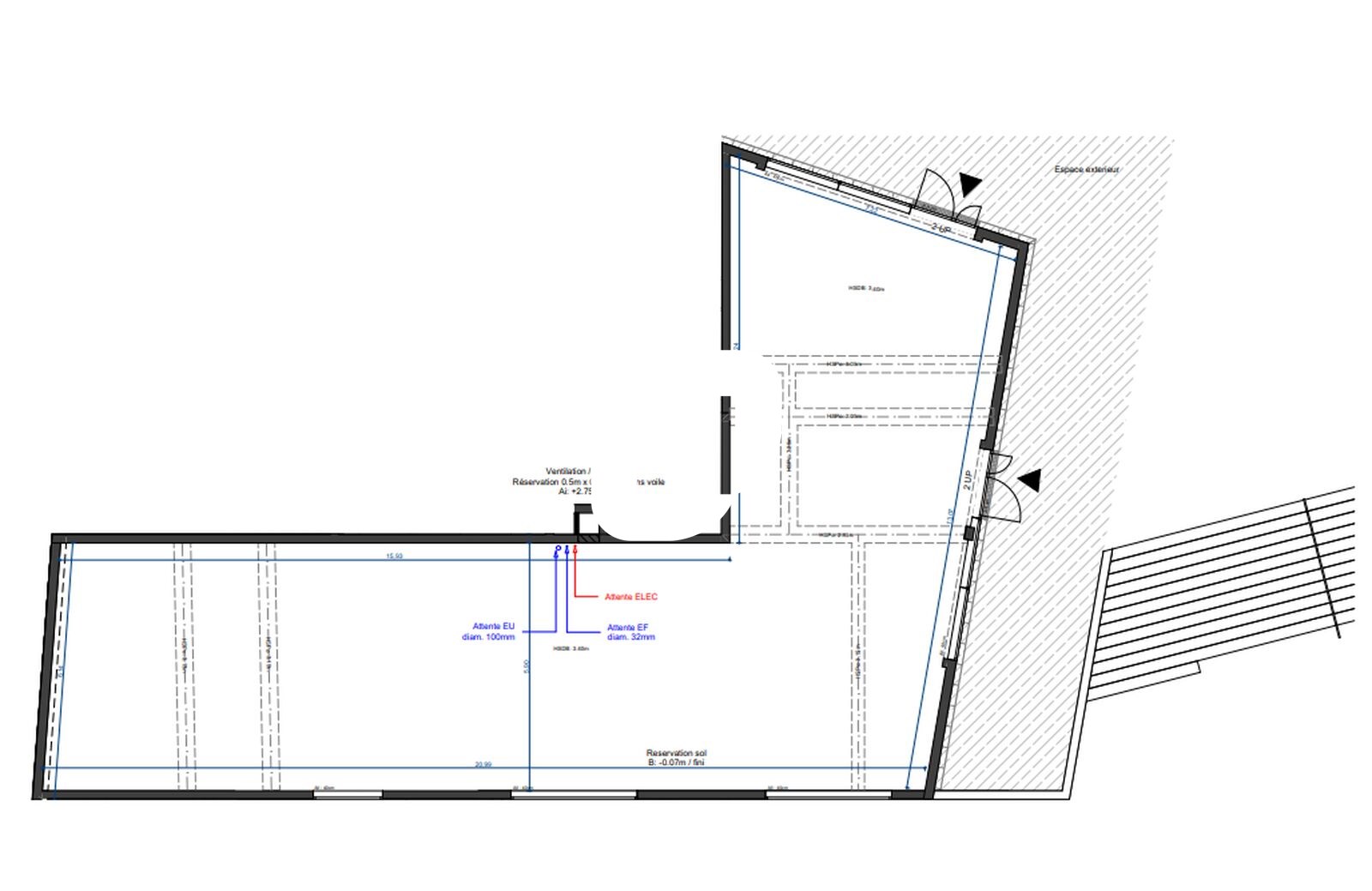
Répartition & surfaces des espaces
Tableau des divisibilités
| Type | Étage | Surface | Prix achat (€/m² HT HC) |
Charges (achat) (€/m² HT HC) |
|---|---|---|---|---|
| Locaux Commerciaux | Rez-de-Chaussée | 87 m² | 2 292.60 | Prix sur demande |
| Locaux Commerciaux | Rez-de-Chaussée | 177 m² | 2 269.90 | Prix sur demande |
| Locaux Commerciaux | Rez-de-Chaussée | 131 m² | 2 326.40 | Prix sur demande |
| Locaux Commerciaux | Rez-de-Chaussée | 69 m² | 2 597.40 | Prix sur demande |
Performance énergétique du bien (DPE)


Informations non contractuelles
Localisation & accès
Transports en commun à proximité
27
Accès routier
A630 sortie 1
Adresses
approximatives
Adresses
précises
Nos nouveaux biens qui pourraient vous intéresser
Locaux Commerciaux - 1 000m²
NOISY LE SEC (93130)
NOISY LE SEC (93130)
2 550 000.00€ HT HC
Disponibilité : Immédiate
Surface : 1 000 m²
Locaux Commerciaux - 922.82m² Divisibles à partir de 231.85 m²
MONTOIR DE BRETAGNE (44550)
MONTOIR DE BRETAGNE (44550)
1 102 349.12€ HT HC
Disponibilité : Juin 2028
Surface : divisibles à partir de 231.85 m²
Locaux Commerciaux - 424m² Divisibles à partir de 71 m²
AGDE (34300)
AGDE (34300)
759 999.51€ HT HC
Disponibilité : Immédiate
Surface : divisibles à partir de 71 m²
Locaux Commerciaux - 430m²
NANTES (44300)
NANTES (44300)
800 002.10€ HT HC
Disponibilité : Octobre
Surface : 430 m²
Les entrepreneurs ayant consulté cette offre ont aussi consulté celles ci
Locaux Commerciaux - 1 000m²
NOISY LE SEC (93130)
NOISY LE SEC (93130)
2 550 000.00€ HT HC
Disponibilité : Immédiate
Surface : 1 000 m²
Locaux Commerciaux - 922.82m² Divisibles à partir de 231.85 m²
MONTOIR DE BRETAGNE (44550)
MONTOIR DE BRETAGNE (44550)
1 102 349.12€ HT HC
Disponibilité : Juin 2028
Surface : divisibles à partir de 231.85 m²
Bureaux et Locaux Commerciaux - 328m²
LEVALLOIS PERRET (92300)
LEVALLOIS PERRET (92300)
2 144 998.64€ HT HC
Disponibilité : 1er juillet 2026
Surface : 328 m²