Retour
Disponibilité 8 mois après accord
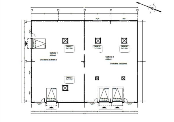
À Acheter ou à Louer Locaux d'Activités 800 m² divisibles à partir de 200 m² AUDENGE (33980)
Ajouter au comparateur
Vous souhaitez faciliter votre recherche ?
Créez un compte
Présentation du bien
Situé sur la commune d'Audenge, au sein de la nouvelle zone d'activité P2A, IMMPROVE vous propose à la vente ou à la location des cellules d'activités à construire, divisibles à partir de 200 m². Idéal artisans! Environnement paysager. Locaux livrés brut de béton avec compteur électrique individuel triphasé. Le site bénéficiera de 14 places de parking goudronnées.
Surface totale
Nature
Divisibilité
Etat des locaux
800 m²
Locaux d'Activités
Oui à partir de 200 m²
Neuf
Prix & Conditions
Loyer :
Prix sur demande
Prix sur demande
Prix sur demande
Divisibles à partir de 200 m²
Vente :
270 000 € (HD)
337.50 € /m² (HD)
Divisibles à partir de 200 m²
Dépôt de garantie :
3 mois de loyer HT HC
Conditions vente :
Loi Carrez et affectation juridique en cours de détermination
Prestations & équipements du bien
Le bâtiment
Façade en bardage double peau isolé
Les espaces de travail
Immeuble neuf
Possibilité fibre optique . Neuf/Restructuré
Locaux livrés brut de béton,
Les accès
Accès véhicules légers et petits porteurs
Aire de chargement
Porte sectionnelle de plain-pied
Dimensions porte : 4 (H) x 3 (L) m
Prestations spécifiques
Charge au sol : 1, 5 tonnes /m²
Hauteur libre : de 6 à 7 m
Extérieur
14 places de parking
Autres
Structure métallique
Menuiserie en R+1
Compteur triphasé
Loi Carrez et affectation juridique en cours de détermination
Répartition & surfaces des espaces
Tableau des divisibilités
| Type | Étage | Surface | Loyer (€/m²/an HT HC) |
Charges (€/m²/an HT HC) |
Prix achat (€/m² HT HC) |
Charges (achat) (€/m² HT HC) |
|---|---|---|---|---|---|---|
| Activités | Rez-de-Chaussée | 200 m² | Prix sur demande | Prix sur demande | 1 350.00 | Prix sur demande |
| Activités | Rez-de-Chaussée | 400 m² | Prix sur demande | Prix sur demande | 1 300.00 | Prix sur demande |
| Parkings | Rez-de-Chaussée | Prix sur demande | Prix sur demande | Prix sur demande | Prix sur demande |
Performance énergétique du bien (DPE)


Informations non contractuelles
Localisation & accès
Accès routier
Autoroute: A660 Sortie 2
Adresses
approximatives
Adresses
précises
Nos nouveaux biens qui pourraient vous intéresser
Locaux d'Activités - 1 794m²
SAINT PRIEST (69800)
SAINT PRIEST (69800)
Prix sur demande
Disponibilité : Octobre 2027
Surface : 1 794 m²
Locaux d'Activités - 1 980m²
FLEURIEUX SUR L'ARBRESLE (69210)
FLEURIEUX SUR L'ARBRESLE (69210)
Prix sur demande
Disponibilité : Immédiate
Surface : 1 980 m²
Locaux d'Activités - 507.70m²
SCHWEIGHOUSE SUR MODER (67590)
SCHWEIGHOUSE SUR MODER (67590)
Prix sur demande
Disponibilité : Immédiate
Surface : 507.70 m²
Locaux d'Activités - 253.85m²
SCHWEIGHOUSE SUR MODER (67590)
SCHWEIGHOUSE SUR MODER (67590)
Prix sur demande
Disponibilité : Immédiate
Surface : 253.85 m²
Les entrepreneurs ayant consulté cette offre ont aussi consulté celles ci
Locaux d'Activités - 1 794m²
SAINT PRIEST (69800)
SAINT PRIEST (69800)
Prix sur demande
Disponibilité : Octobre 2027
Surface : 1 794 m²
Locaux d'Activités - 1 980m²
FLEURIEUX SUR L'ARBRESLE (69210)
FLEURIEUX SUR L'ARBRESLE (69210)
Prix sur demande
Disponibilité : Immédiate
Surface : 1 980 m²
Locaux d'Activités - 507.70m²
SCHWEIGHOUSE SUR MODER (67590)
SCHWEIGHOUSE SUR MODER (67590)
Prix sur demande
Disponibilité : Immédiate
Surface : 507.70 m²
Locaux d'Activités - 253.85m²
SCHWEIGHOUSE SUR MODER (67590)
SCHWEIGHOUSE SUR MODER (67590)
Prix sur demande
Disponibilité : Immédiate
Surface : 253.85 m²