Retour
Disponibilité Immédiate
À Acheter ou à Louer Bureaux 6 272.40 m² divisibles à partir de 254.80 m² LE TRIPTYK RUE SAINT ROMAIN LYON (69008)
Ajouter au comparateur
Vous souhaitez faciliter votre recherche ?
Créez un compte
Présentation du bien
Entre le quartier de Montplaisir et Sans-Soucis, Immprove vous propose à la location par niveau ou à la vente dans sa totalité, plusieurs niveaux de bureaux dans un immeuble entièrement rénové en 2019. Les plateaux sont complètement aménagés, et pourront être réaménagé selon les besoins du futur utilisateur.
Surface totale
Nature
Divisibilité
Etat des locaux
6 272.40 m²
Bureaux
Oui à partir de 254.80 m²
Rénové
Prix & Conditions
Loyer :
130 € /m²/an (HT/HC)
2 760 € /mois (HT/HC)
33 124 € /an (HT/HC)
Divisibles à partir de 254.80 m²
Vente :
Prix sur demande
Divisibles à partir de 254.80 m²
Impôt foncier :
16.00
Dépôt de garantie :
3 mois de loyer HT HC
Conditions location :
. La divisibilité des surfaces est fournie à titre indicatif ; toute autre possibilité de division peut être examinée
Conditions vente :
. Vente de la totalité de l’actif
Prestations & équipements du bien
Le bâtiment
Parties communes de qualité
Les espaces de travail
Immeuble rénové en 2019
Fibre optique
Hôtesse d'accueil
Salle de réunion partagée
Rénové
Espace ouvert
Bureaux cloisonnés
Salle de réunion
Locaux rationnels et modulables
Faux plafonds luminaires LED
Faux planchers techniques
Cloisonnement amovible
Le confort au quotidien
Moquette
Accessibilité
Ascenseur
Services & espaces partagés
Cafétéria
Prestations spécifiques
Chauffage
Extérieur
Jardin extérieur
Autres
ATRIUM
Air rafraichi
Sanitaires communs
. La divisibilité des surfaces est fournie à titre indicatif ; toute autre possibilité de division peut être examinée . Vente de la totalité de l’actif
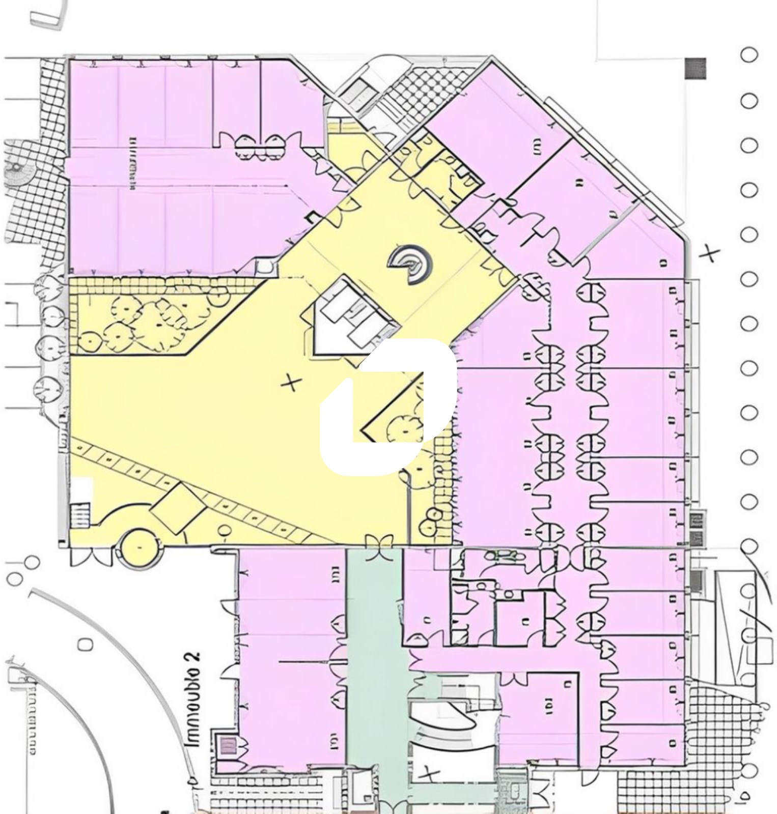
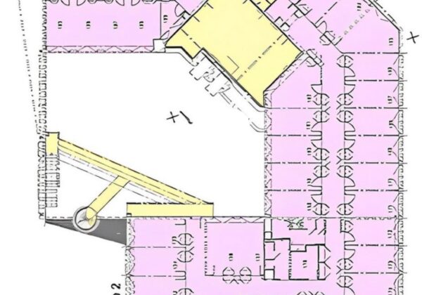
Répartition & surfaces des espaces
Tableau des divisibilités
| Type | Étage | Surface | Loyer (€/m²/an HT HC) |
Charges (€/m²/an HT HC) |
Prix achat (€/m² HT HC) |
Charges (achat) (€/m² HT HC) |
|---|---|---|---|---|---|---|
| Parkings | 1 525.00 | Prix sur demande | Prix sur demande | Prix sur demande | ||
| Bureaux | Rez-de-Jardin | 255 m² | 130.00 | 59.00 | Prix sur demande | Prix sur demande |
| Bureaux | Rez-de-Chaussée | 500 m² | 130.00 | 59.00 | Prix sur demande | Prix sur demande |
| Bureaux | Rez-de-Chaussée | 503 m² | 130.00 | 59.00 | Prix sur demande | Prix sur demande |
| Bureaux | 1er étage | 337 m² | 130.00 | 59.00 | Prix sur demande | Prix sur demande |
| Bureaux | 1er étage | 675 m² | 130.00 | 59.00 | Prix sur demande | Prix sur demande |
| Bureaux | 2ème étage | 506 m² | 130.00 | 59.00 | Prix sur demande | Prix sur demande |
| Bureaux | 3ème étage | 450 m² | 130.00 | 59.00 | Prix sur demande | Prix sur demande |
| Bureaux | 3ème étage | 561 m² | 130.00 | 59.00 | Prix sur demande | Prix sur demande |
| Bureaux | 4ème étage | 412 m² | 130.00 | 59.00 | Prix sur demande | Prix sur demande |
| Bureaux | 4ème étage | 600 m² | 130.00 | 59.00 | Prix sur demande | Prix sur demande |
| Bureaux | 5ème étage | 966 m² | 130.00 | 59.00 | Prix sur demande | Prix sur demande |
Performance énergétique du bien (DPE)


Informations non contractuelles
Localisation & accès
Transports en commun à proximité
Villon, Jet d'Eau - M. France
C16
C25
2960
Adresses
approximatives
Adresses
précises
Nos nouveaux biens qui pourraient vous intéresser
Bureaux - 164.55m² Divisibles à partir de 68.78 m²
LYON (69009)
LYON (69009)
Prix sur demande
Disponibilité : Immédiate
Surface : divisibles à partir de 68.78 m²
Bureaux - 2 621.30m² Divisibles à partir de 88.50 m²
LYON (69004)
LYON (69004)
Prix sur demande
Disponibilité : Sous 24 mois
Surface : divisibles à partir de 88.50 m²
Bureaux - 3 646m² Divisibles à partir de 117.40 m²
LYON (69007)
LYON (69007)
Prix sur demande
Disponibilité : Immédiate
Surface : divisibles à partir de 117.40 m²
Les entrepreneurs ayant consulté cette offre ont aussi consulté celles ci
Bureaux - 168m²
SAINTE FOY LES LYON (69110)
SAINTE FOY LES LYON (69110)
Prix sur demande
Disponibilité : Immédiate
Surface : 168 m²
Bureaux - 380m²
VIGNEUX DE BRETAGNE (44360)
VIGNEUX DE BRETAGNE (44360)
Prix sur demande
Disponibilité : A convenir
Surface : 380 m²
Bureaux - 295m²
BOULOGNE BILLANCOURT (92100)
BOULOGNE BILLANCOURT (92100)
Prix sur demande
Disponibilité : Immédiate
Surface : 295 m²