Retour
Bureaux - 825m² à Acheter ou à Louer
. Climatisation double flux
. Terrasses, jardins
. Chauffage collectif
. Stationnements 2 roues
. Douches
. Vestiaires
. Contrôle d’accès
. Luminaires encastrés
. Sol bureaux : moquette
. Aménagement des bureaux : espaces ouverts
. Bureaux climatisés
. Sanitaires
Bureaux - 825m² à Acheter ou à Louer
COURS TOLSTOÏ VILLEURBANNE (69100)
DESCRIPTION
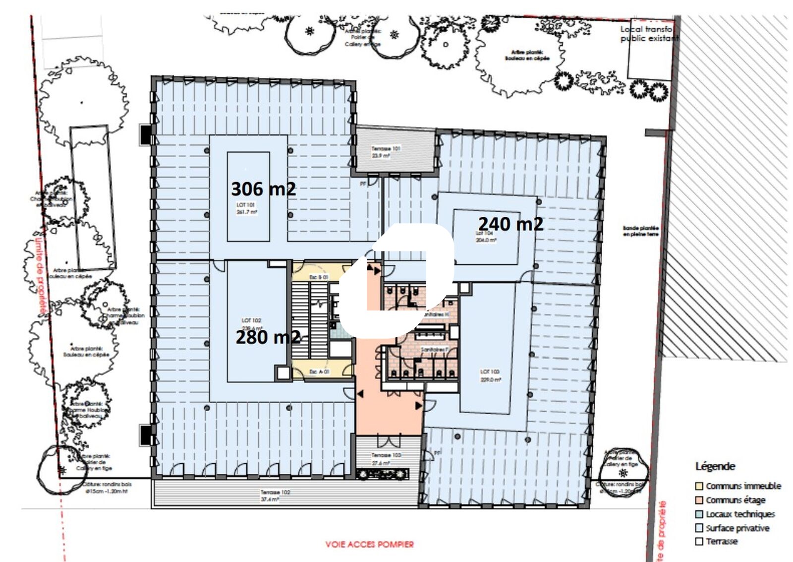
IMMROVE vous propose, à la vente ou à la location, trois surfaces de bureaux au sein de l’immeuble SWAN, situé à Villeurbanne. Ces espaces, tous situés au 1er étage, sont divisibles à partir de 239 m², offrant ainsi une grande flexibilité d’aménagement.
En savoir plus
. Immeuble neuf. Climatisation double flux
. Terrasses, jardins
. Chauffage collectif
. Stationnements 2 roues
. Douches
. Vestiaires
. Contrôle d’accès
. Luminaires encastrés
. Sol bureaux : moquette
. Aménagement des bureaux : espaces ouverts
. Bureaux climatisés
. Sanitaires
Consommations énergétiques


Informations non contractuelles
Tableau des divisibilités
Type | Étage | Surface | Loyer (€/m²/an HT HC) |
Charges (€/m²/an HT HC) |
Prix achat (€/m² HT HC) |
Charges (achat) (€/m² HT HC) |
---|---|---|---|---|---|---|
Parkings | Sous-Sol | 1 500.00 | Prix sur demande | 25 000.00 | Prix sur demande | |
Bureaux | 1er étage | 306 m² | 195.00 | Prix sur demande | 3 300.00 | Prix sur demande |
Bureaux | 1er étage | 280 m² | 195.00 | Prix sur demande | 3 300.00 | Prix sur demande |
Bureaux | 1er étage | 239 m² | 195.00 | Prix sur demande | 3 300.00 | Prix sur demande |
Caractéristiques
- Surface 825 m²
- Etat des locaux Neuf
- Nbre Parking 12
Adresses
approximatives
Adresses
précises
Les entrepreneurs ayant consulté cette offre ont aussi consulté celles ci
Les services Immprove
Une gamme complète de services qui facilitent vos démarches et destinée à satisfaire vos attentes