Retour
Disponibilité Immédiate
À Acheter ou à Louer Bureaux 580 m² PARIS (75017)
Ajouter au comparateur
Vous souhaitez faciliter votre recherche ?
Créez un compte
Présentation du bien
IMMPROVE vous propose à la vente ou à la location des bureaux d’environ 580 m², situés dans un bel hôtel particulier aux façades en pierre de taille, boulevard Pereire. Répartis sur R+3, ces locaux offrent de belles prestations, avec un roof-top et des terrasses extérieures d’environ 160 m², alliant luminosité, élégance et confort.
Surface totale
Nature
Divisibilité
Etat des locaux
580 m²
Bureaux
Non
Rénové
Prix & Conditions
Loyer :
724 € /m²/an (HT/HC)
34 993 € /mois (HT/HC)
419 920 € /an (HT/HC)
Vente :
10 498 000 € (HD)
18 100.00 € /m² (HD)
Taxe bureaux :
26.11
Dépôt de garantie :
3 mois de loyer HT HC
Prestations & équipements du bien
Le bâtiment
Immeuble haussmannien
Bâtiment indépendant
Parties communes de bon standing
Les espaces de travail
Fibre optique
Espace ouvert et bureaux cloisonnés
Salle de réunion
Espace détente
Câblage informatique et téléphonique
Cuisine
Sanitaires privatifs et douche
Le confort au quotidien
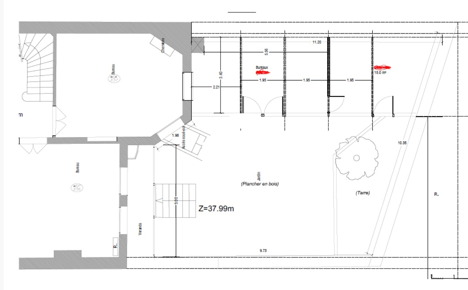
Jardin paysager
Locaux lumineux, rationnels et modulables aménagés en :
Belle hauteur sous plafond
Moulures et cheminées et parquet
Toit terrasse privative 80 m²
3ème étage balcon 10 m²
Climatisation
Les accès
Accès privatif sur rue
Accessibilité
Ascenseur
Prestations spécifiques
Chauffage immeuble gaz
Extérieur
Jardin 70 m²
1er étage terrasse 10 m²
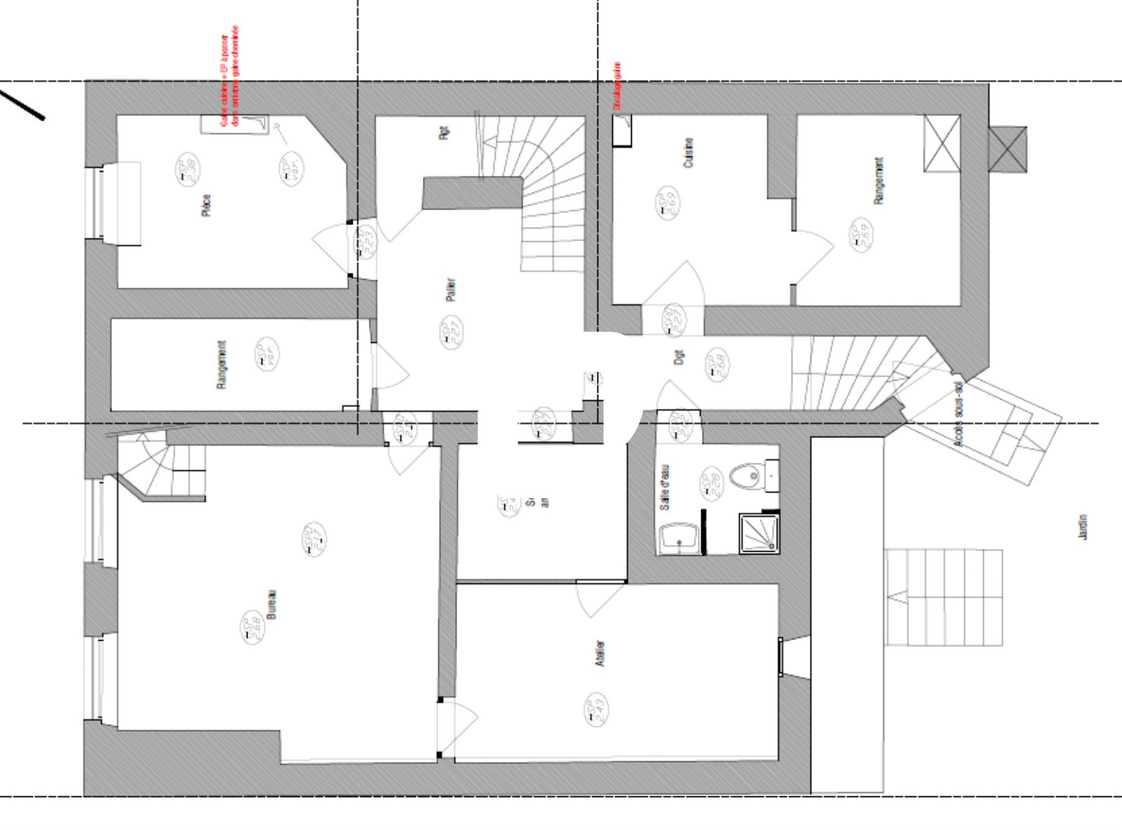
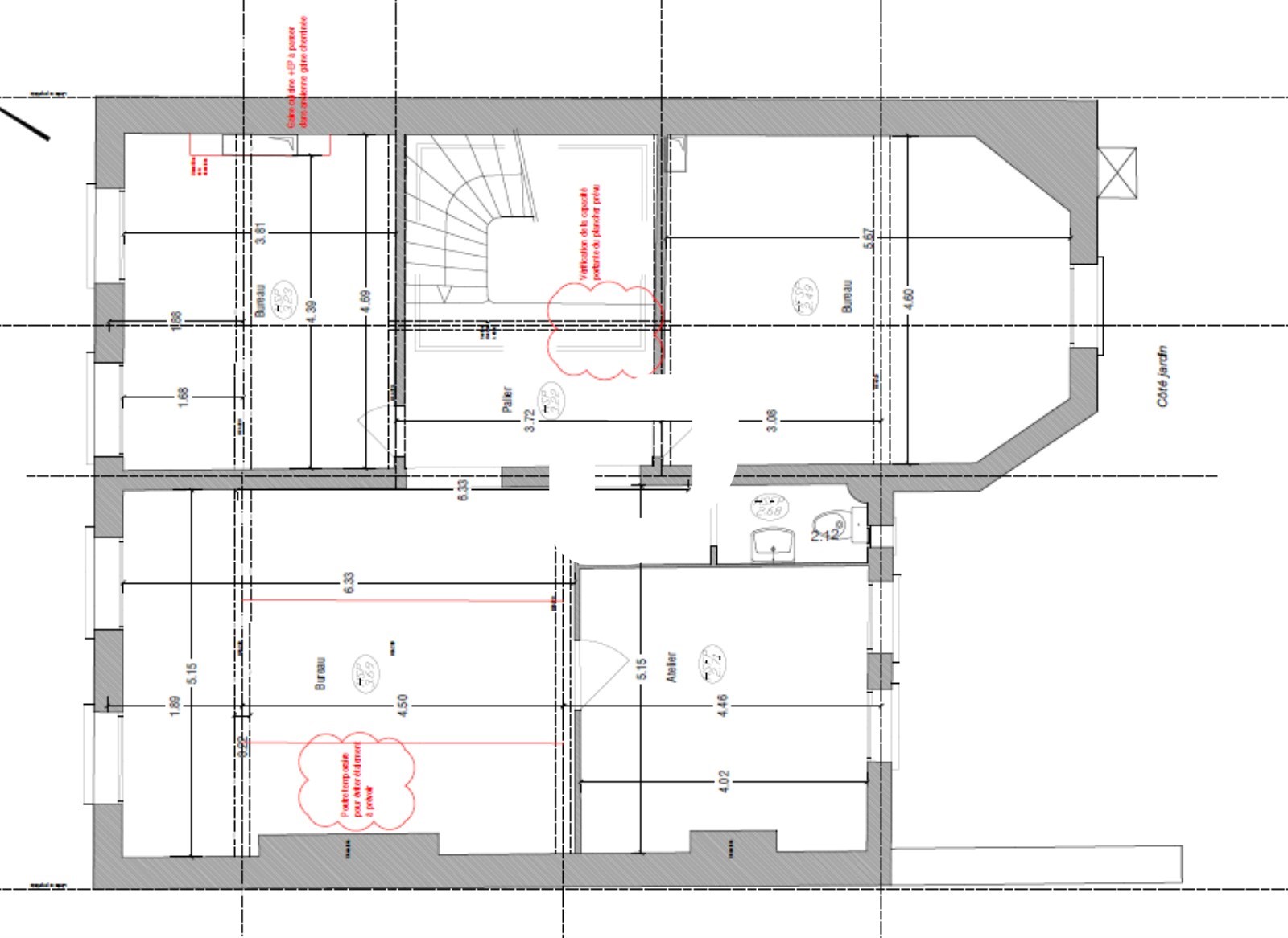
Répartition & surfaces des espaces
Tableau des divisibilités
| Type | Étage | Surface | Loyer (€/m²/an HT HC) |
Charges (€/m²/an HT HC) |
Prix achat (€/m² HT HC) |
Charges (achat) (€/m² HT HC) |
|---|---|---|---|---|---|---|
| Bureaux | Entre Sol | 105 m² | 724.00 | Prix sur demande | 18 100.00 | Prix sur demande |
| Bureaux | Rez-de-Jardin | 60 m² | 724.00 | Prix sur demande | 18 100.00 | Prix sur demande |
| Bureaux | Rez-de-Chaussée | 110 m² | 724.00 | Prix sur demande | 18 100.00 | Prix sur demande |
| Bureaux | 1er étage | 125 m² | 724.00 | Prix sur demande | 18 100.00 | Prix sur demande |
| Bureaux | 2ème étage | 100 m² | 724.00 | Prix sur demande | 18 100.00 | Prix sur demande |
| Bureaux | 3ème étage | 80 m² | 724.00 | Prix sur demande | 18 100.00 | Prix sur demande |
Performance énergétique du bien (DPE)


Informations non contractuelles
Localisation & accès
Transports en commun à proximité
Accès routier
Boulevard Périphérique
Adresses
approximatives
Adresses
précises
Nos nouveaux biens qui pourraient vous intéresser
Les entrepreneurs ayant consulté cette offre ont aussi consulté celles ci
Bureaux - 168m²
SAINTE FOY LES LYON (69110)
SAINTE FOY LES LYON (69110)
Prix sur demande
Disponibilité : Immédiate
Surface : 168 m²
Bureaux - 380m²
VIGNEUX DE BRETAGNE (44360)
VIGNEUX DE BRETAGNE (44360)
Prix sur demande
Disponibilité : A convenir
Surface : 380 m²
Bureaux - 295m²
BOULOGNE BILLANCOURT (92100)
BOULOGNE BILLANCOURT (92100)
Prix sur demande
Disponibilité : Immédiate
Surface : 295 m²