Retour
Disponibilité Immédiate
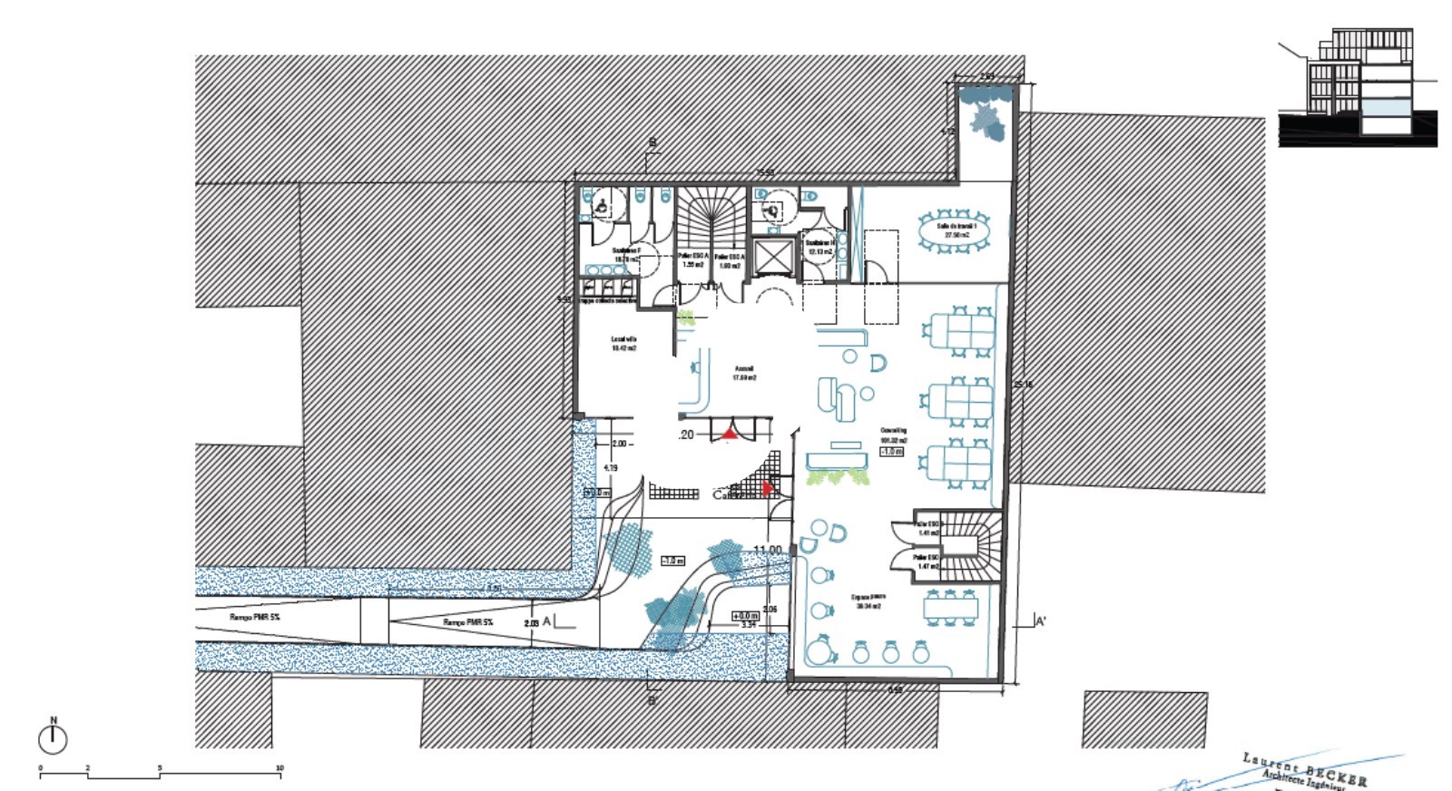
À Acheter Bureaux et Activités 1 225.02 m² divisibles à partir de 555 m² PARIS (75018)
Ajouter au comparateur
Vous souhaitez faciliter votre recherche ?
Créez un compte
Présentation du bien
A toute proximité du métro Max Dormoy; dans un quartier mixte en plein devenir, nous vous proposons à la vente une parcelle indépendante de 555 m² avec la possibilité de construire un immeuble indépendant de bureaux de 1225 m² disposant en plus de 350 m² d’espaces extérieurs.
Surface totale
Nature
Divisibilité
Etat des locaux
1 225.02 m²
Bureaux et Activités
Oui à partir de 555 m²
Travaux à prévoir
Prix & Conditions
Vente :
3 750 000.00 € (HD)
3 061.17 € /m² (HD)
Divisibles à partir de 555 m²
Conditions vente :
. Prix parcelle en l'état. : 3 750 000 € HD HH
. Prix de vente parcelle en l'état avec permis purgé pour création de 1225 m² de bureaux : 4 366 000 € HD HH
. Prix de vente VEFA Immeuble de 1225 m² 100% bureaux : 11 520 000 € HD HH HT
. Prix de vente parcelle en l'état avec permis purgé pour création de 1225 m² de bureaux : 4 366 000 € HD HH
. Prix de vente VEFA Immeuble de 1225 m² 100% bureaux : 11 520 000 € HD HH HT
Prestations & équipements du bien
Les espaces de travail
Local technique
Cuisine
Décloisonnement possible
Locaux rationnels et modulables
Sanitaires privatifs
Le confort au quotidien
Projet de bureaux en L autour de la cour
Belle hauteur sous plafond : 3 mètres du R-1
Cour privative
Extérieur
Terrasses au R+3 et R+3 mezzanine
Autres
Profondeur des plateaux inférieur à 9 mètres
Pavée de verre pour la surface en R-1
Douche
au R+3 et 2,70 mètres en mezzanine
Plancher bois ( CLT)
ERP 5 type W
Capacitaire 200 personnes
. Prix parcelle en l'état. : 3 750 000 € HD HH
. Prix de vente parcelle en l'état avec permis purgé pour création de 1225 m² de bureaux : 4 366 000 € HD HH
. Prix de vente VEFA Immeuble de 1225 m² 100% bureaux : 11 520 000 € HD HH HT
Répartition & surfaces des espaces
Tableau des divisibilités
| Type | Étage | Surface | Prix achat (€/m² HT HC) |
Charges (achat) (€/m² HT HC) |
|---|---|---|---|---|
| Bureaux | R - 1 | 284 m² | Prix sur demande | Prix sur demande |
| Bureaux | RDC | 229 m² | Prix sur demande | Prix sur demande |
| Bureaux | R + 1 | 249 m² | Prix sur demande | Prix sur demande |
| Bureaux | R + 2 | 249 m² | Prix sur demande | Prix sur demande |
| Bureaux | 3ème étage | 148 m² | Prix sur demande | Prix sur demande |
| Bureaux | 3ème étage | 66 m² | Prix sur demande | Prix sur demande |
Performance énergétique du bien (DPE)


Informations non contractuelles
Localisation & accès
Transports en commun à proximité
Gare du Nord (TRAIN), Magenta (TRAIN)
SNCF gare de Paris-Nord-Surface
35
38
60
BUS
Adresses
approximatives
Adresses
précises
Nos nouveaux biens qui pourraient vous intéresser
Bureaux et Activités - 220.44m²
PARIS (75017)
PARIS (75017)
0.00€ HT HC
Disponibilité : Immédiate
Surface : 220.44 m²
Les entrepreneurs ayant consulté cette offre ont aussi consulté celles ci
Bureaux et Activités - 1 721.18m²
GAZERAN (78125)
GAZERAN (78125)
2 799 998.16€ HT HC
Disponibilité : Immédiate
Surface : 1 721.18 m²
Bureaux et Activités - 1 002m²
SAINT PATHUS (77178)
SAINT PATHUS (77178)
1 549 993.80€ HT HC
Disponibilité : Immédiate
Surface : 1 002 m²
Bureaux et Activités - 128m²
VOISINS LE BRETONNEUX (78960)
VOISINS LE BRETONNEUX (78960)
Prix sur demande
Disponibilité : Immédiate
Surface : 128 m²
Bureaux et Activités - 2 720m² Divisibles à partir de 316 m²
MORET LOING ET ORVANNE (77250)
MORET LOING ET ORVANNE (77250)
455 988.00€ HT HC
Disponibilité : 1er mars 2027
Surface : divisibles à partir de 316 m²