Retour

Bureaux - 154m² à Acheter ou à Louer
PARIS (75018)

420 € /m²/an (HT/HC)
non divisibles
5 390 € /mois (HT/HC)
non divisibles
64 680 € /an (HT/HC)
non divisibles
Prix de vente
1 463 000€ (HT/HC)
Contactez-nous par mail
Ou contactez-nous par téléphone
01 59 30 00 00
Partager
  • Référence : 1231681
  • Disponibilité Après accord
Ajouter au comparateur
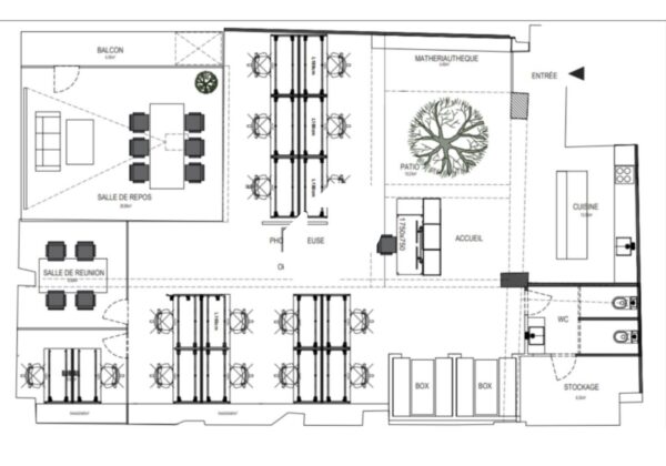
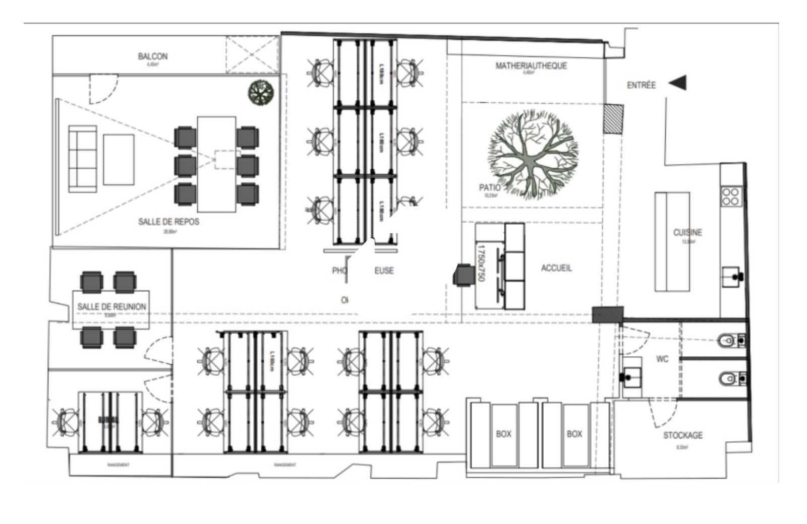
Immprove vous propose à la vente ou à la location un plateau de bureaux de 154 m² à l'esprit industriel situé dans un quartier vivant et dynamique du XVIIIe arrondissement. Grande flexibilité d'aménagement (très peu de contraintes porteuses) et extérieurs privatifs (patio et balcon). Idéal sociétés de production/communication, architectes, start-up, etc. . Restructuration d’un immeuble des années 50
. Ensemble entièrement rénové : hall d’entrée, parties communes, ravalement de toutes les façades, ascenseur, chaufferie
. Accès sécurisé
. Ascenseur PMR
. Chauffage central . Local vélos
. Esprit industriel
. Locaux calmes
. Grande flexibilité d'aménagement
. Cuisine ouverte + 2 sanitaires
. Balcon + patio intérieur
. Climatisation partielle
. Câblage informatique et fibre optique
DPE
GES

Informations non contractuelles

Type Étage Surface Loyer
(€/m²/an HT HC)
Charges
(€/m²/an HT HC)
Prix achat
(€/m² HT HC)
Charges (achat)
(€/m² HT HC)
Bureaux 1er étage 154 m² 420.00 68.00 9 500.00 Prix sur demande
Loi Carrez et affectation juridique en cours de détermination
  • Surface 154 m²
  • Ascenseur oui

Adresses
approximatives

 

Adresses
précises

Bureaux
Bureaux - 120m²
à Acheter ou à Louer
PARIS (75018)
Voir le bien
Prix sur demande
Bureaux
Bureaux - 169m²
à Acheter ou à Louer
PARIS (75001)
Voir le bien
Prix sur demande
Bureaux
Bureaux - 118m²
à Acheter ou à Louer
PARIS (75019)
Voir le bien
Prix sur demande

Une gamme complète de services qui facilitent vos démarches et destinée à satisfaire vos attentes