Retour
À Acheter ou à Louer Locaux Commerciaux 8 860 m² divisibles à partir de 300 m² GRANDCHAMP DES FONTAINES (44119)
Ajouter au comparateur
Vous souhaitez faciliter votre recherche ?
Créez un compte
Présentation du bien
IMMPROVE propose à la vente ou à la location des locaux commerciaux d'exception à Grandchamp-des-Fontaines, totalisant 8 860 m², divisibles à partir de 300 m². Ces espaces neufs, en brut de béton, bénéficient d'une hauteur libre de 7 m, d'un accès PMR, d'une fibre optique, et d'un jardin paysager, offrant un cadre idéal pour votre entreprise.
Surface totale
Nature
Divisibilité
Etat des locaux
8 860 m²
Locaux Commerciaux
Oui à partir de 300 m²
Neuf
Prix & Conditions
Loyer :
160 € /m²/an (HT/HC)
4 000 € /mois (HT/HC)
48 000 € /an (HT/HC)
Divisibles à partir de 300 m²
Vente :
3 348 000 € (HD)
377.88 € /m² (HD)
Divisibles à partir de 300 m²
Conditions vente :
Loi Carrez et affectation juridique en cours de détermination
Prestations & équipements du bien
Les espaces de travail
Fibre optique
Jardin paysager . Neuf/Restructuré
Brut de béton
Les accès
Accès PMR
Accessibilité
Ascenseur
Prestations spécifiques
Hauteur libre : 7 m
Autres
Locaux E.R.P.
Loi Carrez et affectation juridique en cours de détermination
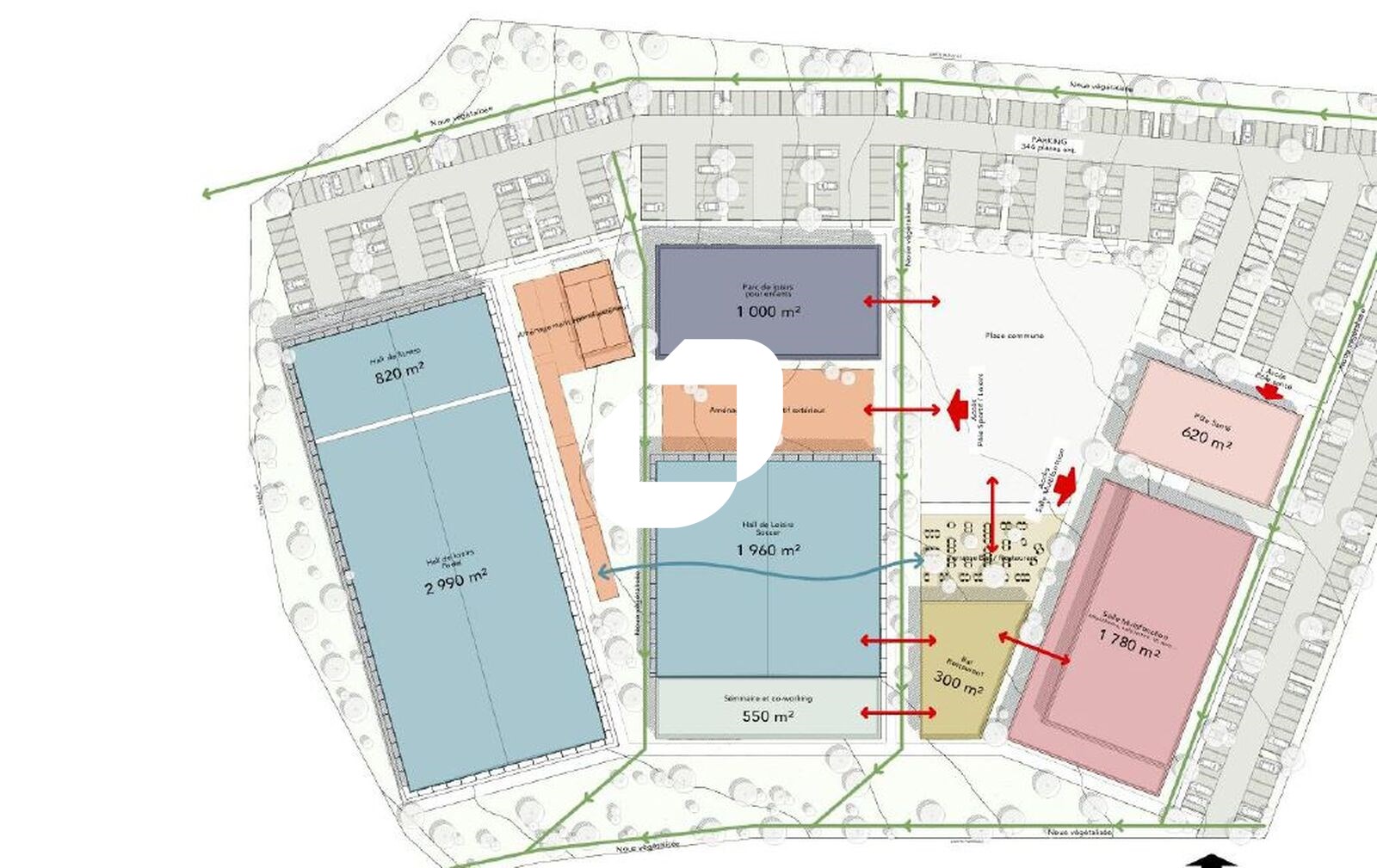
Répartition & surfaces des espaces
Tableau des divisibilités
| Type | Étage | Surface | Loyer (€/m²/an HT HC) |
Charges (€/m²/an HT HC) |
Prix achat (€/m² HT HC) |
Charges (achat) (€/m² HT HC) |
|---|---|---|---|---|---|---|
| Locaux Commerciaux | 1 240 m² | 160.00 | Prix sur demande | 2 700.00 | Prix sur demande | |
| Locaux Commerciaux | 820 m² | 90.00 | Prix sur demande | 1 350.00 | Prix sur demande | |
| Locaux Commerciaux | Rez-de-Chaussée | 550 m² | Prix sur demande | Prix sur demande | 2 000.00 | Prix sur demande |
| Locaux Commerciaux | Rez-de-Chaussée | 1 960 m² | 90.00 | Prix sur demande | 1 350.00 | Prix sur demande |
| Locaux Commerciaux | Rez-de-Chaussée | 2 990 m² | 90.00 | Prix sur demande | 1 350.00 | Prix sur demande |
| Locaux Commerciaux | Rez-de-Chaussée | 1 000 m² | 90.00 | Prix sur demande | 1 350.00 | Prix sur demande |
| Locaux Commerciaux | Rez-de-Chaussée | 300 m² | 160.00 | Prix sur demande | 2 400.00 | Prix sur demande |
Performance énergétique du bien (DPE)


Informations non contractuelles
Localisation & accès
Adresses
approximatives
Adresses
précises
Nos nouveaux biens qui pourraient vous intéresser
Locaux Commerciaux - 243m² Divisibles à partir de 118 m²
BORDEAUX (33800)
BORDEAUX (33800)
Prix sur demande
Disponibilité : Immédiate
Surface : divisibles à partir de 118 m²
Locaux Commerciaux - 1 429.13m² Divisibles à partir de 191 m²
SERRIS (77700)
SERRIS (77700)
Prix sur demande
Disponibilité : 1er trimestre 2026
Surface : divisibles à partir de 191 m²
Les entrepreneurs ayant consulté cette offre ont aussi consulté celles ci
Bureaux et Locaux Commerciaux - 107.35m²
COIGNIERES (78310)
COIGNIERES (78310)
Prix sur demande
Disponibilité : Immédiate
Surface : 107.35 m²
Locaux Commerciaux - 243m² Divisibles à partir de 118 m²
BORDEAUX (33800)
BORDEAUX (33800)
Prix sur demande
Disponibilité : Immédiate
Surface : divisibles à partir de 118 m²