À Acheter ou à Louer Bureaux et Locaux Commerciaux 211.16 m² COLOMBES (92700)
Présentation du bien
IMMPROVE vous propose à la vente ainsi qu’à la location un espace mixte bureaux/local commercial de 211 m². Idéalement situé face au marché de Colombes. Vous bénéficierez d’une grande visibilité grâce à un grand linéaire de vitrine. Des parkings à proximité, à l’hôtel de ville, sont disponibles. Un emplacement idéal pour allier activité commerciale et espace de travail.
Prix & Conditions
Prestations & équipements du bien
Faux plafonds
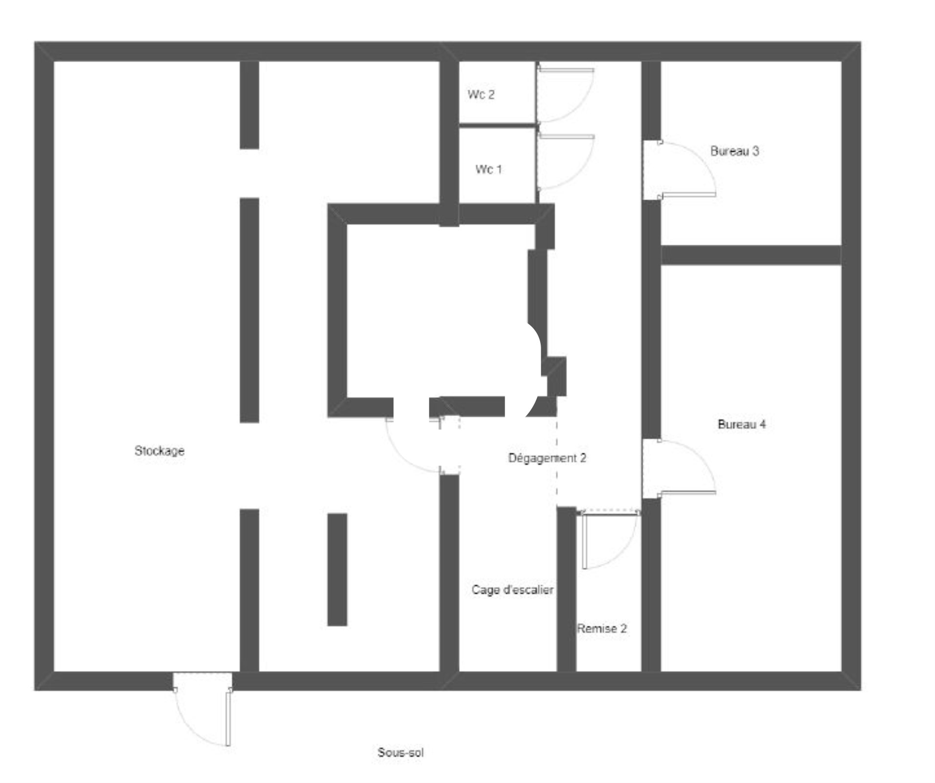
Sous-sol partiellement aménagé en bureaux, espace cuisine, doubles sanitaires
Belle hauteur sous plafond
Double accès
Aire de chargement
Gardiennage
Entrée indépendante
Linéaire de vitrine : 11,50m
Câblage
Sous-sol partiellement laissé en espace de stockage, bénéficiant d’une belle hauteur sous-plafond (4,5m) et d’une aire de livraison pour véhicules légers
Répartition & surfaces des espaces
Tableau des divisibilités
| Type | Étage | Surface | Loyer (€/m²/an HT HC) |
Charges (€/m²/an HT HC) |
Prix achat (€/m² HT HC) |
Charges (achat) (€/m² HT HC) |
|---|---|---|---|---|---|---|
| Activités | 1er Sous-Sol | 100 m² | 175.00 | 15.87 | 2 606.00 | 15.87 |
| Bureaux | Rez-de-Chaussée | 87 m² | 175.00 | 15.87 | 2 606.00 | 15.87 |
| Mezzanine | Rez-de-Chaussée | 24 m² | 175.00 | 15.87 | 2 606.00 | 15.87 |
Performance énergétique du bien (DPE)


Informations non contractuelles
Localisation & accès
Transports en commun à proximité
SNCF gare de Colombes (Ligne L)
SNCF gare de Colombes
Adresses
approximatives
Adresses
précises
Nos nouveaux biens qui pourraient vous intéresser
COIGNIERES (78310)
MEZE (34140)
PARIS (75009)
PARIS (75005)
Les entrepreneurs ayant consulté cette offre ont aussi consulté celles ci
COIGNIERES (78310)
MEZE (34140)
PARIS (75015)
MERIGNAC (33700)