Retour
Disponibilité Juillet 2026
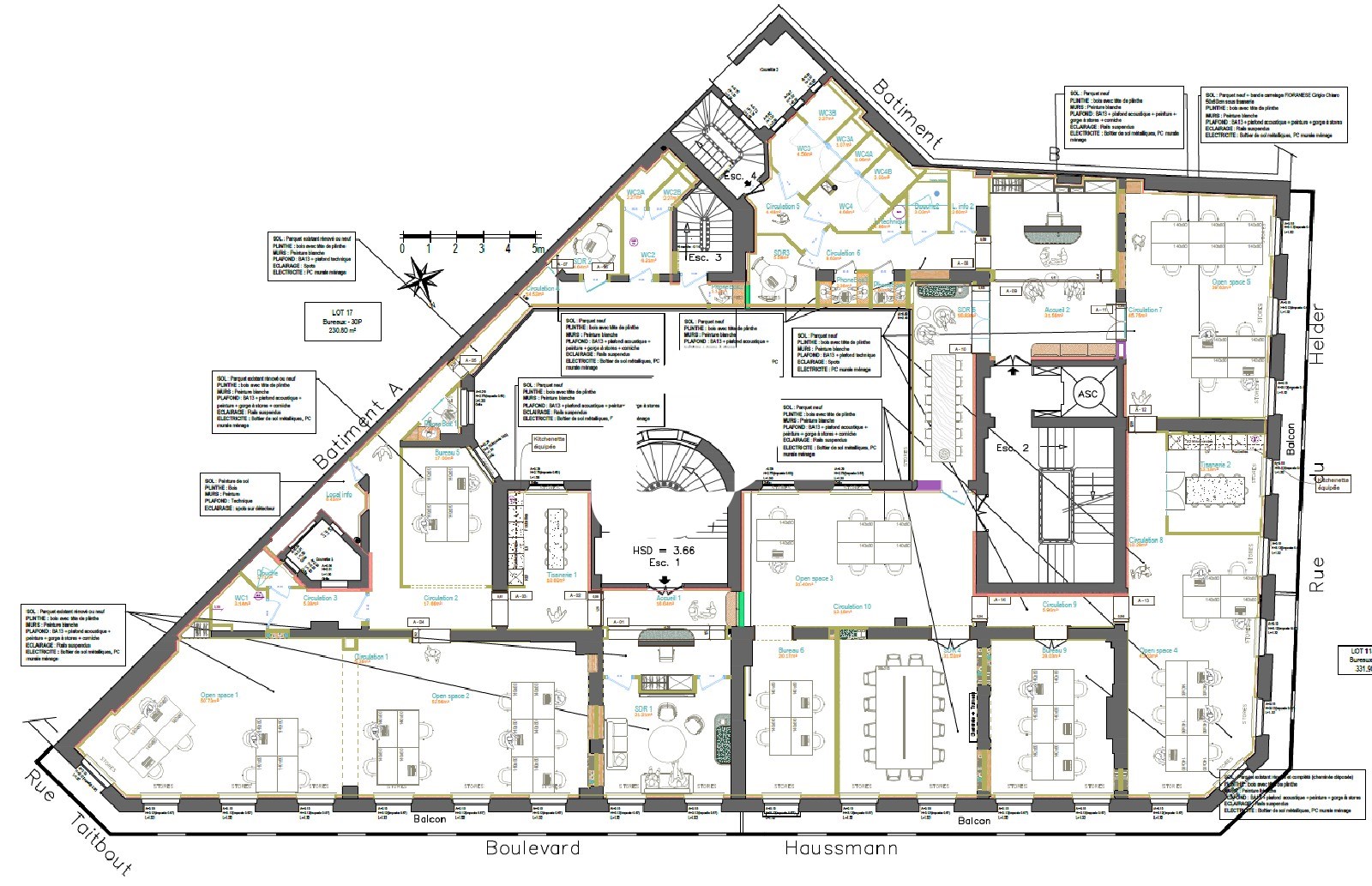
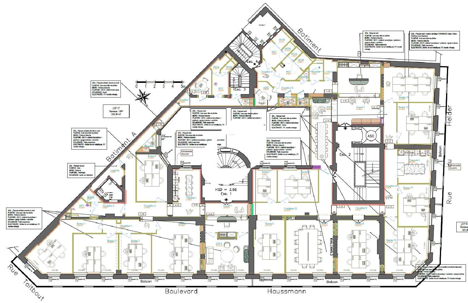
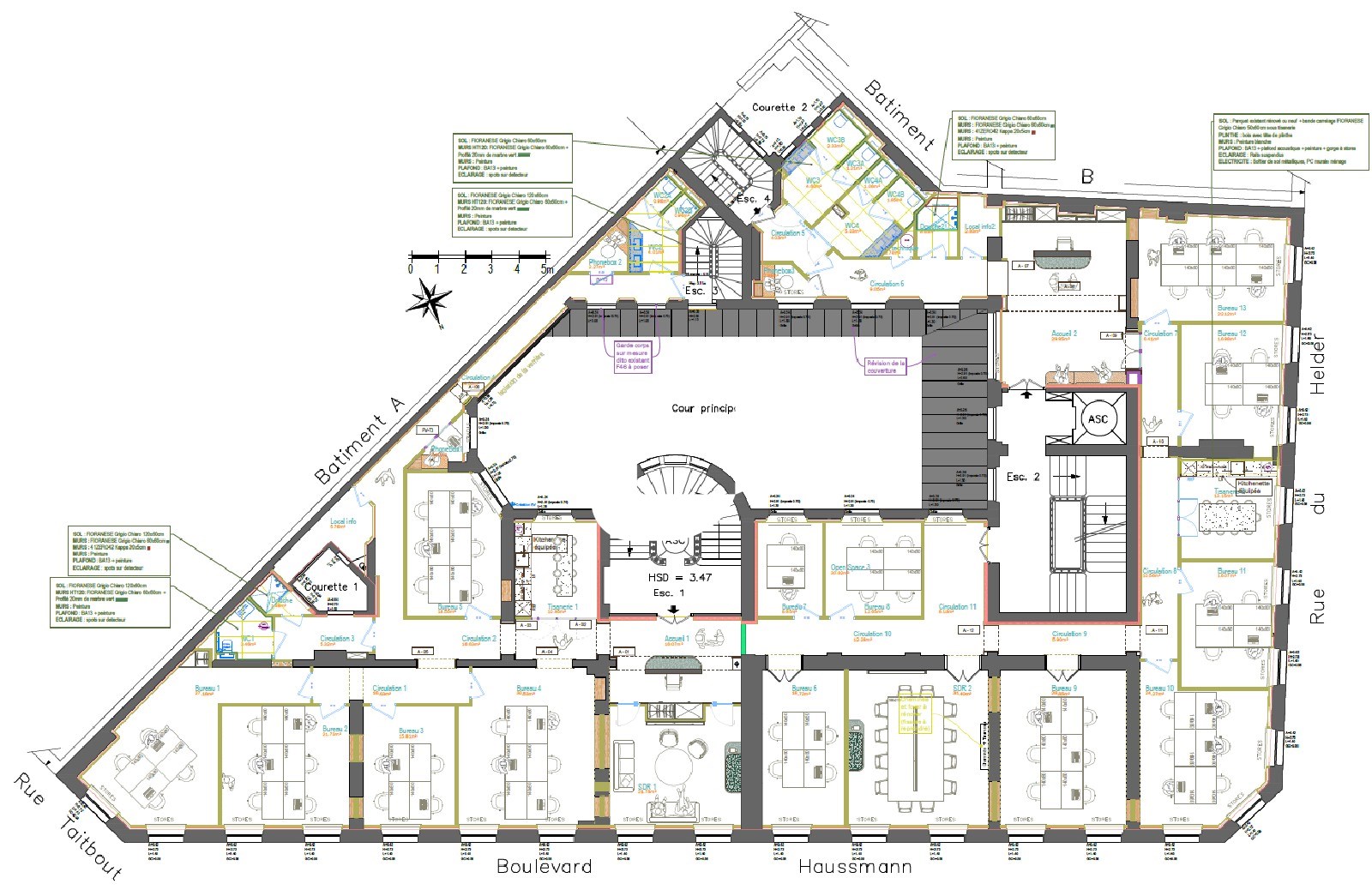
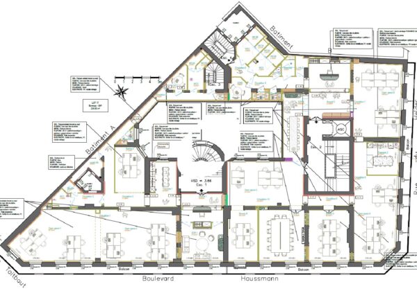
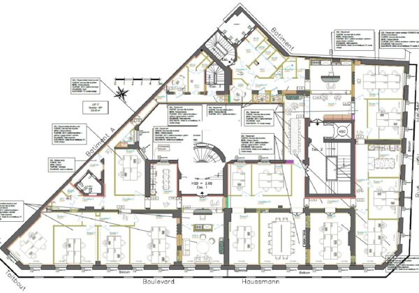
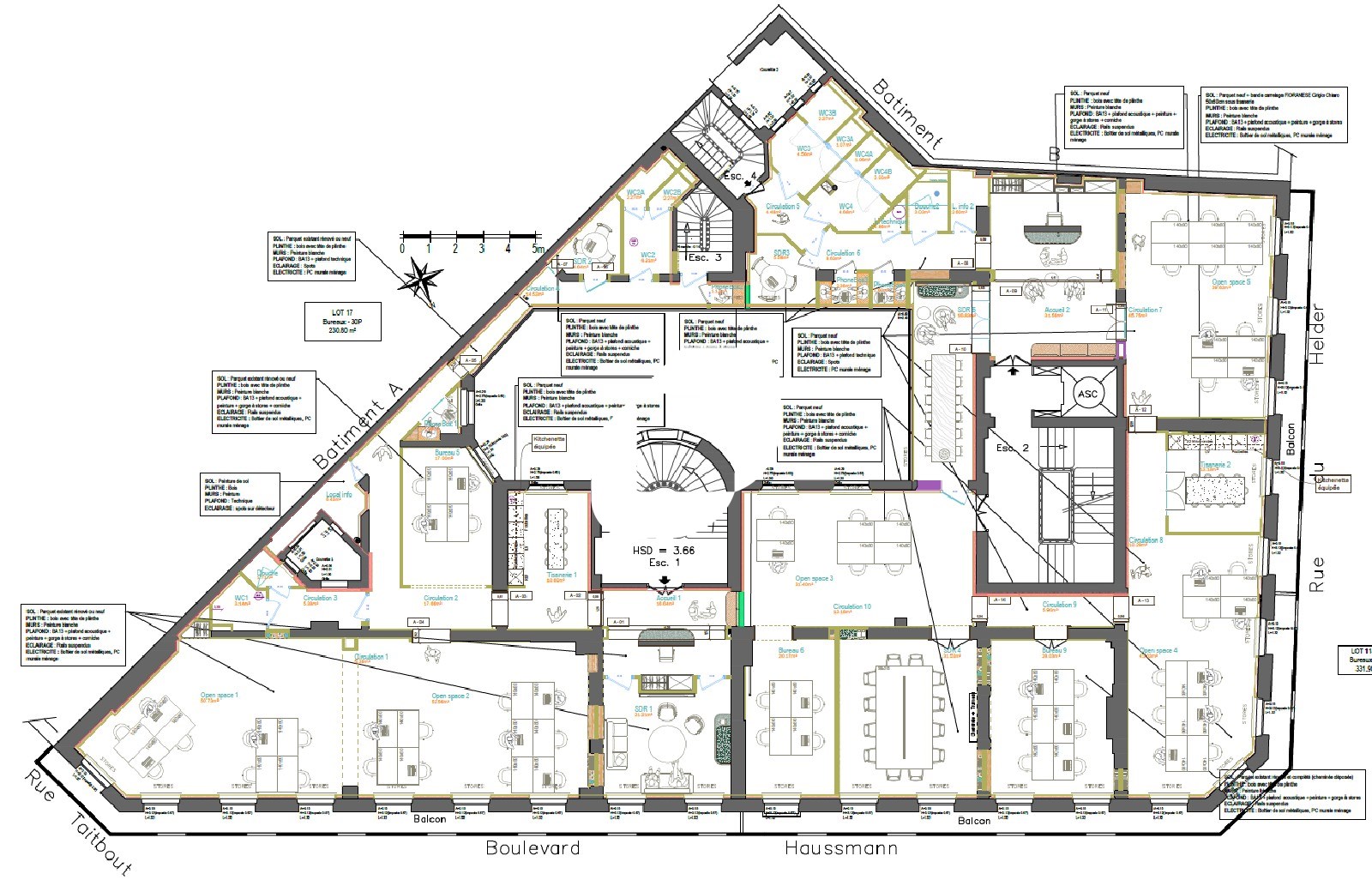
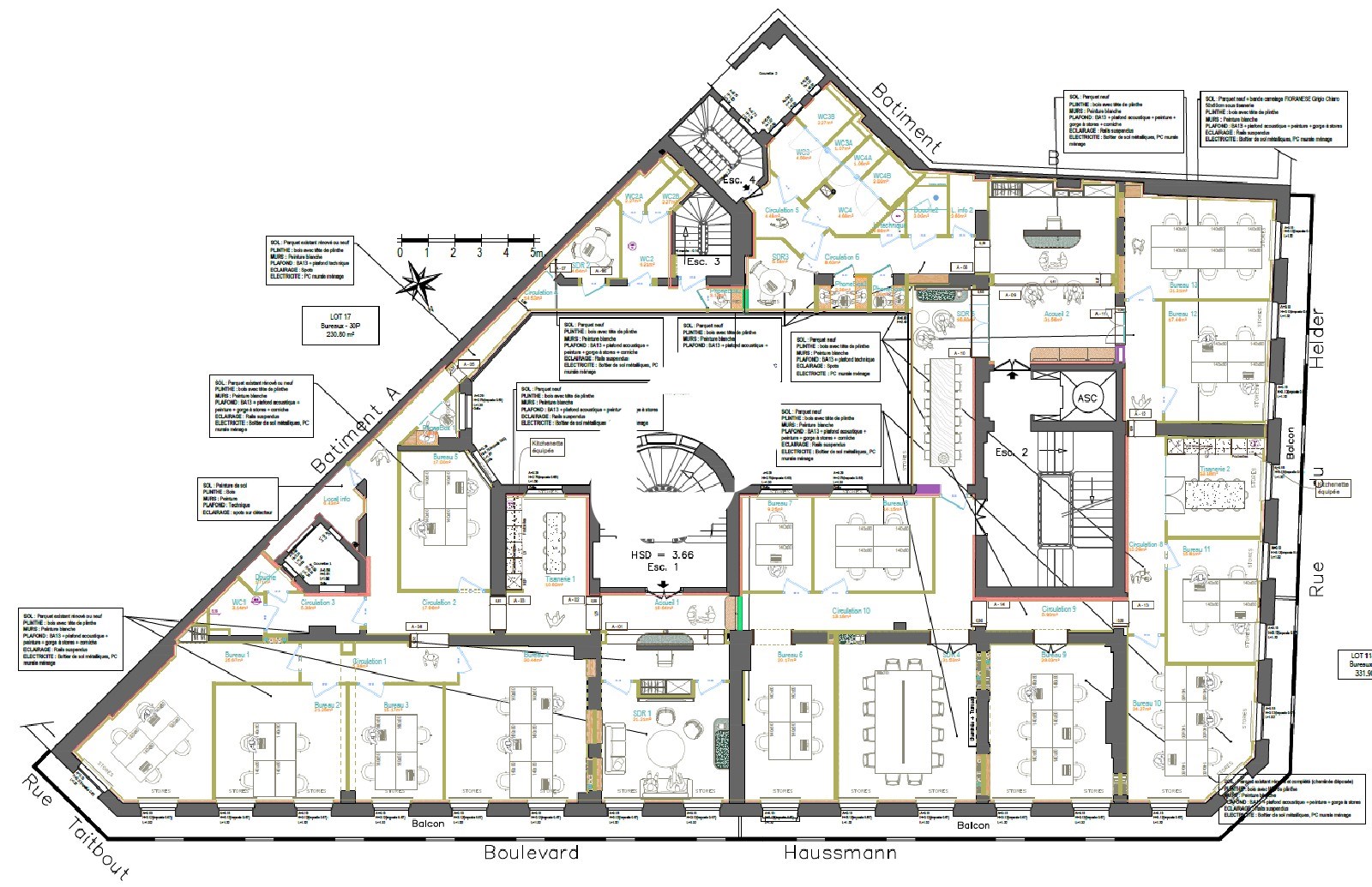
À Louer Bureaux 619.90 m² 11BIS-13 BOULEVARD HAUSSMANN PARIS (75009)
Ajouter au comparateur
Vous souhaitez faciliter votre recherche ?
Créez un compte
Présentation du bien
IMMPROVE vous propose 619 m² de bureaux d’exception, situés au 3ème étage d’un immeuble haussmannien premium, certifié HQE Très Performant, sur le prestigieux boulevard Haussmann (Paris 9ème), à proximité immédiate de la place de l’Opéra et des Galeries Lafayette. Entièrement rénovés par le bailleur, ces bureaux offrent une belle hauteur sous plafond, un parquet en point de Hongrie avec boîtiers de sol, des faux plafonds acoustiques et des prestations haut de gamme, pour un cadre de travail élégant et performant.
Surface totale
Nature
Divisibilité
Etat des locaux
619.90 m²
Bureaux
Non
Rénové
Prix & Conditions
Loyer :
900 € /m²/an (HT/HC)
46 500 € /mois (HT/HC)
558 000 € /an (HT/HC)
Impôt foncier :
14.65
Taxe bureaux :
26.11
Frais de gestion :
5% HT du loyer principal contractuel HT HC
Dépôt de garantie :
3 mois de loyer HT HC
Conditions location :
Assurance : 2,00 €/m²/an (2024)
Prestations & équipements du bien
Le bâtiment
Immeuble haussmannien en pierre de taille . Double adresse avec deux entrées distinctes. Cour végétalisée avec local vélo . Parties communes de très bon standing .Ascenseur
Les espaces de travail
Locaux livrés entièrement rénovés par le bailleur
Le confort au quotidien
Faux plafond acoustique, parquet en point de Hongrie, boîtiers de sols
Très belle hauteur sous plafond
Prestations spécifiques
Raccordement CPCU et Fraîcheur de Paris
Autres
Excellent capacitaire d’environ 70 personnes
Tisanerie
Sanitaires et douches accessibles PMR
Assurance : 2,00 €/m²/an (2024)
Répartition & surfaces des espaces
Tableau des divisibilités
| Type | Étage | Surface | Loyer (€/m²/an HT HC) |
Charges (€/m²/an HT HC) |
|---|---|---|---|---|
| Archives | Sous-Sol | 115 m² | 90.00 | Prix sur demande |
| Parkings | Sous-Sol | 1 800.00 | Prix sur demande | |
| Bureaux | 3ème étage | 620 m² | 900.00 | 77.00 |
Performance énergétique du bien (DPE)


Informations non contractuelles
Localisation & accès
Transports en commun à proximité
Haussmann-St-Lazare (Gare SNCF)
Gare de l'Est (TER), Paris Gare du Nord (TER), Paris Saint-Lazare (TER), Gare du Nord (TER)
Gare Saint-Lazare (J, L)
42
94
26
43
32
45
74
85
40
52
84
29
39
Adresses
approximatives
Adresses
précises
Nos nouveaux biens qui pourraient vous intéresser
Bureaux - 5 412m² Divisibles à partir de 500 m²
PARIS (75020)
PARIS (75020)
9 583.33€/mois HT HC
Disponibilité : Immédiate
Surface : divisibles à partir de 500 m²
Bureaux - 630m²
PARIS (75002)
PARIS (75002)
39 375.00€/mois HT HC
Disponibilité : 1er septembre 2026
Surface : 630 m²
Bureaux - 4 316m² Divisibles à partir de 709 m²
PARIS (75019)
PARIS (75019)
61 666.67€/mois HT HC
Disponibilité : 1er septembre 2026
Surface : divisibles à partir de 709 m²
Les entrepreneurs ayant consulté cette offre ont aussi consulté celles ci
Bureaux - 348.02m²
BIEVRES (91570)
BIEVRES (91570)
3 480.00€/mois HT HC
Disponibilité : 1er juillet 2026
Surface : 348.02 m²
Bureaux - 288.28m²
BIEVRES (91570)
BIEVRES (91570)
2 880.00€/mois HT HC
Disponibilité : 1er juillet 2026
Surface : 288.28 m²
Bureaux et Activités - 4 645.22m² Divisibles à partir de 249.90 m²
VILLIERS SUR MARNE (94350)
VILLIERS SUR MARNE (94350)
54 180.00€/mois HT HC
Disponibilité : Immédiate
Surface : divisibles à partir de 249.90 m²
Bureaux - 447m²
MOUSSY LE NEUF (77230)
MOUSSY LE NEUF (77230)
4 097.50€/mois HT HC
Disponibilité : Immédiate
Surface : 447 m²