Retour
Disponibilité Immédiate
À Louer Bureaux privatifs 165 m² | 25 postes RUE AUBER PARIS (75009)
Ajouter au comparateur
Vous souhaitez faciliter votre recherche ?
Créez un compte
Présentation du bien
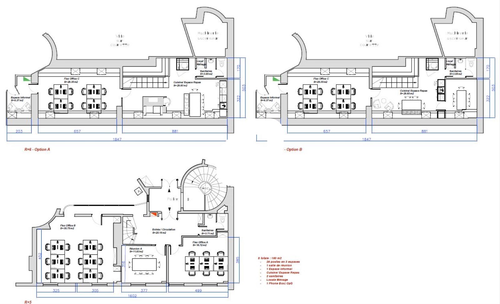
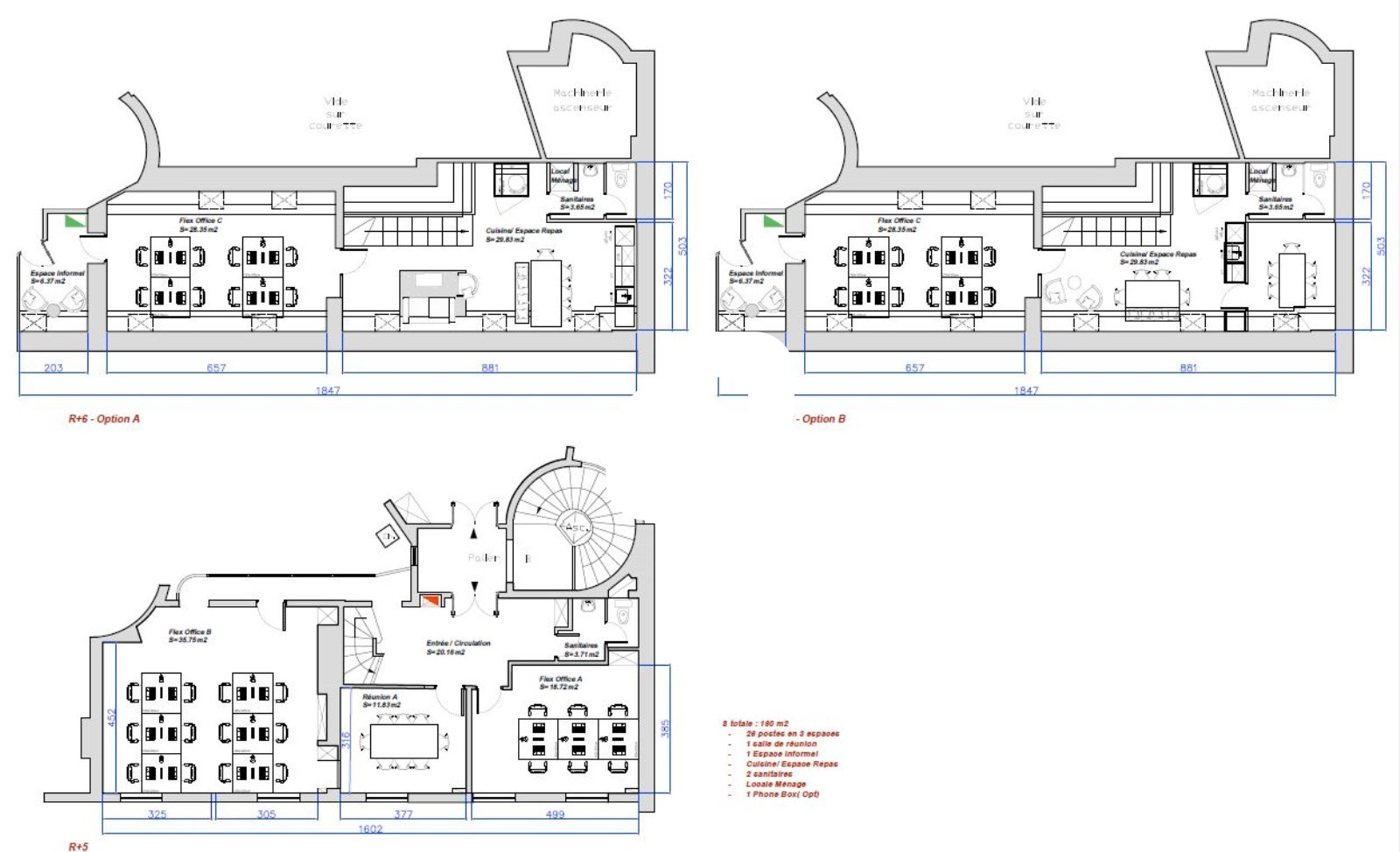
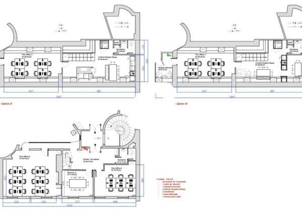
Dans le quartier de l’Opéra, rue Auber, Immprove vous propose une très belle surface de bureaux en parquet, moulures, miroirs et cheminées, d’environ 165 m² au 5ème étage pouvant compter 25 postes de travail.
Surface totale
Nature
Divisibilité
Nombre de postes
Etat des locaux
165 m²
Bureaux
Non
25
Rénové
Prix & Conditions
Loyer :
620 € /m²/an (HT/HC)
8 525 € /mois (HT/HC)
102 300 € /an (HT/HC)
Dépôt de garantie :
3 mois de loyer HT HC
Conditions location :
Le loyer est une somme forfaitaire incluant toutes les charges et la fiscalité
Prestations & équipements du bien
Le bâtiment
Parties communes rénovées récemment
Les espaces de travail
Fibre optique
Gardienne . Espace ouvert
Une cuisine équipée
Un espace détente
Le confort au quotidien
Belle hauteur sous plafond
Parquet, miroirs, cheminées, lustres
Climatisation
Sécurité du site
Digicode et interphone
Accès sécurisé par badge
Accessibilité
Ascenseur
Autres
Salles de réunion
Très lumineux
Double vitrage
Office manager dédié
Service de nettoyage
IT manager dédié
Le loyer est une somme forfaitaire incluant toutes les charges et la fiscalité
Répartition & surfaces des espaces
Tableau des divisibilités
| Type | Étage | Surface | Loyer (€/m²/an HT HC) |
Charges (€/m²/an HT HC) |
|---|---|---|---|---|
| Bureaux | 5ème étage | 165 m² | 620.00 | Prix sur demande |
Performance énergétique du bien (DPE)


Informations non contractuelles
Localisation & accès
Transports en commun à proximité
20
21
22
27
29
53
66
81
95
42
68
24
94
32
43
52
80
26
84
Adresses
approximatives
Adresses
précises
Nos nouveaux biens qui pourraient vous intéresser
Bureaux - 761m² Divisibles à partir de 165 m²
PARIS (75010)
PARIS (75010)
8 338.00€/mois HT HC
Disponibilité : Après accord
Surface : divisibles à partir de 165 m²
Les entrepreneurs ayant consulté cette offre ont aussi consulté celles ci
Bureaux - 348.02m²
BIEVRES (91570)
BIEVRES (91570)
3 480.00€/mois HT HC
Disponibilité : 1er juillet 2026
Surface : 348.02 m²
Bureaux - 288.28m²
BIEVRES (91570)
BIEVRES (91570)
2 880.00€/mois HT HC
Disponibilité : 1er juillet 2026
Surface : 288.28 m²
Bureaux et Activités - 4 645.22m² Divisibles à partir de 249.90 m²
VILLIERS SUR MARNE (94350)
VILLIERS SUR MARNE (94350)
54 180.00€/mois HT HC
Disponibilité : Immédiate
Surface : divisibles à partir de 249.90 m²
Bureaux - 447m²
MOUSSY LE NEUF (77230)
MOUSSY LE NEUF (77230)
4 097.50€/mois HT HC
Disponibilité : Immédiate
Surface : 447 m²