Retour
Disponibilité Immédiate
À Louer Bureaux 135 m² 7 RUE DU FAUBOURG MONTMARTRE PARIS (75009)
Ajouter au comparateur
Vous souhaitez faciliter votre recherche ?
Créez un compte
Présentation du bien
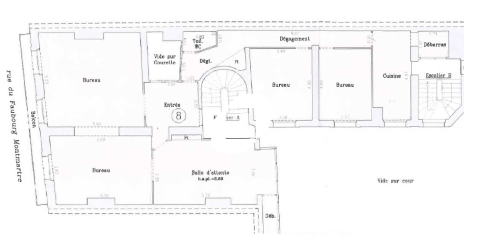
À deux pas du métro Grands Boulevards, IMMPROVE vous propose à la location une surface de bureaux de 135 m² située au sein d’un immeuble haussmannien en pierre de taille. Les locaux, traversants et lumineux, se composent d’un espace open space, de trois bureaux cloisonnés, d’une cuisine et de sanitaires. Prestations de caractère avec parquet, moulures, cheminées, belle hauteur sous plafond, balcon filant et climatisation, offrant un cadre de travail confortable et qualitatif.
Surface totale
Nature
Divisibilité
Etat des locaux
135 m²
Bureaux
Non
Bon état
Prix & Conditions
Loyer :
560 € /m²/an (HT/HC)
6 300 € /mois (HT/HC)
75 600 € /an (HT/HC)
Impôt foncier :
14.26
Taxe bureaux :
26.11
Dépôt de garantie :
3 mois de loyer HT HC
Prestations & équipements du bien
Le bâtiment
Immeuble haussmannien
Façade en pierres de taille
Les espaces de travail
Fibre optique
Open space
Bureaux cloisonnés
Cuisine
Sanitaires privatifs
Le confort au quotidien
Locaux traversants et lumineux aménagés en :
Parquet, moulures et cheminées
Belle hauteur sous plafond
Double exposition
Balcon filant
Climatisation
Sécurité du site
Contrôle d'accès
Gardiennage
Prestations spécifiques
Chauffage individuel
Autres
Cave
Répartition & surfaces des espaces
Tableau des divisibilités
| Type | Étage | Surface | Loyer (€/m²/an HT HC) |
Charges (€/m²/an HT HC) |
|---|---|---|---|---|
| Bureaux | 2ème étage | 135 m² | 560.00 | 23.11 |
Performance énergétique du bien (DPE)


Informations non contractuelles
Localisation & accès
Transports en commun à proximité
20
39
48
67
74
85
42
29
26
32
43
Accès routier
Grands Boulevards (N15,N16)
Adresses
approximatives
Adresses
précises
Nos nouveaux biens qui pourraient vous intéresser
Bureaux - 761m² Divisibles à partir de 165 m²
PARIS (75010)
PARIS (75010)
8 338.00€/mois HT HC
Disponibilité : Après accord
Surface : divisibles à partir de 165 m²
Les entrepreneurs ayant consulté cette offre ont aussi consulté celles ci
Bureaux - 348.02m²
BIEVRES (91570)
BIEVRES (91570)
3 480.00€/mois HT HC
Disponibilité : 1er juillet 2026
Surface : 348.02 m²
Bureaux - 288.28m²
BIEVRES (91570)
BIEVRES (91570)
2 880.00€/mois HT HC
Disponibilité : 1er juillet 2026
Surface : 288.28 m²
Bureaux et Activités - 4 645.22m² Divisibles à partir de 249.90 m²
VILLIERS SUR MARNE (94350)
VILLIERS SUR MARNE (94350)
54 180.00€/mois HT HC
Disponibilité : Immédiate
Surface : divisibles à partir de 249.90 m²
Bureaux - 447m²
MOUSSY LE NEUF (77230)
MOUSSY LE NEUF (77230)
4 097.50€/mois HT HC
Disponibilité : Immédiate
Surface : 447 m²