Retour
Bureaux - 550m² à Louer
. Bâtiment indépendant en fond de cour
. Contrôle d'accès par badge
. 2 escaliers intérieurs
. Cour intérieure
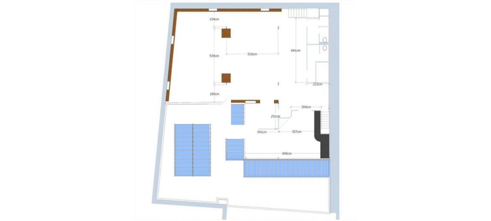
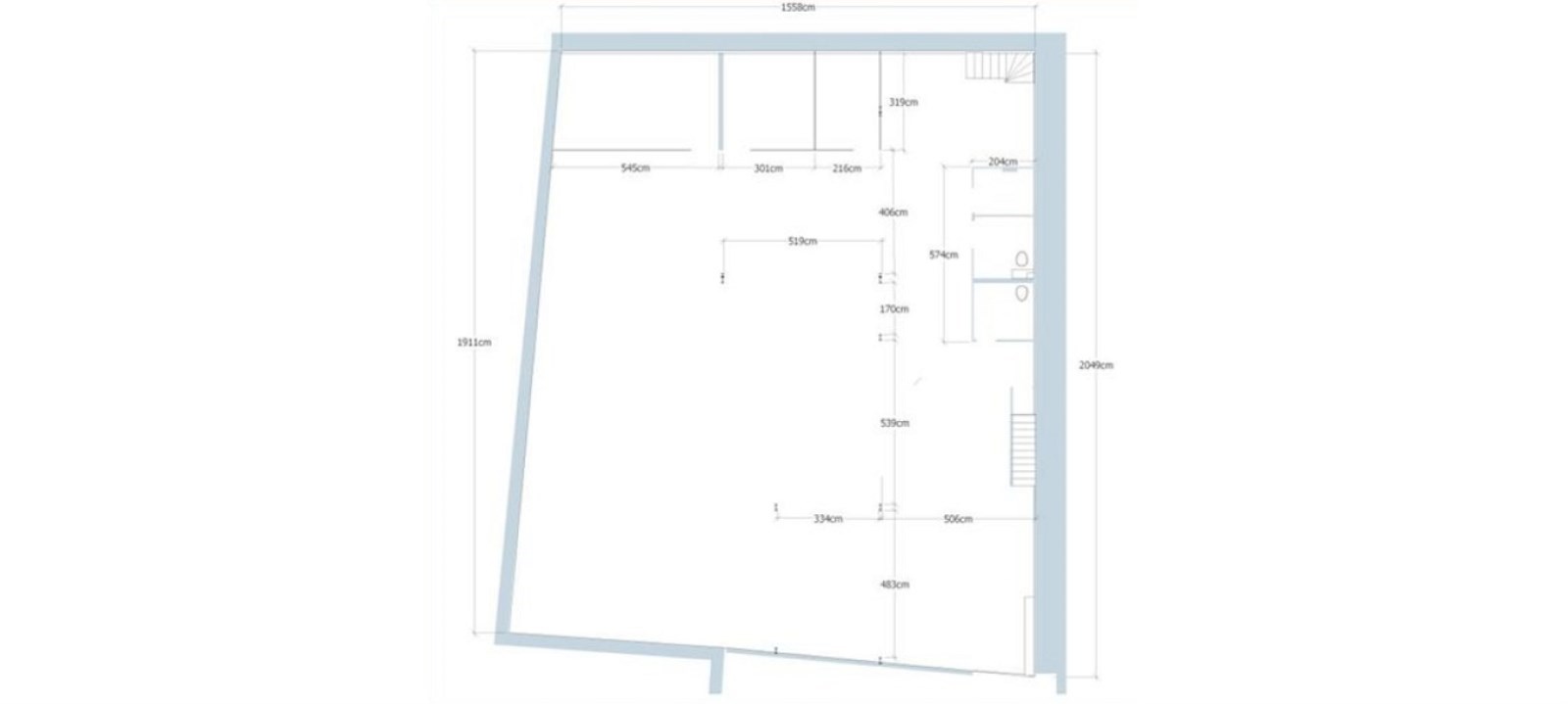
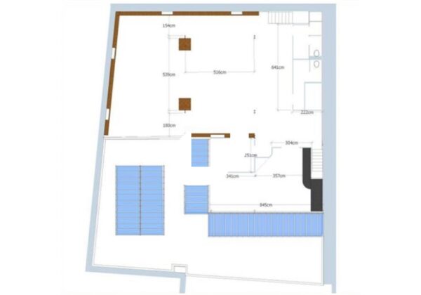
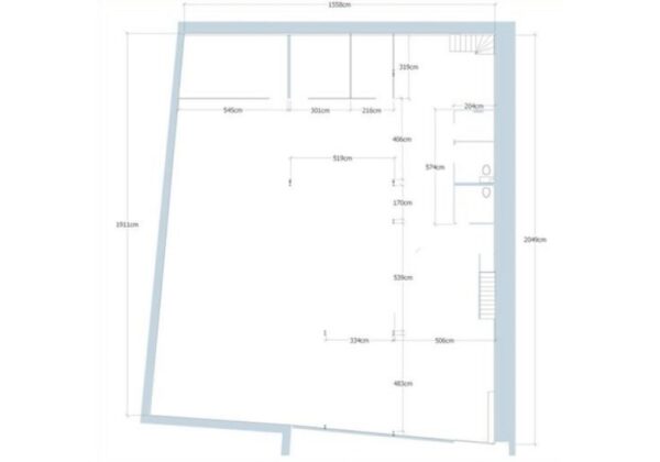
. Archives au 1er sous-sol : 30 m²
. Local vélo . État des locaux : très bon Etat d'usage
. Ménage
. Grand open space
. 4 salles de réunions
. 4 sanitaires dont 1 PMR / 1 douche
. Grande cuisine équipée au 1er étage
. Parquet
. Verrière ouvrante
. Mobilier inclus
. Ménage inclus
. Climatisation
Bureaux - 550m² à Louer
PARIS (75011)
DESCRIPTION
Immprove vous propose une surface de bureaux atypique et remplie de charme structure Eiffel. Vous bénéficie aussi d'une offre Plug & Play avec des matériaux et meubles de qualité.
En savoir plus
. Accès indépendant. Bâtiment indépendant en fond de cour
. Contrôle d'accès par badge
. 2 escaliers intérieurs
. Cour intérieure
. Archives au 1er sous-sol : 30 m²
. Local vélo . État des locaux : très bon Etat d'usage
. Ménage
. Grand open space
. 4 salles de réunions
. 4 sanitaires dont 1 PMR / 1 douche
. Grande cuisine équipée au 1er étage
. Parquet
. Verrière ouvrante
. Mobilier inclus
. Ménage inclus
. Climatisation
Consommations énergétiques


Informations non contractuelles
Tableau des divisibilités
| Type | Étage | Surface | Loyer (€/m²/an HT HC) |
Charges (€/m²/an HT HC) |
|---|---|---|---|---|
| Bureaux | Rez-de-Chaussée | 300 m² | 500.00 | 84.00 |
| Bureaux | 1er étage | 250 m² | 500.00 | 84.00 |
Caractéristiques
- Les charges comprennent : abonnements eau, électricité, alarme, mobilier, Internet, ménage, entretien hebdomadaire des équipements électricité/climatisation, pilotage optimisation environnementale, réparations et entretiens divers
. Taxes : 36€/m²/an taxe bureaux incluse
- Surface 550 m²
- Etat des locaux Bon état
Adresses
approximatives
Adresses
précises
Nos nouveaux biens qui pourraient vous intéresser
Bureaux - 831.80m² Divisibles à partir de 415.80 m²
à Louer
PARIS (75001)
Voir le bien
59 626.67€/mois HT HC
Les entrepreneurs ayant consulté cette offre ont aussi consulté celles ci
Les services Immprove
Une gamme complète de services qui facilitent vos démarches et destinée à satisfaire vos attentes