Retour
Disponibilité Immédiate
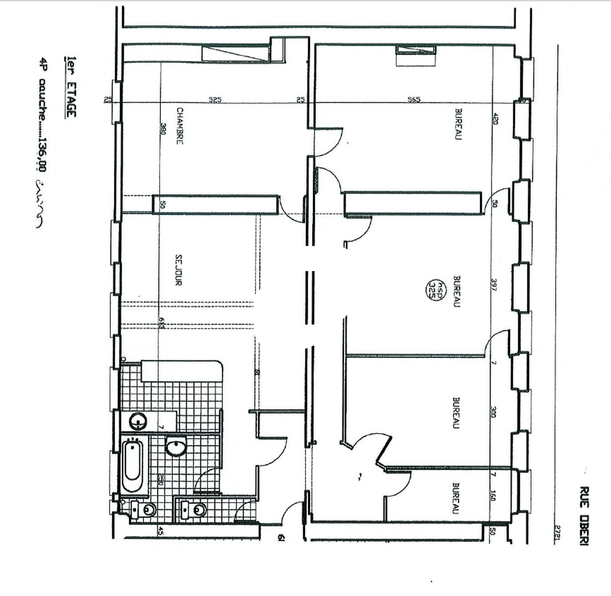
À Louer Bureaux 136 m² 11 RUE OBERKAMPF PARIS (75011)
Ajouter au comparateur
Vous souhaitez faciliter votre recherche ?
Créez un compte
Présentation du bien
IMMPROVE vous propose à la location une surface de 136 m², située au 1er étage d’un bel immeuble ancien, à proximité immédiate de Bastille.
L’espace est réparti comme suit : deux bureaux cloisonnés, un open space, une salle de réunion, un espace repos/repas avec cuisine équipée, une douche avec sanitaires privatifs, ainsi qu’un espace de stockage.
À visiter rapidement.
Surface totale
Nature
Divisibilité
Etat des locaux
136 m²
Bureaux
Non
Bon état
Prix & Conditions
Loyer :
479 € /m²/an (HT/HC)
5 428 € /mois (HT/HC)
65 143 € /an (HT/HC)
Taxe bureaux :
21.99
Dépôt de garantie :
3 mois de loyer HT HC
Prestations & équipements du bien
Le bâtiment
Immeuble ancien
Façade en pierres de taille
Parties communes de bon standing
Les espaces de travail
Fibre optique . Espace ouvert
Bureaux cloisonnés
Salle de réunion
Espace détente
Local technique
Précâblage informatique et téléphonique
Prises RJ45
Cuisine équipée
Sanitaires privatifs
Le confort au quotidien
Moulures
Cheminées
Belle hauteur sous plafond
Parquet
Sécurité du site
Interphone
Digicode
Accessibilité
Ascenseur
Prestations spécifiques
Chauffage individuel
Autres
Douche
Répartition & surfaces des espaces
Tableau des divisibilités
| Type | Étage | Surface | Loyer (€/m²/an HT HC) |
Charges (€/m²/an HT HC) |
|---|---|---|---|---|
| Bureaux | 1er étage | 136 m² | 479.24 | 37.69 |
Performance énergétique du bien (DPE)


Informations non contractuelles
Localisation & accès
Transports en commun à proximité
Gare de l'Est (TER)
56
Adresses
approximatives
Adresses
précises
Nos nouveaux biens qui pourraient vous intéresser
Bureaux - 761m² Divisibles à partir de 165 m²
PARIS (75010)
PARIS (75010)
8 338.00€/mois HT HC
Disponibilité : Après accord
Surface : divisibles à partir de 165 m²
Les entrepreneurs ayant consulté cette offre ont aussi consulté celles ci
Bureaux - 348.02m²
BIEVRES (91570)
BIEVRES (91570)
3 480.00€/mois HT HC
Disponibilité : 1er juillet 2026
Surface : 348.02 m²
Bureaux - 288.28m²
BIEVRES (91570)
BIEVRES (91570)
2 880.00€/mois HT HC
Disponibilité : 1er juillet 2026
Surface : 288.28 m²
Bureaux et Activités - 4 645.22m² Divisibles à partir de 249.90 m²
VILLIERS SUR MARNE (94350)
VILLIERS SUR MARNE (94350)
54 180.00€/mois HT HC
Disponibilité : Immédiate
Surface : divisibles à partir de 249.90 m²
Bureaux - 447m²
MOUSSY LE NEUF (77230)
MOUSSY LE NEUF (77230)
4 097.50€/mois HT HC
Disponibilité : Immédiate
Surface : 447 m²