Retour
Bureaux - 1 380m² à Louer
. Contrôle d'accès
. Hôtesse d'accueil
. Accès P.M.R.
. 2 Ascenseurs
. Chauffage immeuble
. Fibre optique
. Climatisation . Bureaux cloisonnés
. Locaux traversants
. Décloisonnement possible
. Locaux rationnels et modulables
. Terrasse commune
. Salle de réunion
. Faux plafonds
. Moquette
. Cuisine
. Sanitaires privatifs
Bureaux - 1 380m² à Louer
PARIS (75016)
DESCRIPTION
À proximité de la Maison de la Radio, IMMPROVE vous propose à la location deux plateaux d’environ 575 m² aux 2ème et 4ème étages, ainsi que des bureaux d’environ 230 m² au 1er étage. Les locaux, accessibles PMR, sont traversants et climatisés, avec possibilité de décloisonnement. Les charges incluent les coûts de fonctionnement de l’immeuble, impôts, taxes et assurance. Un grand rooftop avec vue sur la Tour Eiffel est accessible à tous les locataires, offrant un espace convivial et prestigieux.
En savoir plus
. Immeuble de bureaux moderne. Contrôle d'accès
. Hôtesse d'accueil
. Accès P.M.R.
. 2 Ascenseurs
. Chauffage immeuble
. Fibre optique
. Climatisation . Bureaux cloisonnés
. Locaux traversants
. Décloisonnement possible
. Locaux rationnels et modulables
. Terrasse commune
. Salle de réunion
. Faux plafonds
. Moquette
. Cuisine
. Sanitaires privatifs
Consommations énergétiques


Informations non contractuelles
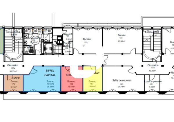
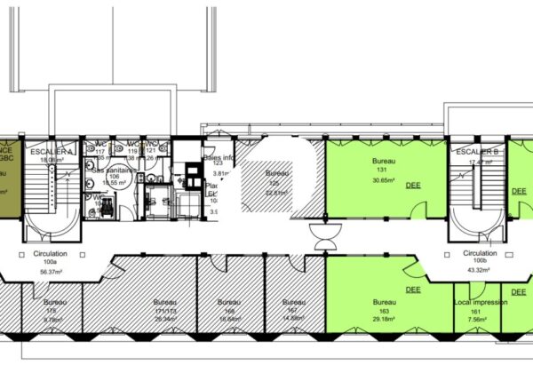
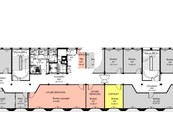
Tableau des divisibilités
| Type | Étage | Surface | Loyer (€/m²/an HT HC) |
Charges (€/m²/an HT HC) |
|---|---|---|---|---|
| Parkings | 1 815.00 | Prix sur demande | ||
| Bureaux | 1er étage | 230 m² | 480.00 | 81.33 |
| Bureaux | 2ème étage | 575 m² | 480.00 | 81.33 |
| Bureaux | 4ème étage | 575 m² | 480.00 | 81.33 |
Caractéristiques
- Surface 1 380 m²
- Etat des locaux Bon état
- Nbre Parking 1
- Ascenseur oui
Adresses
approximatives
Adresses
précises
Nos nouveaux biens qui pourraient vous intéresser
Bureaux - 22 938.50m² Divisibles à partir de 185.20 m²
à Louer
PARIS (75013)
Voir le bien
Prix sur demande
Les entrepreneurs ayant consulté cette offre ont aussi consulté celles ci
Les services Immprove
Une gamme complète de services qui facilitent vos démarches et destinée à satisfaire vos attentes