Retour
Bureaux - 2 973.50m² à Louer
. 5 niveaux de bureaux et 3 niveaux de sous sol
. Une terrasse d'exception au 4ème étage avec vue sur la Tour Eiffel et les toits de Paris d'une superficie de 187 m²
. Triple exposition et larges baies vitrées offrant une luminosité maximale dans les espaces de travail . Accueil
. Accès par badge
. Télécommande parking
. 2 ascenseurs
. Cour extérieur
. Climatisation réversible
. Faux plafonds
. Faux planchers
. HSP: 2.75 m
. HSD: 3.40 m
Bureaux - 2 973.50m² à Louer
MONTROUGE (92120)
DESCRIPTION
Dans un immeuble indépendant proche métro, Immprove vous propose plusieurs surfaces de bureaux à la location.
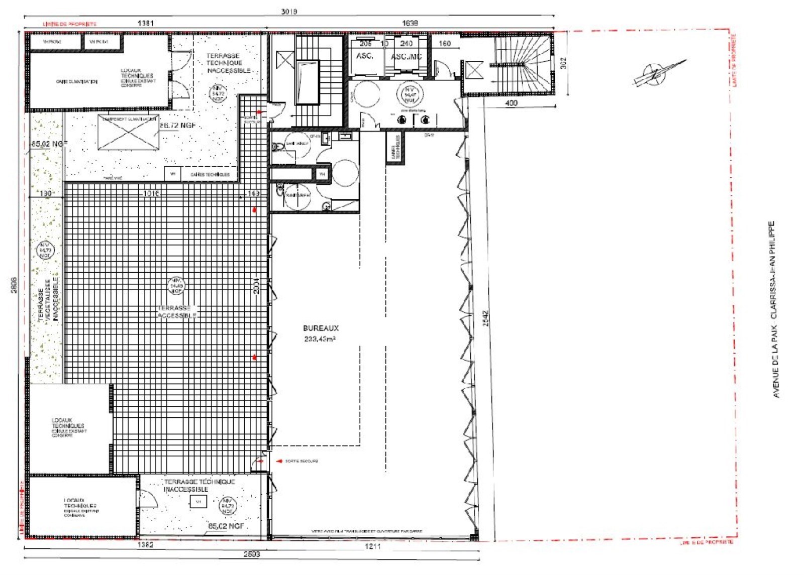
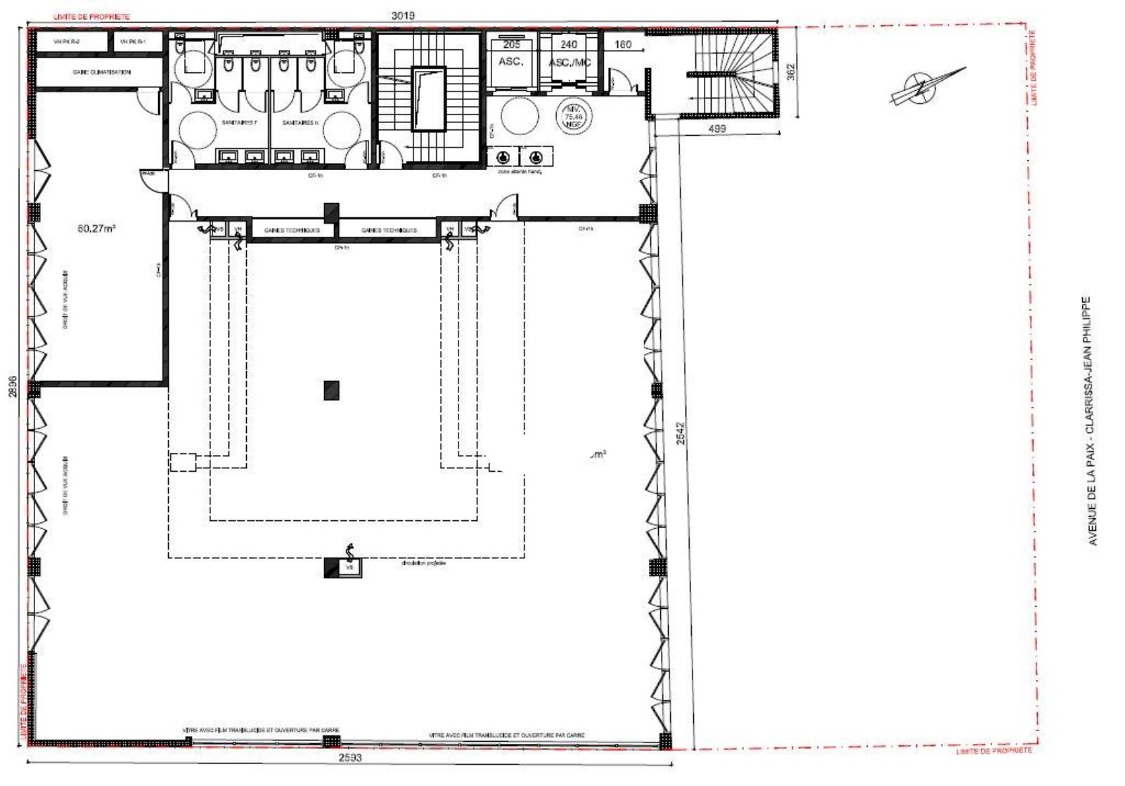
Sur 5 étages et 3 niveaux de sous-sols, de 288 m² à 3 191.6 m² de bureaux et d'archives avec une belle hauteur sous plafond.
Une terrasse, une cour extérieure et de nombreux emplacements de parkings complètent ce bien.
De gros travaux sont toutefois à prévoir.
En savoir plus
. Immeuble indépendant de bureaux avec accès privatif. 5 niveaux de bureaux et 3 niveaux de sous sol
. Une terrasse d'exception au 4ème étage avec vue sur la Tour Eiffel et les toits de Paris d'une superficie de 187 m²
. Triple exposition et larges baies vitrées offrant une luminosité maximale dans les espaces de travail . Accueil
. Accès par badge
. Télécommande parking
. 2 ascenseurs
. Cour extérieur
. Climatisation réversible
. Faux plafonds
. Faux planchers
. HSP: 2.75 m
. HSD: 3.40 m
Consommations énergétiques


Informations non contractuelles
Tableau des divisibilités
| Type | Étage | Surface | Loyer (€/m²/an HT HC) |
Charges (€/m²/an HT HC) |
|---|---|---|---|---|
| Archives | 3ème Sous-Sol | 185 m² | 328.00 | Prix sur demande |
| Archives | 2ème Sous-Sol | 21 m² | 328.00 | Prix sur demande |
| Archives | 1er Sous-Sol | 25 m² | 328.00 | Prix sur demande |
| Parkings | Sous-Sol | 1 500.00 | Prix sur demande | |
| Bureaux | Rez-de-Chaussée | 665 m² | 290.00 | 27.00 |
| Bureaux | 1er étage | 670 m² | 300.00 | 27.00 |
| Bureaux | 2ème étage | 668 m² | 325.00 | 27.00 |
| Bureaux | 3ème étage | 671 m² | 330.00 | 27.00 |
| Bureaux | 4ème étage | 298 m² | 345.00 | 27.00 |
| Terrasse | 4ème étage | 186 m² | 200.00 | Prix sur demande |
Caractéristiques
- Surface 2 973.50 m²
- Etat des locaux Bon état
- Nbre Parking 48
Adresses
approximatives
Adresses
précises
Nos nouveaux biens qui pourraient vous intéresser
Bureaux - 1 695.50m² Divisibles à partir de 369 m²
à Louer
MONTROUGE (92120)
Voir le bien
42 400.00€/mois HT HC
Bureaux - 5 808m² Divisibles à partir de 300 m²
à Louer
MONTROUGE (92120)
Voir le bien
179 783.33€/mois HT HC
Les entrepreneurs ayant consulté cette offre ont aussi consulté celles ci
Les services Immprove
Une gamme complète de services qui facilitent vos démarches et destinée à satisfaire vos attentes