À Louer Locaux d'Activités 2 704 m² divisibles à partir de 542 m² 2 RUE DENIS DIDEROT ELANCOURT (78990)
Présentation du bien
Prix & Conditions
Loyer parkings : 300 €/U/an HT HC
Prestations & équipements du bien
Bâtiment indépendant classe A
Façade en bardage double peau isolée
Parc d'activité neuf
Fibre optique disponible en bordure de site
Site clos et sécurisé . cellules d'activité avec bureaux d'accompagnement
Monte-charges
Tarif jaune 240 kVA
Charge au sol : 1,5 Tonne / m²
Chauffage par aérothermes
Site classé ICPE : stockage limité en matière combustibles à 37 Tonnes
Nombreux parkings : ratio de 1 place de parking / 67 m²
Accès VL / PL
Premier parc d'activité en étage en Ile-de-France
Architecture moderne
Nombreux espaces verts et espaces de détente extérieurs
Cellules en étage :
Accessible par rampe hélicoïdale avec pente à 8 % - véhicules de maximum 7,5 tonnes
Hauteur sous plafond : 7 mètres
Portes sectionnelles
Bureaux aménagés et climatisés
Emplacements de stationnement avec bornes de recharge électrique prévus sur le site
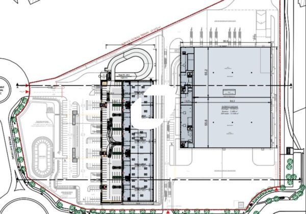
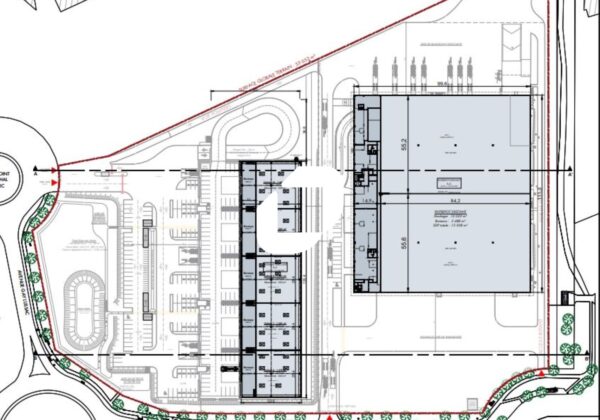
Répartition & surfaces des espaces
Tableau des divisibilités
| Type | Étage | Surface | Loyer (€/m²/an HT HC) |
Charges (€/m²/an HT HC) |
|---|---|---|---|---|
| Activités | 1 077 m² | 115.00 | 12.00 | |
| Activités | 542 m² | 120.00 | 12.00 | |
| Activités | 1 085 m² | 115.00 | 12.00 |
Performance énergétique du bien (DPE)


Informations non contractuelles
Localisation & accès
Transports en commun à proximité
Gare de Trappes
Accès routier
Autoroute A12
Nationales N10 et N12
Adresses
approximatives
Adresses
précises
Nos nouveaux biens qui pourraient vous intéresser
ELANCOURT (78990)
ELANCOURT (78990)
Les entrepreneurs ayant consulté cette offre ont aussi consulté celles ci
SCHWEIGHOUSE SUR MODER (67590)
SCHILTIGHEIM (67300)
SCHWEIGHOUSE SUR MODER (67590)
SAINT HERBLAIN (44800)