Retour
Disponibilité 1er mai 2026
À Louer Locaux d'Activités 515 m² ELANCOURT (78990)
Ajouter au comparateur
Vous souhaitez faciliter votre recherche ?
Créez un compte
Présentation du bien
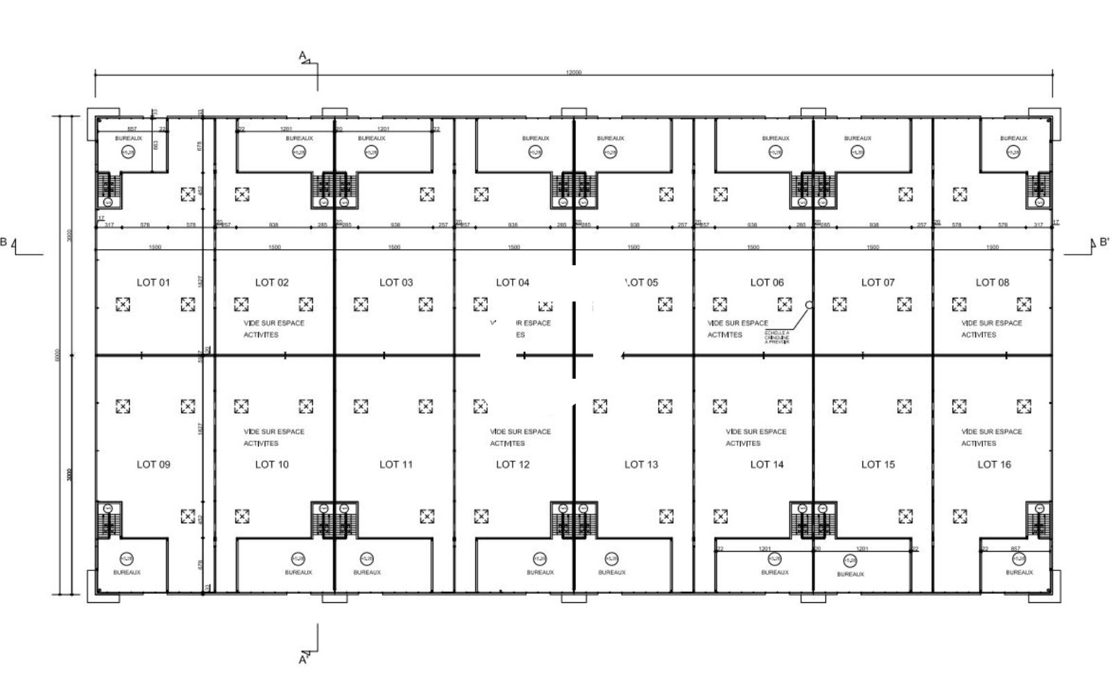
Immprove vous propose à la location une cellule d'entrepôt/activité avec bureaux d'accompagnement en mezzanine sur la zone de la Clef Saint Pierre à Elancourt. Locaux récents, en façade de N12. Belle hauteur libre, porte sectionnelle de plain-pied, charge au sol de 3 tonnes/m². Accès gros porteurs. Accès routiers N10 et N12.
Surface totale
Nature
Divisibilité
Etat des locaux
515 m²
Locaux d'Activités
Non
Rénové
Prix & Conditions
Loyer :
120 € /m²/an (HT/HC)
5 150 € /mois (HT/HC)
61 800 € /an (HT/HC)
Impôt foncier :
10.77
Taxe bureaux :
12.03
Dépôt de garantie :
3 mois de loyer HT HC
Prestations & équipements du bien
Le bâtiment
Immeuble récent
Façade en bardage
Le confort au quotidien
Climatisation ou convecteurs électriques selon les lots
Les accès
Accès poids lourds
Aire de manœuvre
Porte sectionnelle semi-automatiques H4,5 x L4
Prestations spécifiques
Chauffage par aérothermes gaz
Charge au sol : 3 tonnes / m²
Puissance électrique : tarif bleu 36 KVA. Selon la demande possibilité d'installation de tarif jaune
Autres
Bureaux en mezzanine
Activité :
RIA
1 accès plain-pied par lot
Répartition & surfaces des espaces
Tableau des divisibilités
| Type | Étage | Surface | Loyer (€/m²/an HT HC) |
Charges (€/m²/an HT HC) |
|---|---|---|---|---|
| Activités | 515 m² | 120.00 | 11.20 |
Performance énergétique du bien (DPE)


Informations non contractuelles
Localisation & accès
Accès routier
Autoroutes A12 et A86
Nationales N10 et N12
Adresses
approximatives
Adresses
précises
Nos nouveaux biens qui pourraient vous intéresser
Locaux d'Activités - 534m²
ELANCOURT (78990)
ELANCOURT (78990)
5 340.00€/mois HT HC
Disponibilité : Immédiate
Surface : 534 m²
Locaux d'Activités - 2 704m² Divisibles à partir de 542 m²
ELANCOURT (78990)
ELANCOURT (78990)
10 321.25€/mois HT HC
Disponibilité : Immédiate
Surface : divisibles à partir de 542 m²
Les entrepreneurs ayant consulté cette offre ont aussi consulté celles ci
Locaux d'Activités - 507.70m²
SCHWEIGHOUSE SUR MODER (67590)
SCHWEIGHOUSE SUR MODER (67590)
Prix sur demande
Disponibilité : Immédiate
Surface : 507.70 m²
Locaux d'Activités - 215m²
SCHILTIGHEIM (67300)
SCHILTIGHEIM (67300)
1 433.33€/mois HT HC
Disponibilité : Immédiate
Surface : 215 m²
Locaux d'Activités - 253.85m²
SCHWEIGHOUSE SUR MODER (67590)
SCHWEIGHOUSE SUR MODER (67590)
Prix sur demande
Disponibilité : Immédiate
Surface : 253.85 m²
Locaux d'Activités - 290m²
SAINT HERBLAIN (44800)
SAINT HERBLAIN (44800)
2 333.29€/mois HT HC
Disponibilité : Immédiate
Surface : 290 m²