Retour
Disponibilité Immédiate
À Louer Locaux d'Activités 534 m² M BY 1 4 RUE DU MARECHAL DE LATTRE DE TASSIGNY ELANCOURT (78990)
Ajouter au comparateur
Vous souhaitez faciliter votre recherche ?
Créez un compte
Présentation du bien
Zone de la Clef Saint Pierre à Elancourt (78), IMMPROVE vous propose à la location une cellule d'entrepôt/activité avec bureaux d'accompagnement en mezzanine. Locaux récents, en façade de N12. Belle hauteur libre, grande porte sectionnelle de plain-pied, charge au sol de 3 tonnes/m². Accès gros porteurs. Accès routiers N10 et N12, A12, A86.
Surface totale
Nature
Divisibilité
Etat des locaux
534 m²
Locaux d'Activités
Non
Rénové
Prix & Conditions
Loyer :
120 € /m²/an (HT/HC)
5 340 € /mois (HT/HC)
64 080 € /an (HT/HC)
Impôt foncier :
10.77
Taxe bureaux :
12.03
Dépôt de garantie :
3 mois de loyer HT HC
Conditions location :
Taxe de stationnement : 2.89 €/m²/an HT
Prestations & équipements du bien
Le bâtiment
Immeuble récent
Façade en bardage
Les espaces de travail
En espace ouvert
Les accès
Accès poids lourds
Aire de manœuvre
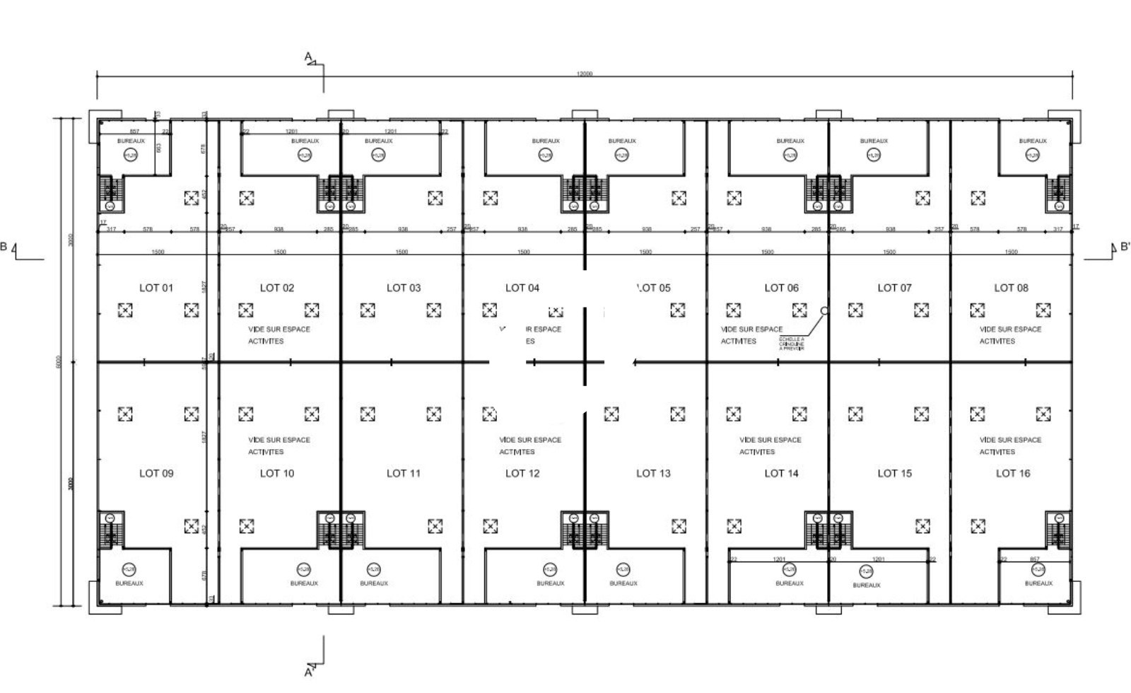
Porte sectionnelle semi-automatiques H4,4 x L4 mètres
Prestations spécifiques
Chauffage par convecteurs électriques
Chauffage par aérothermes gaz
Charge au sol : 3 tonnes / m²
Puissance électrique : tarif bleu 36 KVA.
Selon la demande possibilité d'installation de tarif jaune
Extérieur
4 emplacements extérieurs de parkings
Autres
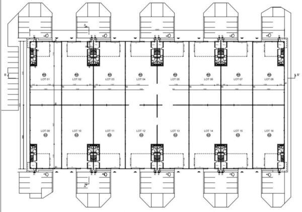
Bureaux en mezzanine
Locaux d'activité:
Hauteur sous poutres : 8,5 mètres
RIA
1 accès plain-pied par lot
possibilité installation d'une benne
Taxe de stationnement : 2.89 €/m²/an HT
Répartition & surfaces des espaces
Tableau des divisibilités
| Type | Étage | Surface | Loyer (€/m²/an HT HC) |
Charges (€/m²/an HT HC) |
|---|---|---|---|---|
| Activités | 534 m² | 120.00 | 11.20 |
Performance énergétique du bien (DPE)


Informations non contractuelles
Localisation & accès
Accès routier
Autoroutes A12 et A86
Nationales N10 et N12
Adresses
approximatives
Adresses
précises
Nos nouveaux biens qui pourraient vous intéresser
Locaux d'Activités - 515m²
ELANCOURT (78990)
ELANCOURT (78990)
5 150.00€/mois HT HC
Disponibilité : 1er mai 2026
Surface : 515 m²
Locaux d'Activités - 2 704m² Divisibles à partir de 542 m²
ELANCOURT (78990)
ELANCOURT (78990)
10 321.25€/mois HT HC
Disponibilité : Immédiate
Surface : divisibles à partir de 542 m²
Les entrepreneurs ayant consulté cette offre ont aussi consulté celles ci
Locaux d'Activités - 507.70m²
SCHWEIGHOUSE SUR MODER (67590)
SCHWEIGHOUSE SUR MODER (67590)
Prix sur demande
Disponibilité : Immédiate
Surface : 507.70 m²
Locaux d'Activités - 215m²
SCHILTIGHEIM (67300)
SCHILTIGHEIM (67300)
1 433.33€/mois HT HC
Disponibilité : Immédiate
Surface : 215 m²
Locaux d'Activités - 253.85m²
SCHWEIGHOUSE SUR MODER (67590)
SCHWEIGHOUSE SUR MODER (67590)
Prix sur demande
Disponibilité : Immédiate
Surface : 253.85 m²
Locaux d'Activités - 290m²
SAINT HERBLAIN (44800)
SAINT HERBLAIN (44800)
2 333.29€/mois HT HC
Disponibilité : Immédiate
Surface : 290 m²