Retour
Disponibilité Immédiate
À Louer Bureaux 315 m² 16/18 RUE DU GARD LENS (62300)
Ajouter au comparateur
Vous souhaitez faciliter votre recherche ?
Créez un compte
Présentation du bien
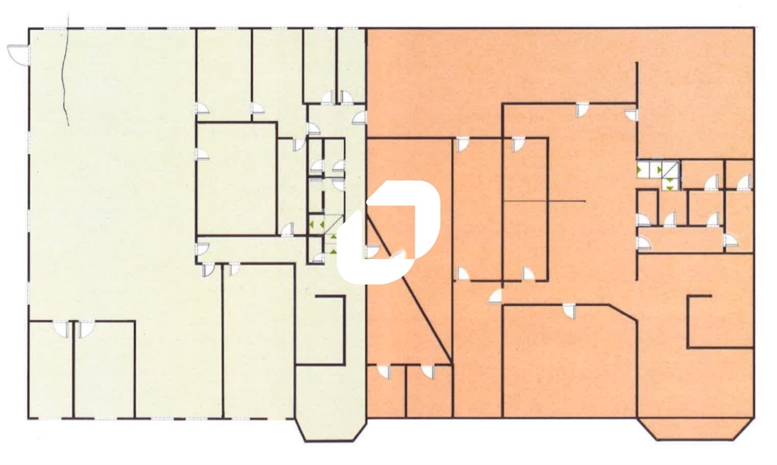
Immprove vous propose à la location une surface de bureaux située sur la Parc d'activité du Gard. 2 Entrées, bureaux cloisonnés. Accès rapide par les grands axes routiers et la ligne de bus. Parking. Disponibilité immédiate
Surface totale
Nature
Divisibilité
Etat des locaux
315 m²
Bureaux
Non
Travaux à prévoir
Prix & Conditions
Loyer :
100 € /m²/an (HT/HC)
2 625 € /mois (HT/HC)
31 500 € /an (HT/HC)
Impôt foncier :
16.00
Dépôt de garantie :
3 mois de loyer HT/HC
Prestations & équipements du bien
Le bâtiment
Immeuble ancien
Les espaces de travail
Travaux à prévoir
Accueil
Bureaux cloisonnés
Salle de réunion
Local technique
Cuisine
Sanitaires privatifs
Décloisonnement possible
Faux plafonds
Cloisonnement amovible
Plinthes périphériques
Le confort au quotidien
Carrelage
Les accès
Accès véhicules légers
Double accès
Sécurité du site
Interphone
Sas d'entrée
Prestations spécifiques
Chauffage électrique
Autres
Façade en briques
Parties communes à rénover
Répartition & surfaces des espaces
Tableau des divisibilités
| Type | Étage | Surface | Loyer (€/m²/an HT HC) |
Charges (€/m²/an HT HC) |
|---|---|---|---|---|
| Bureaux | Rez-de-Chaussée | 315 m² | 100.00 | 3.00 |
Performance énergétique du bien (DPE)


Informations non contractuelles
Localisation & accès
Transports en commun à proximité
A proximité
Accès routier
A21
Adresses
approximatives
Adresses
précises
Nos nouveaux biens qui pourraient vous intéresser
Les entrepreneurs ayant consulté cette offre ont aussi consulté celles ci
Bureaux - 83.60m²
BUSSY SAINT GEORGES (77600)
BUSSY SAINT GEORGES (77600)
1 288.00€/mois HT HC
Disponibilité : Immédiate
Surface : 83.60 m²
Bureaux - 6 934m² Divisibles à partir de 173 m²
LYON (69009)
LYON (69009)
Prix sur demande
Disponibilité : Selon les lots – nous consulter
Surface : divisibles à partir de 173 m²